圖紙介紹:140平方米清新別致新農村兩層房屋設計圖紙大全12x13米,別墅為現代簡約風格,外觀線條流暢而又別致,冷色調的配色經典、沉穩,室內裝修可以采用暖色調,布置出來,溫馨又有活力,設計合理人性化,空間規劃合理開闊,功能齊全,溫馨舒適,是家庭的必備選擇
占地面積:11.8m*12.8m,140平方米左右;
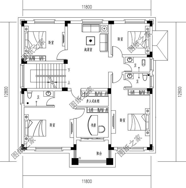
建筑層高:二層;
建筑高度:9.59米(含屋頂);
設計功能:
一層戶型:門廳、玄關、客廳、娛樂室、廚房、餐廳、儲藏室、臥室(帶衛生間)、衛生間;
二層戶型:起居室、臥室(帶衛生間)、臥室(帶衣帽間書房衛生間)、臥室x2、衛生間、陽臺;
圖紙目錄:
建 筑 圖:建筑設計說明、一層平面圖、二層平面圖、屋頂平面圖、正立面圖、背立面圖、左立面圖、右立面圖、1-1剖面圖、樓梯大樣圖、門斗大樣圖、節點大樣圖、門窗詳圖、門窗表等;
結 構 圖:結構設計說明、基礎平面布置圖、基礎大樣圖、一層梁結構平面圖、二層梁結構平面圖、、屋頂梁結構平面圖、二層板結構平面圖、屋面板結構平面圖、樓梯大樣圖、節點大樣圖等;
給排水圖:給排水設計說明、一層給排水平面圖、二層給排水平面圖、屋頂給排水平面圖、衛生間大樣圖、給排水系統圖等;
電 氣 圖:電氣設計說明、配電系統圖、弱電系統圖、配電干線系統圖、一層照明平面圖、二層照明平面圖、一層插座平面圖、二層插座平面圖、一層弱電平面圖、二層弱電平面圖、接地平面圖、屋頂防雷平面圖等;
本套方案包含全套A3設計圖+彩色效果圖。





































































































