
人說:林深時見鹿,海藍時見鯨,夢醒時見你可我,林深時霧起,海藍時浪涌,夢醒時夜續,不見鹿,不見鯨,也不見你。
利用純色真石漆的質感,搭配金色石刻,營造出典雅、高貴的氣氛,散發出明朗氣質。入戶門廊與陽臺有機結合,多窗設計既豐富了別墅的外觀造型又可保證室內充足采光。
設地下層可做儲物間,酒窖,棋牌室,影視廳之類的私密空間,以提升生活品質。
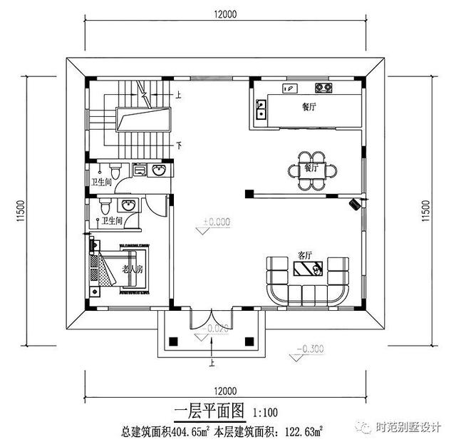
一層設玄關、客廳、廚房、餐廳、一間臥室、兩間衛生間。 整體設計南北通透,客廳敞亮,陽光透過多開窗最大限度的鋪灑,溫暖舒適。室內的溫馨映襯著窗外美景,與大自然融為一體。 公共衛生間使用頻繁,干濕分離式設計,方便使用互不干擾。 老人房南向,內部帶有獨立衛生間,起居方便,十分貼心。
二層設四間臥室、5間衛生間、兩個露臺,一個休閑廳。 臥室均為套房設計,內部獨衛,居住的舒適性和體驗度大大得到提升。 推出式露臺能夠開闊視野,可作休閑觀景平臺使用,實用性強。
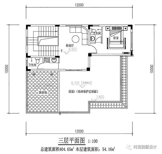
三層設休閑廳、一間臥室、一個大露臺。 大露臺對于在鄉村常住家庭來說很實用,并帶有屋頂游泳池,為家中提供了室外休閑空間,陽光暖暖的午后,瞇眼躺著,聞著清風中夾雜的花香,無盡愜意! 裝修示例: 臥室:
屋頂泳池:
![]()
圖紙之家-專注農村別墅/自建房設計18年,集合國內200余位經驗豐富的設計師,被評為口碑最好的農村建筑設計公司! |

17X12米三層雙拼別墅自建房設計圖,歐式風格,戶型方正
占地:190平方米
帶露臺陽光房二層建房別墅設計圖,13米乘12米,享受農村悠然慢
占地:143.54平方米
2026新款新式農村50萬三層別墅圖片,帶地下室,美觀大氣
占地:130平方米左右
20萬左右歐式二層小別墅設計圖,100平米和130兩個戶型
占地:多種戶型
造價40萬三層大氣自建房設計圖紙,鄉村別墅建造圖
占地:159.609平方
最新網紅二層別墅,寬敞時尚沉穩大氣,布局實用正好滿足您的需
占地:110平方米
簡單質樸三層新農村小別墅設計圖紙,別墅圖片,戶型簡單合理實
占地:120平方米
新農村二層住宅設計圖紙,簡單別墅設計圖(含效果圖)
占地:77.6平方米
新農村三層樓房住宅設計方案,戶型圖、效果圖、全套施工圖
占地:180平方米
豪華二層別墅設計圖紙及別墅圖片,旋轉樓梯,內設佛堂,大大落
占地:260平方米
帶陽光房的二層簡歐別墅圖紙,戶型經典實用
占地:147.2平方米
農村二層帶電梯別墅設計圖,歐式風格,避免老人上下樓的麻煩
占地:179.94平方米
最實用一層小別墅設計方案,造價不高顏值高,家家都喜歡!
占地:143.48平方米
面寬13米帶堂屋三層農村別墅圖,新中式大氣風格
占地:151.58平方米
時尚四開間二層農村別墅,經典大氣,引領建房新潮流!
占地:159.6平方米
復式、旋轉樓梯三層別墅設計方案圖,戶型合理、實用
占地:138平方米
最美中式合院別墅圖,這才是中國農村該建的房子,如此精美絕倫
占地:380平方米
現代三層復式小別墅設計圖及外觀圖片,25萬造價
占地:105平方米
140平方米新農村二層自建平屋頂房屋設計圖紙帶外觀效果圖
占地:140平方米左右
簡單的二層樓房圖片及設計方案,自建樓房必看
占地:140平方米
推薦:10套新農村自建房設計圖,2026年最新設計
閱讀次數:4825737次
100套鄉村別墅圖片大全,2026年最新設計
閱讀次數:2492203次
6款農村蓋一層平房的設計圖,10萬元就能建起來
閱讀次數:1852637次
這11個一層農村自建房別墅火爆了朋友圈!我最喜歡戶型十!你呢
閱讀次數:750268次
農村6萬元建一層小別墅圖,你敢相信嗎
閱讀次數:567686次
農村5萬塊就能自建房,6套普通房子設計圖分享,你沒看錯!
閱讀次數:419410次
8套農村漂亮三間平房圖片,非常適合在農村修建!
閱讀次數:411197次
農村自建房化糞池怎么做?附方案及施工過程
閱讀次數:391783次
農村一層三間平房設計圖,告別土氣養老房,讓人忍不住點贊
閱讀次數:350581次
新農村二層樓房圖片造價12萬,挑一套回家建房吧!
閱讀次數:349126次
