
|
在農村建房子,三十萬左右就能搞定二三層樓房,如果選擇在城市買房,估摸著也只能買個單間,而且農村的房子蓋的是天地樓,四面采光,民風淳樸,鄰里關系融洽,有事沒事都能串門閑談,悠閑自在。 對于一套房子,我們通常會給大家提供兩個方向的戶型,以滿足不同方位的宅基地建造,下面小編給大家分享1款農村別墅全套施工圖(附鏡像款),一起來看看圖紙詳情介紹。 戶型介紹 開間:12.6米 進深:13.5米 占地面積:162.49平方米 總建筑面積:284.01平方米 層數:二層 結構形式:磚混結構 主體造價:15-25萬 效果圖
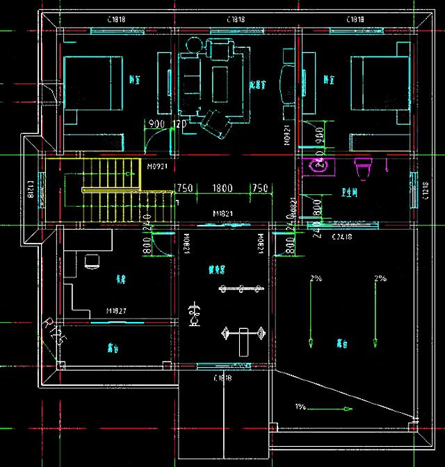
鏡像圖 這款別墅戶型在配色上大膽采用粉色為主色,淺黃色二層外墻,搭配穩重的紅色屋頂,邊線白色修飾,色彩搭配給人一種溫馨的舒適感。 功能設計 一層:門廳、客廳、餐廳、廚房、2臥室、衛生間 二層:起居室、2臥室、健身房、書房、衛生間、露臺 平面圖展示:
一層平面圖
二層平面圖
圖紙之家-專注農村別墅/自建房設計18年,集合國內200余位經驗豐富的設計師,被評為口碑最好的農村建筑設計公司! |

新農村四合院別墅圖片及戶型方案圖,全套圖紙可施工
占地:154平方米左右
面寬17米農村實用自建房一層別墅設計圖,簡約大氣經濟時尚
占地:192.94平方米
13x13米簡單二層帶閣樓最新別墅設計圖,精致美觀
占地:158.5平方米
150平歐式別墅房屋設計圖,外觀精美、氣派
占地:150平方米
農村二層帶車庫樓房設計圖,帶外觀效果圖片
占地:125平方米
簡單的復式住宅設計圖,客廳挑高,帶外觀效果圖片
占地:148平方米
120多平米三層農村別墅設計圖,把實用做到極致,造價適中
占地:126.85平方米
14米乘10米農村二層別墅新款,外觀對稱設計,經久耐看!
占地:140平方米
鄉村20萬內三層別墅房屋設計圖,面積適中、戶型經典
占地:100平方米
平屋頂現代風格三層蓋別墅設計圖紙,面寬18米
占地:235.34平方米
新式三層別墅設計圖,客廳中空,占地125平米左右
占地:125平米
中式二層三合院設計圖紙含外觀效果圖片,大氣又實用
占地:216.04平方米
超漂亮的二層別墅設計圖,外觀對稱設計,建好很大氣
占地:255平方米
農村一層四間平房設計圖方案,含外觀圖片,預算10萬
占地:190平方米
七字型設計新中式一層別墅設計圖,類合院風格
占地:267.3平方米
一層半復式帶閣樓別墅設計圖,含外觀圖片
占地:150平方米
140平三層復式別墅設計圖及外觀效果圖
占地:140平方米
最美二層樓別墅圖片大全及全套建筑設計圖紙,20萬左右
占地:140平方米
2026新農村三層雙拼房屋設計圖紙平面圖與效果圖,帶堂屋
占地:190平方米
鄉村二層半別墅圖紙設計,歐式風格、錯落有致,150平左右
占地:149.76
推薦:10套新農村自建房設計圖,2026年最新設計
閱讀次數:4825737次
100套鄉村別墅圖片大全,2026年最新設計
閱讀次數:2492203次
6款農村蓋一層平房的設計圖,10萬元就能建起來
閱讀次數:1852637次
這11個一層農村自建房別墅火爆了朋友圈!我最喜歡戶型十!你呢
閱讀次數:750268次
農村6萬元建一層小別墅圖,你敢相信嗎
閱讀次數:567686次
農村5萬塊就能自建房,6套普通房子設計圖分享,你沒看錯!
閱讀次數:419410次
8套農村漂亮三間平房圖片,非常適合在農村修建!
閱讀次數:411197次
農村自建房化糞池怎么做?附方案及施工過程
閱讀次數:391783次
農村一層三間平房設計圖,告別土氣養老房,讓人忍不住點贊
閱讀次數:350581次
新農村二層樓房圖片造價12萬,挑一套回家建房吧!
閱讀次數:349126次
