
|
現在有不少農村的朋友喜歡建三層的房子,不僅看起來很氣派,住著也寬敞、舒服。三層的房子每一層怎么設計可能會讓許多人困擾,下面小編就給大家介紹這樣一套三層歐式別墅,說不定會讓你心動!
尺 寸: 面寬22.6米 進深14.3米 建筑面積: 1103.0㎡ 土建造價: 160.0萬
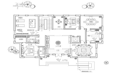
房子整體是歐式風格,造型上中線對稱。建筑地面三層地下一層,除了設計有樓梯,建筑也安裝有電梯。因地下儲藏室原因,電梯可以承擔貨運功能。房子的地下室可以滿足居住者收藏名酒的愛好,同時多功能影音KTV設計在地下,聲音上不會對鄰居造成影響。
房子在一層設計了有兩層高的挑空入戶大堂,與門廳相連,使得入戶位置具有一定高度,非常高端大氣。同時博古架的設計在平面上延伸空間,兩者共同作用,將入戶位置空間在視覺上擴大。
廚房根據功能劃分為中廚、西廚,分別與會客廳和餐廳相連,方便居住者會客交友。老人的房間在一層的南側,距離入戶門較近。
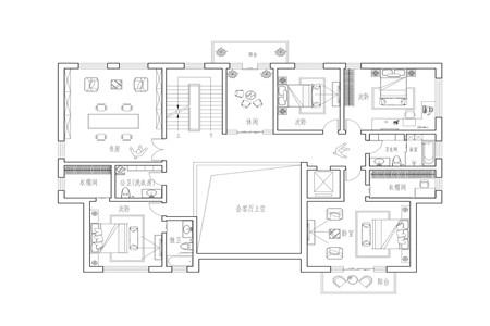
二層在功能規劃上設計為客房層,這一層共設計了4個臥室,滿足朋友留宿的要求。同時將書房設計在二層,分隔開業主的休息區和辦公區。
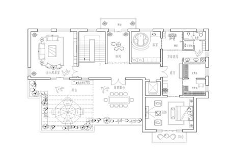
三層設計有超大浴室和起居室。屋頂露臺和陽臺相連,立面造型上使得建筑對稱美觀。使用功能上露臺和陽臺可以滿足不同天氣下的觀景需求。三層整層可以滿足居住者日常生活中的各種使用需求,房間功能的多樣使得建筑的豪華感油然而生。
建筑是歐式風格的三層別墅,整體風格大氣宏偉。三層西側的部位設計為有遮擋陽臺,與西側造型相統一,更有對稱美感。建筑頂層的老虎窗在空間上使得建筑更有設計感,在功能上還可以讓頂層采光和通風能力更為突出。
房子東、西側房間設置了多扇窗戶,更好的保證了房間內的采光和通風。建筑北側沒有后門,一層位置為裝飾效果,使得視覺上建筑更顯豪華大氣,北側二、三層的陽臺補全建筑的觀景角度。
屋頂是紅褐色,與外墻的顏色形成鮮明的對比。門外還種植了一些綠色植物,增加了房子設計的亮點。鐵藝護欄的花紋搭配房子石膏的造型,精致又優雅。
這樣一套三層的歐式別墅是你想要的房子嗎?希望小編整理的相關內容可以幫助到大家哦,大家也要多多關注我們的網站。當然,您也可以聯系我們幫您量身定制屬于自己的房子。 圖紙之家-專注農村別墅/自建房設計18年,集合國內200余位經驗豐富的設計師,被評為口碑最好的農村建筑設計公司! |

農村兩層新中式仿古四合院別墅戶型圖,小型占地不到200平
占地:193平方米
15×10米農村二層四合院自建房戶型圖,小型四合院設計圖
占地:150平方米
鄉村房屋改建三層房屋設計圖紙,農村樓房設計圖推薦
占地:90平方米
農村建房兄弟雙拼兩層住宅設計圖,單戶150平米左右
占地:300平方米
帶電梯農村建房三層小洋樓,樓中樓結構,帶露臺
占地:110平方米
兩層樓房設計圖,兩層新農村樓房圖紙,外觀典雅古樸
占地:140平方米
155平方米二層別墅房屋設計圖,帶獨立車庫
占地:155平方米
鄉村最美四合院設計圖及外觀效果圖片,國人的理想住宅
占地:280.62平方米
150平方米的新農村自建三層小別墅設計施工圖紙及效果圖
占地:150平方米
農村二層半房子設計圖 ,占地110平米和160多平兩個戶型圖
占地:多種戶型
200平米二層自建房別墅設計圖,外觀漂亮布局實用
占地:207.09平方米
適合小面寬宅基地的兩開間別墅設計圖,8.5米乘13.5米
占地:107.66平方米
四合院別墅設計效果圖及平面圖,全套施工圖紙
占地:220平方米
20萬農村二層小洋樓設計圖,帶鍋爐房,漂亮簡單實用
占地:165平方米
2026兩層半20多萬農村自建房圖,簡歐風格,美觀大氣
占地:120平方米
農村小別墅設計圖二層,占地不大顏值高,最適合農村建造。
占地:108.66平方米
帶地下室的農村自建三層半歐式別墅設計圖,看著真豪氣!
占地:142.45平方米
2026二層農村新款別墅設計圖,帶車庫,帶鍋爐房
占地:180平方米
帶院子的四間二層別墅房屋設計圖,帶獨立車庫
占地:350平方米
農村實用三層樓房圖片,占地140平米左右,客廳中空
占地:140平方米
推薦:10套新農村自建房設計圖,2026年最新設計
閱讀次數:4825737次
100套鄉村別墅圖片大全,2026年最新設計
閱讀次數:2492203次
6款農村蓋一層平房的設計圖,10萬元就能建起來
閱讀次數:1852637次
這11個一層農村自建房別墅火爆了朋友圈!我最喜歡戶型十!你呢
閱讀次數:750268次
農村6萬元建一層小別墅圖,你敢相信嗎
閱讀次數:567686次
農村5萬塊就能自建房,6套普通房子設計圖分享,你沒看錯!
閱讀次數:419410次
8套農村漂亮三間平房圖片,非常適合在農村修建!
閱讀次數:411197次
農村自建房化糞池怎么做?附方案及施工過程
閱讀次數:391783次
農村一層三間平房設計圖,告別土氣養老房,讓人忍不住點贊
閱讀次數:350581次
新農村二層樓房圖片造價12萬,挑一套回家建房吧!
閱讀次數:349126次
