
|
最近有很多粉絲朋友問小編,進深只有8米,房子怎樣設計比較好看?針對這種小宅基地的,在這里給大家介紹幾款進深為8左右的農村自建別墅戶型! 編號: DC0282 層數: 二層 結構形式: 磚混結構 主體造價: 16-20萬 開間: 12米 進深: 8米 占地面積: 100.86平方米 建筑面積: 227.77平方米
一 層:堂屋、客廳、臥室、廚房、餐廳、衛生間 二 層:客廳(附陽臺)、臥室(附陽臺)、臥室、兒童房、書房、衛生間 編號: DC0273 層數: 二層 結構形式: 磚混結構 主體造價: 16-20萬 開間: 10.5米 進深: 8米 占地面積: 88.5平方米 建筑面積: 204.82平方米
一 層:客廳、臥室、廚房、餐廳、儲藏室、衛生間 二 層:3臥室、書房(附陽臺)、衛生間
編號: DC0224 層數: 二層 結構形式: 磚混結構 主體造價: 16-20萬 開間: 10米 進深: 8米 占地面積: 79.29平方米 建筑面積: 152.55平方米
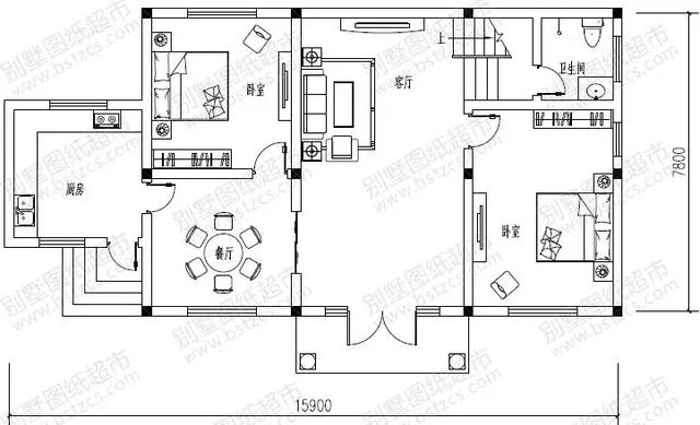
一 層:玄關、客廳、臥室、廚房、餐廳、衛生間 二 層:客廳、休閑廳、臥室(附陽臺)、2臥室、衛生間 閣 樓:儲藏間 編號: DC0212 層數: 二層 結構形式: 磚混結構 主體造價: 16-20萬 開間: 15.9米 進深: 7.8米 占地面積: 114.65平方米 建筑面積: 201.43平方米
一 層:客廳、2臥室、廚房、餐廳、衛生間 二 層:客廳、臥室(附書房,衛生間)、臥室、衛生間、露臺 編號: DC0256 層數: 三層 結構形式: 磚混結構 主體造價: 22-26萬 開間: 14米 進深: 8米 占地面積: 115.12平方米 建筑面積: 296.57平方米
一 層:客廳、臥室、廚房、餐廳、衛生間、車庫(兼儲藏室) 二 層:客廳、休息區、臥室(附露臺)、3臥室、衛生間 三 層:3臥室、衛生間、2露臺 編號: DC0196 層數: 三層 結構形式: 磚混結構 主體造價: 18-22萬 開間: 12.84米 進深: 8米 占地面積: 89.76平方米 建筑面積: 219.86平方米
一 層:客廳、臥室、廚房、餐廳、衛生間 二 層:主臥(附衣帽間,露臺)、臥室、書房、衛生間 三 層:2臥室、衛生間、露臺 圖紙之家-專注農村別墅/自建房設計18年,集合國內200余位經驗豐富的設計師,被評為口碑最好的農村建筑設計公司! |

120平農村三層房屋設計圖,含外觀圖片
占地:120平方米
農村二層帶電梯別墅設計圖,歐式風格,避免老人上下樓的麻煩
占地:179.94平方米
經典三層別墅設計圖紙(全套施工圖+效果圖),新農村自建推薦
占地:123平方米
兩層半帶閣樓別墅房屋設計圖,含外觀效果圖片
占地:118平方米
復式別墅農村四層霸氣豪宅設計圖紙,建好你就是村里第一
占地:136.356平方米
二層樓房圖片及施工圖紙,占地160平米左右,帶車庫
占地:160平方米
160平方米農村實用型二層自建小別墅設計施工圖紙15米*10米
占地:160平方米
新中式三層樓房設計圖紙,帶地下室,地下車庫,帶電梯
占地:230平方米
14米×10米農村二層小別墅自建房設計圖,外觀設計時尚美觀
占地:125平方米
最漂亮的農村二層小樓房自建別墅設計圖紙及效果圖
占地:168平方米
100平米左右簡單實用的二層樓房設計圖,施工簡單造價低
占地:95平方米
15×12米一層農村寶藏戶型,適合養老房,看完鄰居直接要圖紙!
占地:180平方米
農村小洋樓設計圖及效果圖,二層樓房設計圖
占地:120平方米
歐式二層別墅平面圖,全套cad設計圖紙和外觀效果圖
占地:202平方米
80-90平米二層經典小別墅房屋設計圖,左右對稱外觀
占地:88.46平方米
新中式二層農村小樓房設計圖,戶型圖方正,外觀大氣
占地:143平方米
新中式農村自建三層別墅房屋施工,12x10米簡潔雅致
占地:121.77平方米
2026年最新款四間二層別墅設計圖,15米乘13米
占地:171.01平方米
300平方二層別墅四合院設計圖紙方案(效果圖+施工圖)
占地:332平方米
一層帶地下室雙拼別墅設計圖,理想鄉村生活的標配
占地:416平方米
推薦:10套新農村自建房設計圖,2026年最新設計
閱讀次數:4825737次
100套鄉村別墅圖片大全,2026年最新設計
閱讀次數:2492203次
6款農村蓋一層平房的設計圖,10萬元就能建起來
閱讀次數:1852637次
這11個一層農村自建房別墅火爆了朋友圈!我最喜歡戶型十!你呢
閱讀次數:750268次
農村6萬元建一層小別墅圖,你敢相信嗎
閱讀次數:567686次
農村5萬塊就能自建房,6套普通房子設計圖分享,你沒看錯!
閱讀次數:419410次
8套農村漂亮三間平房圖片,非常適合在農村修建!
閱讀次數:411197次
農村自建房化糞池怎么做?附方案及施工過程
閱讀次數:391783次
農村一層三間平房設計圖,告別土氣養老房,讓人忍不住點贊
閱讀次數:350581次
新農村二層樓房圖片造價12萬,挑一套回家建房吧!
閱讀次數:349126次
