
|
中國人傳統觀念:買房置地 在外打拼多年,有了一定積蓄 回到家的第一件事就是改善居住環境 有地的蓋房,沒地的買房 喜歡田園生活的,沒地的“租地”也要蓋房 預算有限又想有屬于自己的別墅,怎么辦 萊茵陽光科技美宅簡約系列戶型值得選擇 可坡可平,可獨棟可雙拼 美觀實用,高性價比
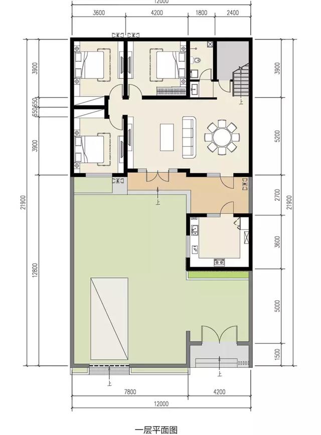
明月雅宅 所屬系列:簡約系列 房屋構造:6室3廳2衛,274.41㎡ 占地面積:280
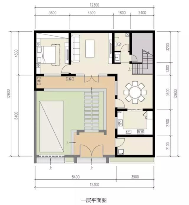
南向客廳與餐廳相連,敞亮通透; 老人房位于西南側,采光極佳; 廚房位于東側廂房位置,與生活空間分開,減少不必要的油煙污染。
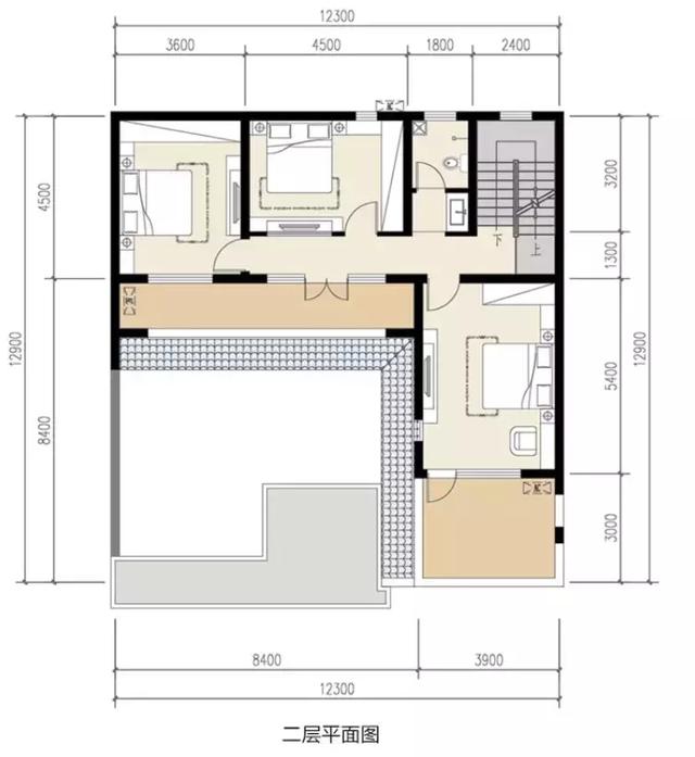
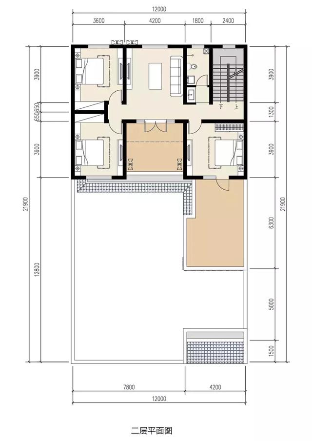
二樓起居室是年輕人交流的空間; 許你可以呼吸新鮮空氣的大露臺; 南側主臥陽光充足,景觀極佳。
明月雅宅實拍圖
和諧美居(坡頂/平頂) 所屬系列:簡約系列 房屋構造:4室3廳2衛,215.38㎡ 占地面積:170
獨立的餐廳和廚房靠近,使用很方便; 大門處有影壁墻,南側有集中的農具、糧食儲藏間,符合農村的生活習慣。
全南側采光,陽光充足,通風好; L型布局,更好的利用地塊,沒有浪費的面積; 適合北側不能開窗的業主需求。 和諧美居實拍圖
方庭美居 所屬系列:簡約系列 房屋構造:6室3廳2衛,241.58㎡ 占地面積:119
許你一個南向大客廳,大大落地窗,陽光暖暖; 一層東側老人房,寬敞明亮,景觀極佳。
戶型方正,沒有浪費的面積; 二樓四個臥室,可以招待親朋好友; 二樓露臺,可喝茶聊天,曬衣曬被。 方庭美居實拍圖
陽光美居 所屬系列:簡約系列 房屋構造:5室2廳2衛,235.39㎡ 占地面積:190.08
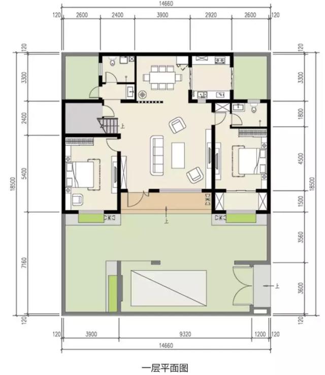
戶型方正,面寬小,堂屋居中,流線短,節省用地; 主臥在東南方,廚房在東北側,合理利用采光良好的重要位置,對老人考慮周到,尊重農村的居住風水特點。
南側院子里設計有菜園、果樹、葡萄架,在院子里可以享受到愜意的生活; 院子角落有單獨的農具、糧食儲藏間,符合農村的生活習慣。
陽光美居實拍圖
緣和美居 所屬系列:簡約系列 房屋構造:3室2廳2衛,148.43㎡ 占地面積:210
全部南向,通風采光良好,擁有獨立庭院景觀,生活如同在度假; 客廳在正中,面對中心院落,與大門入口巧妙錯開,避免對沖。 緣和美居實拍圖
福潤雅居 所屬系列:簡約系列 房屋構造:6室2廳3衛,290.07㎡ 占地面積:271.2
老人房位于東南側,陽光充足,有利于老人身體建房; 南向三開間,臥室、客廳明亮寬敞,非常宜居; 北側廚房與餐廳相連,方便使用。
二層北側寬敞大露臺,休閑娛樂之用; 全南向臥室,采光極佳,東南側為套房,舒適度極高。
圖紙之家-專注農村別墅/自建房設計18年,集合國內200余位經驗豐富的設計師,被評為口碑最好的農村建筑設計公司! |

農村四間二層小洋樓設計圖,歐式別墅、現代洋氣
占地:200平方米
鄉村20萬內三層別墅房屋設計圖,面積適中、戶型經典
占地:100平方米
在農村30萬可以建造的三層別墅款式,帶別墅外觀圖片
占地:138平方米
帶地下室三層別墅設計圖紙(含外觀效果圖),別墅設計方案
占地:134平方米
廚房在前,簡約歐式二層農村自建別墅設計圖,戶型個性
占地:143.69平方米
70平農村小戶型二層別墅設計圖,小宅基地的福音
占地:70平方米
農村三層雙拼房屋建筑施工設計圖紙,帶車庫
占地:180平方米
爆款120平米三層農村別墅房屋設計圖,室內布局功能齊全,色彩搭
占地:120平方米
經典美式二層小別墅設計圖,回鄉建房不可不看的經典之作
占地:109.33平方米
經典實用的新農村三層房屋設計圖紙,推薦自建使用
占地:165平方米
二層半大客廳復式別墅房屋設計圖,客廳寬闊明亮
占地:125平方米
豪華三層歐式雙拼別墅設計圖紙,雙拼歐式別墅如何設計看這款
占地:258.294平方米
帶車庫二層別墅設計圖及效果圖,帶車庫的農村二層樓房推薦
占地:123平方米
三層半復式別墅設計方案,全套設計圖+效果圖
占地:160平方米
兄弟雙拼三層小戶型別墅設計圖紙,160平方米(單戶80平)
占地:163平方米
50萬以內的歐式三層房屋別墅施工設計圖紙及效果圖
占地:169平方米
中式一層仿古自建平房設計圖,灰墻青瓦,外觀古香古色
占地:168.48平方米
新農村三層房屋住宅設計圖紙大全(含效果圖)
占地:122平方米
農村15萬元二層小樓設計圖,造價低,簡潔、好看
占地:90平方米
農村房子設計圖三層獨棟別墅方案,占地130平方米
占地:130平方米
推薦:10套新農村自建房設計圖,2026年最新設計
閱讀次數:4825737次
100套鄉村別墅圖片大全,2026年最新設計
閱讀次數:2492203次
6款農村蓋一層平房的設計圖,10萬元就能建起來
閱讀次數:1852637次
這11個一層農村自建房別墅火爆了朋友圈!我最喜歡戶型十!你呢
閱讀次數:750268次
農村6萬元建一層小別墅圖,你敢相信嗎
閱讀次數:567686次
農村5萬塊就能自建房,6套普通房子設計圖分享,你沒看錯!
閱讀次數:419410次
8套農村漂亮三間平房圖片,非常適合在農村修建!
閱讀次數:411197次
農村自建房化糞池怎么做?附方案及施工過程
閱讀次數:391783次
農村一層三間平房設計圖,告別土氣養老房,讓人忍不住點贊
閱讀次數:350581次
新農村二層樓房圖片造價12萬,挑一套回家建房吧!
閱讀次數:349126次
