
|
河北農村39萬歐式別墅有露臺可停車,室內輪椅使用沒問題,真舒服
河北農村39萬歐式別墅有露臺可停車,室內輪椅使用沒問題,真舒服 項目名稱:河北姚家歐式別墅 項目地點:河北省 建筑面積:248.57㎡ 基地面積:270㎡ 建筑尺寸:12.24m×12m 占地面積:139.62㎡ 圖紙編號:819 戶型概況:5室3廳1廚2衛1設備 建筑結構:框架結構 主創建筑師:張賀棠 土建參考造價:39萬元(不包含室內裝修費用) 項目概況
河北農村39萬歐式別墅有露臺可停車,室內輪椅使用沒問題,真舒服 △總平面示意圖 項目位于河北,建筑占地140平米。基地東、西兩側是鄰居家住宅,南、北兩側是空地。基地四周情況較為簡單,對建筑不會產生影響。 業主個人比較喜歡優雅浪漫的建筑,因此建筑最終選擇歐式風格。 圖紙設計
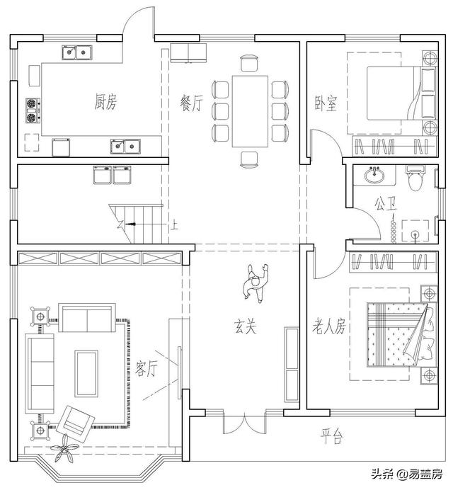
河北農村39萬歐式別墅有露臺可停車,室內輪椅使用沒問題,真舒服 △一層平面圖 平面根據業主需求和場地情況進行設計,由于家中老人日常使用輪椅,因此房間之間盡可能不使用墻體隔斷。 老人房位于南側,房間面積較大,與衛生間距離近。老人房前往餐廳的空間均為開敞式,開闊空間方便老人日常活動。 客廳位于西南角,采用八角窗增加室內使用面積,同時也增加空間趣味性。廚房位置設計有后門,為業主及其家人提供更便捷的出入路徑。生熟操作區分以及電器的擺放都符合業主及其家人使用習慣。
河北農村39萬歐式別墅有露臺可停車,室內輪椅使用沒問題,真舒服 △二層平面圖 二層主要為起居空間,整層共有三間臥室,公衛位于東側中間位置,與各間臥室距離均比較近。設備間位于西北角,西南角客廳上方改為露臺,增加了室外活動空間。 造型設計
河北農村39萬歐式別墅有露臺可停車,室內輪椅使用沒問題,真舒服 △鳥瞰圖 建筑整體為歐式風格,立面最底部采用文化石,讓建筑整體更加穩重,也防止積水對墻體造成損傷。其余部分選用建材商城提供的真石漆,清雅配色與周邊十分搭配。
河北農村39萬歐式別墅有露臺可停車,室內輪椅使用沒問題,真舒服 △鳥瞰圖 考慮到業主后期需要放置太陽能板,屋頂采用平屋頂和坡屋頂組合形式,既保持了造型完整度,也滿足了業主需求,這就是定制設計的魅力所在。
河北農村39萬歐式別墅有露臺可停車,室內輪椅使用沒問題,真舒服 △鳥瞰圖 客廳采用八角落地窗,通透玻璃以及角度變化都讓此處重點得以在造型上完美呈現。 入戶門頭選用經典人字頂設計,配合無障礙坡道,展現大氣的同時為使用提供更多便利。
河北農村39萬歐式別墅有露臺可停車,室內輪椅使用沒問題,真舒服 △南側效果圖
河北農村39萬歐式別墅有露臺可停車,室內輪椅使用沒問題,真舒服 △庭院效果圖 庭院分為兩個部分,前院以停車為主。如此設計將居住和出行區分,保證居住區域的安靜環境。站在二樓露臺將整個前院收入眼中,家人歸來時能第一時間送上溫暖的擁抱。
河北農村39萬歐式別墅有露臺可停車,室內輪椅使用沒問題,真舒服 △露臺效果圖
河北農村39萬歐式別墅有露臺可停車,室內輪椅使用沒問題,真舒服 △屋頂效果圖 通過前院后進入建筑周邊小庭院,此處以植物景觀和休息區域為主。木色平臺和石桌平臺位于東、西兩側,遙遙相望。不同景色和不同心情選用不同休息區域,為業主及其家人帶來更多享受。
河北農村39萬歐式別墅有露臺可停車,室內輪椅使用沒問題,真舒服 △庭院效果圖
河北農村39萬歐式別墅有露臺可停車,室內輪椅使用沒問題,真舒服 △東立面圖
河北農村39萬歐式別墅有露臺可停車,室內輪椅使用沒問題,真舒服 △西立面圖
河北農村39萬歐式別墅有露臺可停車,室內輪椅使用沒問題,真舒服 △南立面圖
河北農村39萬歐式別墅有露臺可停車,室內輪椅使用沒問題,真舒服 △北立面圖 圖紙之家-專注農村別墅/自建房設計18年,集合國內200余位經驗豐富的設計師,被評為口碑最好的農村建筑設計公司! |

155平方米自建二層CAD房屋設計圖紙及效果圖,13X12米
占地:156平方米
自建一層農村別墅圖,經濟實用新選擇,建房必備參考戶型!
占地:142.88平方米
新中式農村三層房屋效果圖及施工圖,140平方米左右
占地:140平方米
網紅中式一層三合院別墅設計圖,白墻黛瓦古典大氣,讓人心曠神
占地:248.82平方米
面寬9米的三層農村自建房設計圖,適合鄉下地區自建
占地:121.94平方米
蓋別墅圖紙新農村簡歐二層房屋設計圖,12米×12米左右
占地:128平方米左右
一層中式三合院農村自建別墅圖,面寬18米帶堂屋設計
占地:165.72平方米
鄉村二層半別墅圖紙設計,歐式風格、錯落有致,150平左右
占地:149.76
仿古別墅建筑設計圖,外觀效果圖+全套施工圖
占地:142平方米
帶架空層的農村二層別墅設計方案,造型大氣漂亮
占地:176平方米
農村7字形漂亮房子設計圖及外觀效果圖
占地:189.3平方米
農村二層小別墅自建房屋設計圖,客廳中空,占地150平米
占地:150平方米
一層半帶閣樓別墅設計圖,悠閑舒適,養老度假皆可
占地:161.94平方米
超大氣的農村一層雙拼自建別墅設計方案,絕對讓人羨慕的“平房
占地:424平方米
150平米一層農村別墅設計圖,養老自住都很不錯,關鍵是造價也很
占地:156平方米
16米X12米四開間二層別墅設計圖,造型美觀經濟實用
占地:198平方米
農村四間兩層樓房設計圖,含外觀圖片
占地:138平方米
農村一層獨棟別墅設計圖,帶閣樓,設計感十足
占地:250平方米
新中式二層農村住宅設計圖,戶型方正,主體造價21萬
占地:135.81平方米
豪華別墅設計圖紙(含效果圖),三層歐式別墅方案精選
占地:117平方米
推薦:10套新農村自建房設計圖,2026年最新設計
閱讀次數:4825737次
100套鄉村別墅圖片大全,2026年最新設計
閱讀次數:2492203次
6款農村蓋一層平房的設計圖,10萬元就能建起來
閱讀次數:1852637次
這11個一層農村自建房別墅火爆了朋友圈!我最喜歡戶型十!你呢
閱讀次數:750268次
農村6萬元建一層小別墅圖,你敢相信嗎
閱讀次數:567686次
農村5萬塊就能自建房,6套普通房子設計圖分享,你沒看錯!
閱讀次數:419410次
8套農村漂亮三間平房圖片,非常適合在農村修建!
閱讀次數:411197次
農村自建房化糞池怎么做?附方案及施工過程
閱讀次數:391783次
農村一層三間平房設計圖,告別土氣養老房,讓人忍不住點贊
閱讀次數:350581次
新農村二層樓房圖片造價12萬,挑一套回家建房吧!
閱讀次數:349126次
