
|
許多人選擇在城市里,度過紙醉金迷的一生;也有許多人,選擇回到鄉村,在老家的院子里,度過春夏秋冬。或許,對于居住者來說,鄉村的房子里永遠充滿了回憶與故事,怎樣都無法割舍!隨著時代的發展,別墅風格日漸增多,你是不是挑選的有點目不暇接了?但總有一棟房子,讓你看一眼就愛上。。以下小編推薦3款2020年最新款簡單大氣三層別墅設計圖以及平面戶型圖,建棟在村里,引領鄉村新潮流。 第一款:簡潔實用三層別墅設計圖和平面戶型圖面寬:10.40m 進深:11.70m 占地面積:105平方米左右 主體造價:25萬左右 這款外觀方正,簡單大方適合農村建設,二樓三樓都有露臺設計,可以增加室內的通風和采光,增加住房舒適度。室內布局合理,一層設置老人房和客房,為生活方便。四面有窗的設計,使室內一天都有陽光。
第二款:現代簡約三層別墅設計圖和平面戶型圖面寬:11.02m 進深:9.67m 占地面積:100平方米左右 主體造價:25萬左右 這款以現代簡約風為主,平頂設計,灰色為主,落地窗設計,充分保證了室內陽光。一層二層設有花池,適合喜愛種花的老人,二層小有陽臺和三層有大露臺的設計,擴充了室外區域,增加了居住的舒適度。
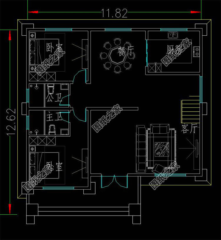
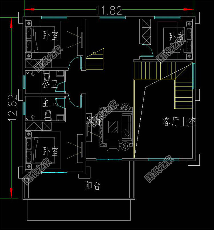
第三款:現代平頂三層別墅設計圖,簡約時尚面寬:11.82m 進深:12.62m 占地面積:125平方米左右 主體造價:26萬左右 這款是現代簡約設計,外立面色調采用灰色和白色結合,整體看起來簡約時尚,線條干凈利落,別墅通透明朗,大面積的玻璃窗設計,使整體看上去視野開闊又寬敞。層次錯落有致,有廊有臺,充滿現代氣息又與周圍環境和諧相襯,享品質鄉野人生。符合年輕人的審美,居住區安排更多臥室,不怕家中人口多。
以上就是小編推薦2020年現代簡單大氣三層自建房設計圖紙以及平面戶型圖,有需要了可以搜索圖紙之家,進行相關圖紙施工的搜索。
圖紙之家-專注農村別墅/自建房設計18年,集合國內200余位經驗豐富的設計師,被評為口碑最好的農村建筑設計公司! |

新農村三層樓房住宅設計方案,戶型圖、效果圖、全套施工圖
占地:180平方米
面寬11米現代風二層小別墅,平屋頂設計,緊跟潮流時尚前衛
占地:94.43平方米
新中式三層歐式別墅設計圖,盡顯貴族風范,占地135平
占地:134.37平方米
七字型設計新中式一層別墅設計圖,類合院風格
占地:267.3平方米
帶車庫現代三層樓房設計圖,外觀效果圖時尚、美觀
占地:160平方米
農村小別墅一層設計圖紙,外觀漂亮極了,130和160兩個戶型
占地:多種戶型可選
驚艷全村的三層別墅設計圖,12×16米美觀大氣布局超合理
占地:179.8平方米
南方新農村三層樓房設計圖紙,帶房屋效果圖
占地:110平方米
3款簡單舒適二層別墅設計圖,低調配色,造型簡單大氣
占地:多戶型可選
新農村簡歐三層樓房圖片自建3層別墅施工設計圖及效果圖
占地:126平方米
140平米二層半帶露臺別墅圖片及圖紙,戶型極佳
占地:140平方米
100平左右農村一層平房小洋樓建筑設計圖紙,14米×8米
占地:98平方米
帶堂屋設計一層三合院設計圖,白墻黛瓦古韻悠悠,比高層舒服接
占地:179.37平方米
帶車庫三層自建別墅設計圖紙,客廳中空,外觀洋氣時尚,這款戶
占地:170平方米
二層現代別墅設計圖及效果圖,外觀美觀,大氣
占地:195平方米
歐式四層(三層半)獨棟別墅設計圖復式,設計豪華時尚
占地:194平方米
帶架空層的農村二層別墅設計方案,造型大氣漂亮
占地:176平方米
網紅款兩層別墅圖紙設計圖,外觀簡單好看,后面不開窗
占地:171平方米左右
農村三層私人住宅設計圖紙及效果圖,帶車庫,帶露臺
占地:150平方米
造價40萬內三層別墅房屋設計方案,設計圖+外觀效果圖
占地:150平方米
推薦:10套新農村自建房設計圖,2026年最新設計
閱讀次數:4825737次
100套鄉村別墅圖片大全,2026年最新設計
閱讀次數:2492203次
6款農村蓋一層平房的設計圖,10萬元就能建起來
閱讀次數:1852637次
這11個一層農村自建房別墅火爆了朋友圈!我最喜歡戶型十!你呢
閱讀次數:750268次
農村6萬元建一層小別墅圖,你敢相信嗎
閱讀次數:567686次
農村5萬塊就能自建房,6套普通房子設計圖分享,你沒看錯!
閱讀次數:419410次
8套農村漂亮三間平房圖片,非常適合在農村修建!
閱讀次數:411197次
農村自建房化糞池怎么做?附方案及施工過程
閱讀次數:391783次
農村一層三間平房設計圖,告別土氣養老房,讓人忍不住點贊
閱讀次數:350581次
新農村二層樓房圖片造價12萬,挑一套回家建房吧!
閱讀次數:349126次
