
|
圖紙詳情 層數: 三層 結構形式:磚混結構 開間:14.2米 進深:8.4米 占地面積:116.48平方米 總建筑面積:308.78平方米 建筑高度:12.63米 主體造價:30萬
效果圖 室內布局展示:
一層平面圖 一層:堂前、客廳、廚房、烤火間、老人房、公衛、豬舍、公衛
二層平面圖 二層:客廳(帶陽臺)、主臥、書房、次臥、客臥(帶露臺)、公衛
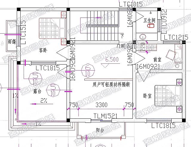
三層平面圖 三層:露臺、客廳(帶 陽臺)、臥室×2、公衛 圖紙之家-專注農村別墅/自建房設計18年,集合國內200余位經驗豐富的設計師,被評為口碑最好的農村建筑設計公司! |

新款的農村自建房子中式二層四合院別墅設計圖,占地300平左右
占地:304平方米
160平方米二層自建別墅設計施工建筑圖紙及效果圖,15x11米
占地:163平方米
農村18萬元二層小樓圖,帶開放式車庫
占地:110平方米
兩層半20萬農村自建房,占地120平米左右
占地:120平方米
農村三層雙拼別墅戶型圖及全套施工圖紙,帶書房,帶衣帽間
占地:260平方米
二層小型簡單四合院設計圖,戶型方正,左右對稱,傳統文化的傳
占地:470平方米
古典韻味的四層房屋設計圖,占地140平米左右,這樣的外觀配上紅
占地:140平方米
客廳中空復式二層別墅設計圖,歐式風格外觀
占地:180平方米
現代四合院別墅設計圖紙,二層戶型,外觀時尚漂亮
占地:287.97平方米
經典四合院別墅設計圖,復式挑空客廳讓四合院更高端
占地:175平方米左右
最漂亮的農村二層小樓圖,平屋頂的設計對于農村來說尤為便利
占地:170平方米
180平方別墅房屋設計圖,外觀效果圖美觀
占地:180平方米
經濟實用二層復式樓房設計圖 ,占地150平方米,造價25萬左右
占地:150平方米
一層中式三合院別墅設計圖,白墻黛瓦引領潮流
占地:177.94平方米
10米×13米最好看的農村三層樓房圖,客廳中空
占地:124平方米
2026新農村三層雙拼房屋設計圖紙平面圖與效果圖,帶堂屋
占地:190平方米
帶地下室獨棟三層高端別墅房圖紙設計圖,復式客廳旋轉樓梯
占地:146.145平方米
大氣豪華四層別墅設計圖紙,占地180平米左右
占地:180平方米
平頂新中式三層農村別墅設計圖,最適合鄉村自建占地150平米
占地:150.35平方米
建完被夸半年!現代風三層農村別墅,顏值抗打還百看不厭
占地:136.01平方米
推薦:10套新農村自建房設計圖,2026年最新設計
閱讀次數:4825737次
100套鄉村別墅圖片大全,2026年最新設計
閱讀次數:2492203次
6款農村蓋一層平房的設計圖,10萬元就能建起來
閱讀次數:1852637次
這11個一層農村自建房別墅火爆了朋友圈!我最喜歡戶型十!你呢
閱讀次數:750268次
農村6萬元建一層小別墅圖,你敢相信嗎
閱讀次數:567686次
農村5萬塊就能自建房,6套普通房子設計圖分享,你沒看錯!
閱讀次數:419410次
8套農村漂亮三間平房圖片,非常適合在農村修建!
閱讀次數:411197次
農村自建房化糞池怎么做?附方案及施工過程
閱讀次數:391783次
農村一層三間平房設計圖,告別土氣養老房,讓人忍不住點贊
閱讀次數:350581次
新農村二層樓房圖片造價12萬,挑一套回家建房吧!
閱讀次數:349126次
