
|
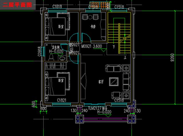
老實說,農村建房不需要太大,只要能夠滿足家人的住房需求就可以了,房子太大既浪費又難清掃,人人都想住大房子,寬敞舒適,這也很正常,不過小戶型也有小戶型的好,小戶型配上精致巧妙的設計更讓人欣喜,今天小編給大家分享一款新出爐85平米25萬三層農村自建房小戶型設計圖3廳5臥帶露臺。 圖紙詳情 層數: 三層 結構形式: 磚混結構 主體造價: 20-25萬 開間: 8.76米 進深: 9.26米(不含門柱) 占地面積: 85.5平方米 總建筑面積: 235.28平方米
效果圖 這款小別墅戶型雖然小,經過優化設計,布局合理,功能齊全。共設有5間臥室,還有其他功能房,動線流暢,功能使用性強。外觀非常時尚,屋頂坡面設計,讓整棟建筑層次感豐富,造型生動。配色清新優雅,黃色外墻給人溫馨感,多了幾分鄉村的恬淡美好。多面開窗,采光通通風效果極佳。 設計功能
一層: 客廳、餐廳、廚房、臥室、衛生間
二 層: 客廳(帶陽臺)、臥室×2、書房、衛生間 三層: 臥室×2、茶室、衛生間、露臺 圖紙之家-專注農村別墅/自建房設計18年,集合國內200余位經驗豐富的設計師,被評為口碑最好的農村建筑設計公司! |

2款帶露臺農村別墅設計圖二層精選,造價超值性價比
占地:多戶型可選
100平左右農村一層平房小洋樓建筑設計圖紙,14米×8米
占地:98平方米
新農村四層獨棟復式別墅設計圖,設計豪華時尚
占地:140平方米
160平方米新農村三層半別墅設計圖11X16米65萬以內
占地:160平方米
三層平頂現代別墅設計圖,實用不花冤枉錢,建好倍有面子
占地:113.02平方米
四層巴洛克別墅設計圖,旋轉樓梯搭配超大挑空客廳,很有氣勢
占地:146平方米
中式四合院風格別墅設計圖,平屋頂,書房、茶室、健身房一應俱
占地:370平方米
鄉村仿古一層別墅圖片及設計圖,經典實用,占地170平
占地:170平方米
自建一層農村別墅圖,經濟實用新選擇,建房必備參考戶型!
占地:142.88平方米
農村兩層新中式仿古四合院別墅戶型圖,小型占地不到200平
占地:193平方米
實用型二層別墅設計方案,占地120平米簡單大方最耐看
占地:120平方米
簡約精致的二層房子設計圖,農村自建經濟實用
占地:89.76平方米
農村二層半新中式小別墅設計圖(帶閣樓層),二層半自建房戶型
占地:144平方米
110平米一層小別墅設計方案,布局四室兩廳一廚兩衛
占地:110.5平方米
二層中式四合院別墅設計圖,經典、漂亮(全套施工圖)
占地:350平方米
簡歐風格二層別墅設計圖,經典不過時大氣時尚,漂亮的不像話!
占地:205.68平方米
新中式農村三層樓房設計圖,帶地下室,主體建筑面積110平米
占地:110平方米
帶框架層的四層別墅設計圖,框架層功能布局很多,很實用
占地:169.09平方米
百余平三層豪華別墅設計圖,高品位穩重耐看,全村都羨慕的豪華
占地:108.95平方米
120多平米三層農村別墅設計圖,把實用做到極致,造價適中
占地:126.85平方米
推薦:10套新農村自建房設計圖,2026年最新設計
閱讀次數:4825737次
100套鄉村別墅圖片大全,2026年最新設計
閱讀次數:2492203次
6款農村蓋一層平房的設計圖,10萬元就能建起來
閱讀次數:1852637次
這11個一層農村自建房別墅火爆了朋友圈!我最喜歡戶型十!你呢
閱讀次數:750268次
農村6萬元建一層小別墅圖,你敢相信嗎
閱讀次數:567686次
農村5萬塊就能自建房,6套普通房子設計圖分享,你沒看錯!
閱讀次數:419410次
8套農村漂亮三間平房圖片,非常適合在農村修建!
閱讀次數:411197次
農村自建房化糞池怎么做?附方案及施工過程
閱讀次數:391783次
農村一層三間平房設計圖,告別土氣養老房,讓人忍不住點贊
閱讀次數:350581次
新農村二層樓房圖片造價12萬,挑一套回家建房吧!
閱讀次數:349126次
