歐式風格的一款農村別墅,外觀采用淺色的真石漆搭配少量的瓷磚用以點綴,非常大氣又接地氣,與農村周邊的環境相得益章。戶型開間12.2,進深12.5米,主體造價45萬左右,非常方正大氣的戶型。
門頭是典形的歐式風格,大氣的羅馬柱,歐式構件,很是經典。既彰顯房屋的整體風體,又讓入戶空間與屋內空間得以過渡。
二層和三層的陽臺非常的別致,讓建筑的層次感更為突出,配上精美的花瓶護欄,讓外觀的細節更精美,更顯品味。
房子的設計主要以舒適大氣為主,大開間,大客廳。一層除了老人房外,大部份都為開放式空間,可以根據每個家庭的需求靈活布置。入戶的門廳可設計堂屋,大的客廳也可分開一個棋牌室或者茶室。這樣的設計非常適應農村人的生活習慣,開放通透的空間也非常的提升生活品質。
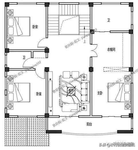
二層主要作為起居空間使用,主臥室為套間設計,衣帽間和衛生間齊全,另有2間次臥,方便自往與待客。陽臺非常開闊兼具實用和舒適性。
三層為起居和休閑空間,多功能廳可以作健身娛樂室,滿足多元化的生活要求。露臺為休閑平臺,做陽光房和觀景臺都符合現代農村的生活需求。







































