
|
圖紙詳情 層數: 三層 結構形式:磚混結構 開間:14.2米 進深:8.4米 占地面積:116.48平方米 總建筑面積:308.78平方米 建筑高度:12.63米 主體造價:30萬
效果圖 室內布局展示:
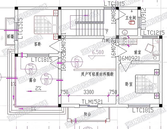
一層平面圖 一層:堂前、客廳、廚房、烤火間、老人房、公衛、豬舍、公衛
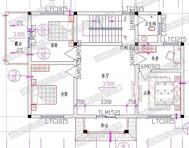
二層平面圖 二層:客廳(帶陽臺)、主臥、書房、次臥、客臥(帶露臺)、公衛
三層平面圖 三層:露臺、客廳(帶 陽臺)、臥室×2、公衛 圖紙之家-專注農村別墅/自建房設計18年,集合國內200余位經驗豐富的設計師,被評為口碑最好的農村建筑設計公司! |

100平內的三層豪華歐式別墅房屋設計圖紙 ,簡歐風格
占地:94平方米左右
農村三層別墅新款圖片及戶型設計圖紙大全,110平簡歐風格
占地:110平方米左右
農村四間二層別墅設計圖,七室二廳帶車庫,室內寬敞鄰居都羨慕
占地:217.1平方米
廚房餐廳在配房的歐式三層農村別墅設計方案,華麗又宜居
占地:177.58平方米
100平左右農村一層平房小洋樓建筑設計圖紙,14米×8米
占地:98平方米
新農村140平米樓房圖四層獨棟別墅設計圖,簡歐外觀風格設計
占地:141平方米
120平現代實用三層別墅房屋設計圖,含外觀效果圖
占地:120平方米
新農村三層自建樓房設計圖,帶大露臺,外觀大氣
占地:136平方米
125平方米三層新農村房屋建筑施工設計圖帶外觀圖
占地:126平方米
最漂亮的農村二層小樓設計圖紙,簡約又大氣時尚
占地:120平方米
155平方米新三層全套別墅設計資料,15x10米
占地:158平方米
占地130平方米二層鄉村別墅自建房圖紙設計圖,效果圖好看
占地:131.658平方米
275平方米新農村雙拼樓中樓戶型別墅設計圖紙及效果圖21X14米
占地:275平方米
好看又簡單的二層樓房設計,經濟實用型的農村小別墅
占地:135平方米
小戶型三層別墅設計圖,戶型經典,外觀精致、美觀
占地:95平方米
新農村三拼別墅三戶連體別墅設計圖,設計新穎美觀
占地:380平方米
120平方米農村四層別墅設計圖,含全套施工圖
占地:120平方米
150平二層別墅房屋設計圖,現代風格,造型精致
占地:150平方米
農村25萬別墅款式二層自建房設計圖,外觀圖時尚
占地:115平方米
150平左右新農村自建房設計圖,含外觀效果圖
占地:150平方米
推薦:10套新農村自建房設計圖,2026年最新設計
閱讀次數:4825737次
100套鄉村別墅圖片大全,2026年最新設計
閱讀次數:2492203次
6款農村蓋一層平房的設計圖,10萬元就能建起來
閱讀次數:1852637次
這11個一層農村自建房別墅火爆了朋友圈!我最喜歡戶型十!你呢
閱讀次數:750268次
農村6萬元建一層小別墅圖,你敢相信嗎
閱讀次數:567686次
農村5萬塊就能自建房,6套普通房子設計圖分享,你沒看錯!
閱讀次數:419410次
8套農村漂亮三間平房圖片,非常適合在農村修建!
閱讀次數:411197次
農村自建房化糞池怎么做?附方案及施工過程
閱讀次數:391783次
農村一層三間平房設計圖,告別土氣養老房,讓人忍不住點贊
閱讀次數:350581次
新農村二層樓房圖片造價12萬,挑一套回家建房吧!
閱讀次數:349126次
