
|
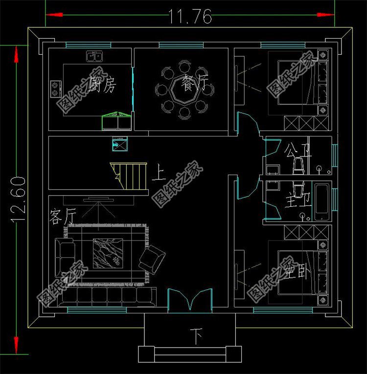
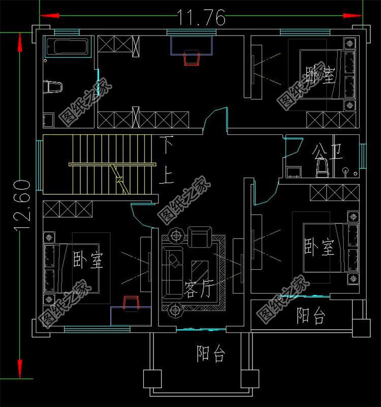
現在農村自建房不再是能住就行了,光好看不實用也不行,光實用不美觀也解決不了任何問題,所以布局不僅要實用外觀也要漂亮才行。要說到高檔氣派豪華的戶型,人們可能首先會想到三層的別墅,建一個歐式風格別墅在農村是非常盛行的。今天分享三款農村磚混三層自建房設計圖,外觀大氣高貴,能在鄉下蓋一棟也就心滿意足了。 款式一:農村三層別墅設計圖,占地106平米,歐式風格設計圖紙介紹:本戶型占地106平米左右,歐式風格設計,外觀精致高雅,內部寬敞自在,適合所有人的戶型。建筑的內部設計主要還是以經濟適用為主的。外墻的外觀顏色采用的是很多歐式建筑都會用的米白色,羅馬柱在大門的兩邊,瞬間就有了歐式宮廷的感覺,屋頂是斜坡設計,三層設計了一個大型的露臺。墻體側面設計了很多個玻璃窗戶,可以保證通風和采光。 占地面積:11.7m*8.8m,106平方米; 建筑層高:三層; 建筑高度:12.6米(含屋頂); 設計功能: 一層戶型: 主臥,衛生間,客廳,廚房,餐廳,神位; 二層戶型:衛生間,娛樂室,臥室X3,客廳,陽臺; 三層戶型:衛生間,露臺,茶室,陽臺,露臺,書房,臥室; ![]() ![]() ![]() ![]() 款式二:農村三層別墅設計圖,占地132平米左右,外觀設計非常高大上圖紙介紹:這款三層別墅占地132平米左右,外觀歐式風格大氣典雅,造型別致有型,充滿了立體感和空間感,斜肩是屋頂設計。二三層設有衣帽間,滿足家人儲藏收納,大型的露臺設計,家人可以在此夜晚賞月聚餐,開party,也可以在此觀光等。 占地面積:11.76m*12.6m,132.48平方米; 建筑層高:三層; 建筑高度:12.109米(含屋頂); 設計功能: 一層戶型:客廳、餐廳、廚房、臥室(帶衛生間)、臥室、衛生間; 二層戶型:客廳、臥室(帶衛生間衣帽間)、臥室x2、衛生間、陽臺; 三層戶型:客廳、臥室(帶衣帽間)、臥室x2、衛生間、露臺; ![]() ![]() ![]() ![]() 款式三:農村三層別墅設計圖,占地196平米,現代風格高端大氣圖紙介紹:本戶型占地196平米,現代風格高端大氣,室內采光通風,客廳中空設計,寬敞且富有層次感,屋頂有大露臺設計,方便晾曬及賞景,共設有8間臥室,滿足現代大多數農村家庭居住,戶型大氣美觀,十分耐看。 占地面積:15.9m*12.8m,196平方米左右; 建筑層高:三層; 建筑高度:14米(含屋頂); 設計功能: 一層戶型: 臥室,衛生間X2,廚房,餐廳,神位,品茶區,客廳; 二層戶型:臥室X3,衛生間X3,衣帽間,客廳上空,陽臺; 三層戶型:臥室X4,衛生間X3,衣帽間,娛樂室,露臺; ![]() ![]() ![]() ![]() 這三款戶型大氣美觀,能在鄉下建一棟簡直太心滿意足了。
圖紙之家-專注農村別墅/自建房設計18年,集合國內200余位經驗豐富的設計師,被評為口碑最好的農村建筑設計公司! |

好看又簡單二層仿古中式四合院樓房設計圖
占地:352平方米
高端大氣三層歐式別墅設計圖,高檔新款外型圖片美觀時尚
占地:168平方米
私人二層農村小樓設計圖,外觀靚麗,富有現代氣息
占地:160平方米
農村60萬別墅款式設計圖及外觀效果圖,客廳中空
占地:150平方米
170平方米新農村實用的三層雙拼設計圖紙,帶公用堂屋!
占地:173.62平方米
農村三層帶地下室住宅設計圖及圖片,房內設計了兩個套間
占地:210平方米
140平方米兩層別墅CAD設計圖紙及效果圖,13x11米
占地:138平方米
二層帶架空層的農村別墅設計圖,功能齊全,超越十里八村
占地:130平方米
新農村小開間三層樓房設計圖,占地100平米左右
占地:多種戶型
占地105平實用三層樓房別墅設計圖紙,造型方正簡單大氣
占地:105平方米
12.8x10米二層自建房別墅設計圖,大氣美觀實用,建造無憂
占地:128平方米
簡簡單單一層農村自建別墅方案,布局緊湊又不擁擠
占地:133.55平方米
復式挑空二層別墅設計圖,占地175平米,建好住著很舒適
占地:175.44平方米
農村四間二層別墅設計方案圖,外觀精致、時尚
占地:152平方米
兄弟四間三層雙拼別墅設計圖,造價40萬左右
占地:210平方米
農村10萬元一層小別墅設計圖,農村一層自建房屋設計圖
占地:多種戶型
14米×10米農村二層小別墅自建房設計圖,外觀設計時尚美觀
占地:125平方米
鄉下建房一層平房設計圖紙及戶型圖,占地150平米左右
占地:150平方米
一層中式仿古三合院設計圖,實用又大氣,百年不過時
占地:366.67平方米
新農村帶陽臺三層樓房圖紙,占地180平米左右,豪華大氣
占地:180平方米
推薦:10套新農村自建房設計圖,2026年最新設計
閱讀次數:4825737次
100套鄉村別墅圖片大全,2026年最新設計
閱讀次數:2492203次
6款農村蓋一層平房的設計圖,10萬元就能建起來
閱讀次數:1852637次
這11個一層農村自建房別墅火爆了朋友圈!我最喜歡戶型十!你呢
閱讀次數:750268次
農村6萬元建一層小別墅圖,你敢相信嗎
閱讀次數:567686次
農村5萬塊就能自建房,6套普通房子設計圖分享,你沒看錯!
閱讀次數:419410次
8套農村漂亮三間平房圖片,非常適合在農村修建!
閱讀次數:411197次
農村自建房化糞池怎么做?附方案及施工過程
閱讀次數:391783次
農村一層三間平房設計圖,告別土氣養老房,讓人忍不住點贊
閱讀次數:350581次
新農村二層樓房圖片造價12萬,挑一套回家建房吧!
閱讀次數:349126次
