
|
在我國農村,農民幾乎都是通過自建房方式來滿足居住需求。只要擁有自有土地,只要自己賺到錢想蓋新房,經過村委、鄉鎮政府的審批都是允許的。要說什么樣的屋頂在農村比較流行,10年以前平屋頂大露臺的戶型是更為普遍的,畢竟屋頂上的大露臺可以晾曬家里的玉米、稻谷等。但是近幾年來,很多農村人都到城市打工,種的莊稼是越來越少,也就沒有必要在屋頂上留有大露臺,都選擇了美觀時尚的坡屋頂。雖然坡屋頂的別墅戶型圖紙很多,但我們也不缺平屋頂房屋,畢竟平屋頂戶型更易于施工,建房成本也較低,還是有很多建房者會選擇的。 今天樂美宅推薦2款平屋頂別墅設計圖紙,簡單漂亮! 第一款
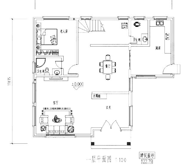
該戶型占地120平米左右,廚房設有偏房,明廚明衛,以一種較大的空間展示給眼前,視覺效果更加出色,居住體驗感更棒! 層數: 2層 結構形式: 框架結構 主體造價: 21-31萬 開間: 13米 進深: 11.8米 占地面積: 123平方米 建筑面積: 239.93平方米 平面圖:
一層平面圖 一 層: 玄關、客廳、廚房、公衛、帶獨衛老人房
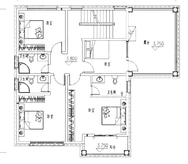
二層平面圖 二 層: 臥室、露臺、帶獨衛臥室2間,帶獨衛陽臺臥室1間 第二款
這款二層農村自建房采用平屋頂設計,戶型簡單大方,二層有長陽臺,屋頂上有超大露臺,南北采光,外立面色彩簡約大氣,共設有3廳5臥,主體造價20萬左右,施工難度不大,適合農村建造。 層數: 二層結構形式: 磚混結構主體造價: 20-24萬 開間: 11米進深: 9米占地面積: 123.64平方米建筑面積: 243.45平方米 功能設計 一 層:門廳、客廳、廚房、餐廳、衛生間、臥室、儲藏間 二 層:客廳、臥室(帶內衛)、3臥室、衛生間、陽臺 平面圖:
一層平面圖
二層平面圖 圖紙之家-專注農村別墅/自建房設計18年,集合國內200余位經驗豐富的設計師,被評為口碑最好的農村建筑設計公司! |

經典二層農村自建房屋別墅設計圖紙,占地110平米左右
占地:110平方米
新農村小戶型4層自建房三層半別墅設計圖,平屋頂設計
占地:95平方米
農村小戶型三層復式樓房設計圖,100平左右
占地:100平方米
新中式高端三層雙拼自建房別墅設計圖,豪華霸氣的外觀
占地:256.02平方米左
門廳共用二層歐式兄弟雙拼別墅圖片及施工圖
占地:340平方米
110平方米二層自建小別墅設計CAD施工圖紙帶效果圖,12x13米
占地:110平方米
新農村帶陽臺三層樓房圖紙,占地180平米左右,豪華大氣
占地:180平方米
140平中式徽派一層別墅設計圖,一層照樣建這樣漂亮
占地:140平方米
130平新農村二層住宅設計圖,外觀精致、漂亮
占地:130平方米
農村一層養老別墅設計圖,兩個戶型方案可選
占地:多種戶型
180平方米漂亮大氣三層雙拼別墅設計圖,自建房圖片
占地:186平方米
二層農村雙拼別墅帶露臺設計圖,20×11.8米,單戶110平米
占地:220平方米
210平方米新農村三層雙拼全套別墅設計圖紙帶效果圖
占地:207.25平方米
170平方米農村二層小別墅設計圖及效果圖
占地:170平方米
農村三層雙拼別墅戶型圖設計圖,整體外觀氣派
占地:220平方米
帶車庫二層165平別墅房屋設計圖,含效果圖
占地:165平方米
簡單實用二層雙拼樓房設計圖,造價30萬左右
占地:180平方米
帶雙車庫的新中式二層四合院別墅設計圖,戶型布局實用
占地:321平方米
農村三層雙拼別墅設計圖,帶外觀效果圖,推薦
占地:190平方米
中式徽派二層農村別墅設計圖,白墻黛瓦馬頭墻,永不過時
占地:171平方米
推薦:10套新農村自建房設計圖,2026年最新設計
閱讀次數:4825737次
100套鄉村別墅圖片大全,2026年最新設計
閱讀次數:2492203次
6款農村蓋一層平房的設計圖,10萬元就能建起來
閱讀次數:1852637次
這11個一層農村自建房別墅火爆了朋友圈!我最喜歡戶型十!你呢
閱讀次數:750268次
農村6萬元建一層小別墅圖,你敢相信嗎
閱讀次數:567686次
農村5萬塊就能自建房,6套普通房子設計圖分享,你沒看錯!
閱讀次數:419410次
8套農村漂亮三間平房圖片,非常適合在農村修建!
閱讀次數:411197次
農村自建房化糞池怎么做?附方案及施工過程
閱讀次數:391783次
農村一層三間平房設計圖,告別土氣養老房,讓人忍不住點贊
閱讀次數:350581次
新農村二層樓房圖片造價12萬,挑一套回家建房吧!
閱讀次數:349126次
