
|
別墅的造型好不好看,一般看一眼就知道了,這就是大家想要把房子建的漂亮的原因,室內布局需要深入去了解,而外觀就不需要,但這兩棟別墅不僅僅擁有一個漂亮的外觀,布局也是真的不錯。 第一棟別墅:11.4×13米,磚混結構,主體造價30萬左右,墻面用米白色的真石漆和構件裝飾 ,配落地窗,屋面蓋藍瓦,占地面積142.08平方米,建筑面積417.98平方米。
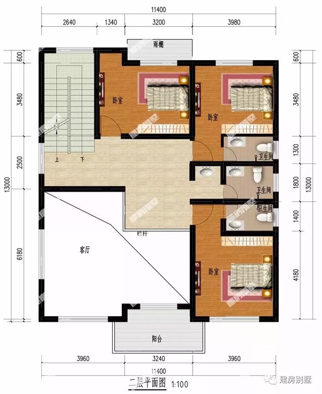
布局說明:首層配有一室兩廳一廚兩衛,主臥帶獨衛,客廳挑空設計配雙跑直角樓梯,廚房和餐廳內通透;二層設有三室三衛,保證了每間臥室內都帶獨衛;三層有三室一廳三衛,配休閑茶室,外設觀景露臺。
第二棟別墅:11.025×13.94米,框架結構,主體造價45萬左右,墻面用面磚、少量真石漆和構件裝飾,屋面配紅色琉璃瓦,占地面積143.6平方米,建筑面積405.58平方米。
室內平面圖:首層配有一室兩廳一廚一衛,客廳空間非常的寬敞,南北通透戶型好,配以三跑的直角樓梯;二層設有四室一廳兩衛,主臥帶獨衛,內配開放式休閑空間,外設生活陽臺;三層有兩室一廳一衛,配陽臺、露臺和涼亭等。
這兩棟別墅好不好,大家看一下就知道,外觀都很美,布局也是非常的不錯,住著舒服且很體面。 圖紙之家-專注農村別墅/自建房設計18年,集合國內200余位經驗豐富的設計師,被評為口碑最好的農村建筑設計公司! |

爆款二層自建房別墅設計圖,不追求奢華,建個溫馨實用的家
占地:100平方米
可以傳家的新中式二層別墅,經典耐看,再過幾十年也不過時
占地:146.81平方米
最漂亮的農村二層小樓設計圖紙,簡約又大氣時尚
占地:120平方米
最新小別墅設計圖,復式三層,外觀非常漂亮
占地:158平方米
農村10萬元一層小別墅設計圖紙,戶型實用又合理
占地:130平方米
簡潔大氣140平方三層房子設計圖,帶車庫戶型極佳
占地:140平方米
小型雙拼一層平房設計圖,外觀古樸
占地:100平方米
精致小巧新農村二層別墅設計圖紙,占地90平米左右,造價15萬左
占地:90平方米
80多平米二層小型自建房設計圖,經濟舒適別具一格
占地:84.48平方米
共用樓梯二層雙拼自建別墅設計圖,簡單大氣方正
占地:153.88平方米,
雙拼小別墅設計圖紙(含效果圖),二層別墅設計方案精選
占地:130平方米
一層帶閣樓農村別墅設計圖,多得一層可變空間,太值了!
占地:165.89平方米
農村15萬元二層小樓設計圖,造價低,簡潔、好看
占地:90平方米
被包工頭夸爆的二層別墅戶型!建好未來幾年必火
占地:189.98平方米
農村15萬元二層小樓設計圖,外觀簡潔、樸素,造價低
占地:138平方米
農村三層別墅設計圖紙,造價50萬左右,中式風格,沉穩內斂
占地:160平方米
175平大客廳三層別墅房屋設計圖,含外觀造型現代,美觀
占地:175平方米
三層農村自建別墅設計圖紙及效果圖,占地110平米,外觀精致又大
占地:110平方米
新農村三層自建樓房設計圖,帶大露臺,外觀大氣
占地:136平方米
一層4間自建平房別墅及全套戶型圖紙,占地160平左右,簡單實用
占地:162.13平方米
推薦:10套新農村自建房設計圖,2026年最新設計
閱讀次數:4825737次
100套鄉村別墅圖片大全,2026年最新設計
閱讀次數:2492203次
6款農村蓋一層平房的設計圖,10萬元就能建起來
閱讀次數:1852637次
這11個一層農村自建房別墅火爆了朋友圈!我最喜歡戶型十!你呢
閱讀次數:750268次
農村6萬元建一層小別墅圖,你敢相信嗎
閱讀次數:567686次
農村5萬塊就能自建房,6套普通房子設計圖分享,你沒看錯!
閱讀次數:419410次
8套農村漂亮三間平房圖片,非常適合在農村修建!
閱讀次數:411197次
農村自建房化糞池怎么做?附方案及施工過程
閱讀次數:391783次
農村一層三間平房設計圖,告別土氣養老房,讓人忍不住點贊
閱讀次數:350581次
新農村二層樓房圖片造價12萬,挑一套回家建房吧!
閱讀次數:349126次
