
|
真正的歐式別墅設計應該是讓別墅融身于自然環境,需要你在自然環境里尋找才能發現的,而不是個性的張揚。
今天要和大家分享的這款別墅風格偏歐式,艾澤拉斯,這棟別墅總面積304.5米,今天推薦這棟華麗的別墅給大家。
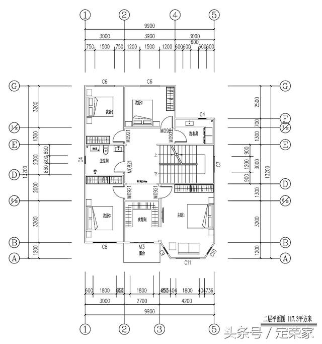
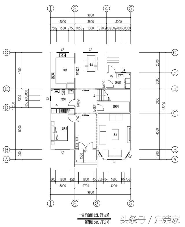
項目信息 層高:一層3.2米,二層2.8米,三層2.8米 總面積:304.5米 一層建筑面積:121.5平米 二層建筑面積117.3平米 三層建筑面積65.7平米 外墻材料:水泥纖維掛板 屋頂材料:多彩瀝青瓦 這個戶型的外觀給人一種大氣,簡潔明亮的歐式風,建筑融于自然環境之中,高低錯落有致。
一層設有老人房、衛生間、客廳、儲物間、洗衣房、兩個餐廳。適合一個大的家庭,不管是休閑娛樂,還是招待親朋好友,都有足夠的空間,進行享受。
二層設有衛生間、洗衣房、衣帽間、衛生間、一個主臥、三個次臥、露臺。二層理所當然就是休憩的理想之處啦!一個大大的露臺,有沒有想來一個spa的沖動呢?
如果你周末想看書,三樓的露臺或是書房就在適合不過啦!這種別墅非常適合在農村建哦! 圖紙之家-專注農村別墅/自建房設計18年,集合國內200余位經驗豐富的設計師,被評為口碑最好的農村建筑設計公司! |

平頂三層別墅設計方案,簡潔舒適大氣通透,12乘9米,打造理想住
占地:98.21平方米
面寬18米二層農村大別墅設計圖,可帶電梯,舒適又實用
占地:138.29平方米
新中式二層雙拼別墅農村自建房子設計圖紙,面寬19米
占地:240平方米左右,單
三間二層最好看別墅設計圖,簡單實用美到爆炸,農村建房新潮流
占地:121.51平方米
一層帶小院自建房設計,穩重經濟,適合老人自住養老
占地:179.19平方米
客廳中空的三層豪華小別墅設計圖,時尚靚麗,鄉下建一棟有面子
占地:171.25平方米
260平方米仿歐式二層別墅設計圖紙及效果圖,22X12米
占地:260平方米
11×10米農村二層別墅圖,百平占地經典實用舒適大氣
占地:103.47平方米
90平方米農村二層房屋設計施工圖紙及效果圖,11x8.5米
占地:90平方米
新款現代一層小別墅設計圖,農村自建平房推薦戶型
占地:多戶型可選
占地180平方米二層鄉村小洋樓設計戶型圖及圖紙,外觀華麗
占地:180平方米
帶架空層車庫/地下室自建一層別墅設計圖,隔潮又能儲物
占地:91.32平方米
農村宅基地建房二層別墅設計圖,適合回鄉自建!
占地:137.5平方米
精致小巧新農村二層別墅設計圖紙,占地90平米左右,造價15萬左
占地:90平方米
130平方米復式三層別墅房屋設計圖,含外觀效果圖
占地:130平方米
巴洛克風格別墅設計圖紙及效果圖,農村建一棟想低調都難
占地:256平方米左右
180平方米漂亮大氣三層雙拼別墅設計圖,自建房圖片
占地:186平方米
簡單質樸三層新農村小別墅設計圖紙,別墅圖片,戶型簡單合理實
占地:120平方米
村里三層新中式風自建別墅圖,對稱設計,氣派好看
占地:135.3平方米
農村三層復式樓房住宅設計圖,私人別墅設計
占地:165平方米
推薦:10套新農村自建房設計圖,2026年最新設計
閱讀次數:4825737次
100套鄉村別墅圖片大全,2026年最新設計
閱讀次數:2492203次
6款農村蓋一層平房的設計圖,10萬元就能建起來
閱讀次數:1852637次
這11個一層農村自建房別墅火爆了朋友圈!我最喜歡戶型十!你呢
閱讀次數:750268次
農村6萬元建一層小別墅圖,你敢相信嗎
閱讀次數:567686次
農村5萬塊就能自建房,6套普通房子設計圖分享,你沒看錯!
閱讀次數:419410次
8套農村漂亮三間平房圖片,非常適合在農村修建!
閱讀次數:411197次
農村自建房化糞池怎么做?附方案及施工過程
閱讀次數:391783次
農村一層三間平房設計圖,告別土氣養老房,讓人忍不住點贊
閱讀次數:350581次
新農村二層樓房圖片造價12萬,挑一套回家建房吧!
閱讀次數:349126次
