
|
項目概況
△總平面示意圖 項目位于江西新余的鄉村內,宅基地面積充足、地塊方正,可方便地將建筑設計為南北朝向。基地的南側為村內道路,東側為鄰家住宅,西側為水壩,北側則為山區。 業主在易蓋房圖庫中挑選了642號圖紙,委托設計師進行修改設計。業主在項目期提出了東西布局鏡像調整需求以及一些房間的局部尺寸方面的修改意見。設計師根據業主的需求以及項目基地實際條件,將項目形式確定為坐北朝南的庭院,南北通過主體建筑劃分為前后庭院。 圖紙設計
△一層平面圖 根據業主的生活習慣和要求,設計師將原設計中的一層平面布局做了東西鏡像對稱變化,公衛與臥室放置于東側,更有利于采光;客廳、堂屋、樓梯間以開放式形式設計為一體,增加了公共空間的開闊感,同時大大提升了實際居住體驗的便捷性和舒適度。餐廳空間開設后門與庭院形成良好溝通,同時也方便了餐廳空間的日常出入。
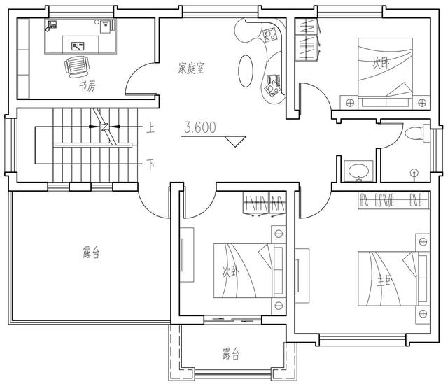
△二層平面圖 東西對調的設計方式也使得二層主臥位置變更到了風水上的上佳位置,次臥連接室外開放式陽臺,使得家人每天都能享受到從清晨到日暮的每一縷和煦陽光。 造型設計
△鳥瞰圖
△西南側效果圖 建筑整體的立面材質以米黃色真石漆為主,渲染出溫馨優雅的生活質感。屋頂下方部分選用白色真石漆過渡,將屋頂與立面的色調和諧連接,同時鮮明的色彩對比也為立面效果增添了更多的靈動與活力。
△鳥瞰圖 南北庭院均設計了具有不同休閑功能的區域,南院(前院)以秋千增加童趣,是室外活動的理想場所;北院則在木板地坪上設置室外家具,可供主人日常接待親朋好友的到訪。
△鳥瞰圖 各個立面上較多的大面積開窗以及屋面上增設的若干天窗,不僅增加了建筑的通透和靈動感,也能為室內帶來更好的光照環境,提升居住品質;屋面瓦斜向鋪貼為建筑帶來了更多的趣味性。
△人視圖 外裝飾設計上,設計師并未采用過多傳統的歐式構件,反而采用偏向于現代風格的露臺玻璃圍欄,以及偏向中式風格的木門檐、木窗框和裝飾板,營造出多元化的立面效果,大大增強了建筑整體造型裝飾的層次感。
△鳥瞰圖 二層上方的線腳被窗套線打斷,同時又與窗套線融合在一起;煙囪的位置既有實際的排煙功能,也讓建筑整體的屋面不會顯得過于單調。
△東立面圖
△西立面圖
△南立面圖 ![]() 圖紙之家-專注農村別墅/自建房設計18年,集合國內200余位經驗豐富的設計師,被評為口碑最好的農村建筑設計公司! |

預算30萬三層樓房設計圖含效果圖,戶型經典
占地:125平方米
大氣豪華四層別墅設計圖紙,占地180平米左右
占地:180平方米
小宅基地自建房設計圖,占地不到90平三層別墅圖紙
占地:87平方米左右
簡單大氣的農村二層樓設計圖,二層歐式農村別墅設計圖
占地:180平方米
歐式二層別墅平面圖,全套cad設計圖紙和外觀效果圖
占地:202平方米
戶型簡單實用的三層農村房屋設計圖紙,復式結構,大面積開窗,
占地:170平方米
簡單的復式住宅設計圖,客廳挑高,帶外觀效果圖片
占地:148平方米
新中式三層樓房設計圖,外觀精致布局也是相當的樸實
占地:140平方米
新中式二層雙拼樓房設計圖,單戶面積100平米左右,實用美觀
占地:200平方米
16米X12米四開間二層別墅設計圖,造型美觀經濟實用
占地:198平方米
130平左右三層樓房設計圖,新農村住宅自建推薦
占地:128平方米
50萬左右農村三層別墅設計圖,歐式的外觀大氣沉穩
占地:150平方米
豪華三層歐式雙拼別墅設計圖紙,雙拼歐式別墅如何設計看這款
占地:258.294平方米
150平方米大平層別墅設計圖,時尚大氣舒適實用
占地:149.43平方米
農村四層樓房外形設計圖,主臥配有陽臺和衣帽間還有衛生間
占地:126平方米
120平二層別墅房屋設計圖,造型美觀、現代
占地:120平方米
170平米自建三層房屋別墅設計圖紙及效果圖
占地:170平米
新款三層農村自建別墅設計圖,中式風復式客廳
占地:158.96平方米
最好看的新款農村三層復式別墅設計圖片及設計圖,外觀高端、大
占地:160平方米
新農村自建二層樓房戶型設計圖,簡單大氣,外觀漂亮精致
占地:多種戶型
推薦:10套新農村自建房設計圖,2026年最新設計
閱讀次數:4825737次
100套鄉村別墅圖片大全,2026年最新設計
閱讀次數:2492203次
6款農村蓋一層平房的設計圖,10萬元就能建起來
閱讀次數:1852637次
這11個一層農村自建房別墅火爆了朋友圈!我最喜歡戶型十!你呢
閱讀次數:750268次
農村6萬元建一層小別墅圖,你敢相信嗎
閱讀次數:567686次
農村5萬塊就能自建房,6套普通房子設計圖分享,你沒看錯!
閱讀次數:419410次
8套農村漂亮三間平房圖片,非常適合在農村修建!
閱讀次數:411197次
農村自建房化糞池怎么做?附方案及施工過程
閱讀次數:391783次
農村一層三間平房設計圖,告別土氣養老房,讓人忍不住點贊
閱讀次數:350581次
新農村二層樓房圖片造價12萬,挑一套回家建房吧!
閱讀次數:349126次
