
|
對于很多人來說,回老家蓋別墅不僅僅是建了棟新房子,更是圓了自己內心多年來的一個夢想。對于老一輩的人來說,小輩為自己建房養老,更讓自己感動的是這份為自己著想的孝心,所以在老家建別墅,是一件讓全家都開心受益的事。 9款面寬為12米的兩層農村自建房戶型,是不是你想要的? 第一款 基本信息:12×10米,占地面積116.06平方米,建筑面積220.83平方米,磚混結構,主體造價23萬左右。
外觀說明:主要裝飾材料有棕色文化石、青色面磚和珍珠白色真石漆。
屋面說明:開一扇老虎窗,用深藍色的琉璃瓦裝飾。
布局說明:一層設計有一室兩廳一廚一衛;二層設計有三室一廳一衛一棋牌室和生活陽臺。
第二款 基本信息:12×9.88米,占地面積120.43平方米,建筑面積244.13平方米,磚混結構,主體造價25萬左右。
外觀說明:主要裝飾材料有青色面磚和白色真石漆。
屋面說明:使用青藍色的琉璃瓦裝飾。
布局說明:一層設計有兩室兩廳一廚一衛;二層設計有四室一廳一衛一棋牌室一陽臺。
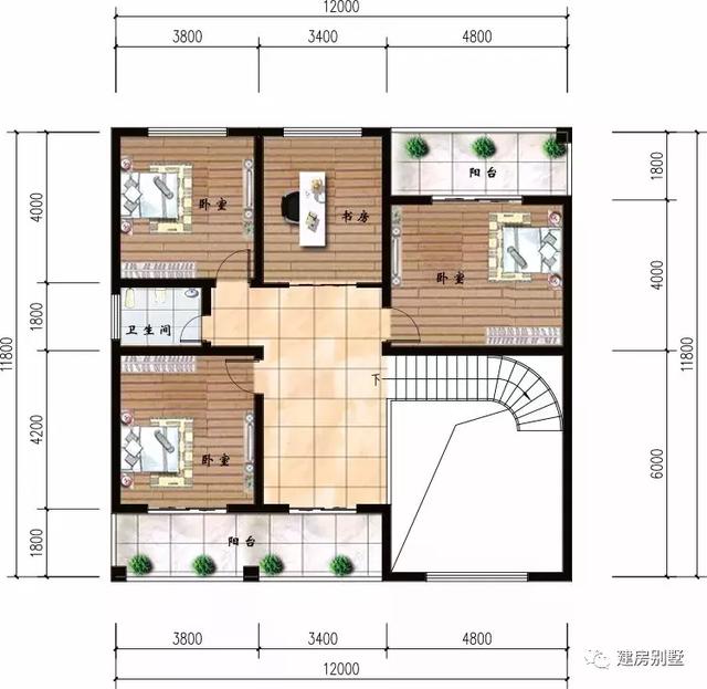
第三款 基本信息:12×11.8米,占地面積125.77平方米,建筑面積262.34平方米,磚混結構,主體造價25萬左右。
外觀說明:主要裝飾材料有青色面磚、黃色面磚和白色真石漆。
屋面說明:使用紅色的琉璃瓦裝飾。
布局說明:一層設計有兩室兩廳一廚一衛,客廳挑空;二層設計有三室一廳一衛一書房兩陽臺。
第四款 基本信息:12×11米,占地面積127.31平方米,建筑面積254.62平方米,框架結構,主體造價28萬左右。
外觀說明:主要裝飾材料有棕色面磚和黃色真石漆。
屋面說明:用紅色琉璃瓦裝飾。
布局說明:一層設計有兩室兩廳一廚兩衛,客廳挑空;二層設計有三室一廳一衛一書房一衣帽間一陽臺。
第五款 基本信息:12×13.5米,占地面積157.8平方米,建筑面積298平方米,磚混結構,主體造價26萬左右。
外觀說明:主要裝飾材料有彩色文化石和黃色真石漆。
屋面說明:屋面開一個老虎窗,用紫色琉璃瓦裝飾。
布局說明:一層設計有一室兩廳一廚兩衛一娛樂室一儲藏室;二層設計有四室一廳三衛一書房一走廊陽臺。
第六款 基本信息:12×15.3米,占地面積149.68平方米,建筑面積294.69平方米,磚混結構,主體造價26萬左右。
布局說明:一層設計有兩室兩廳一廚一衛一娛樂室一儲物間一吧臺;二層設計有四室一廳兩衛一書房一陽臺。
第七款 基本信息:12×12.7米,占地面積144.84平方米,建筑面積253.18平方米,框架結構,主體造價30萬左右。
外觀說明:主要裝飾材料是米黃色的真石漆。
屋面說明:用紅色琉璃瓦裝飾。
布局說明:一層設計有一室兩廳一廚一衛一娛樂室,南北通透;二層設計有三室一廳一衛一露臺。
第八款 基本信息:12×10米,占地面積131.7平方米,建筑面積238.6平方米,磚混結構,主體造價23萬左右。
布局說明:一層設計有一室兩廳一廚一衛一儲物室;二層設計有三室一廳一衛一娛樂室一露臺。
第九款 基本信息:12×9.6米,占地面積120.44平方米,建筑面積266.09平方米,磚混結構,主體造價25萬左右。
外觀說明:主要裝飾材料有青色面磚、黃色面磚和黃色真石漆等。
屋面說明:屋面蓋以紅色琉璃瓦,留有平臺空間。
布局說明:一層設計有一室兩廳一廚一衛;二層設計有三室一廳一衛一陽臺。
每一款戶型的外觀和布局都非常好,在老家花20多萬就能建一棟這么漂亮的別墅,還是很值得的。 圖紙之家-專注農村別墅/自建房設計18年,集合國內200余位經驗豐富的設計師,被評為口碑最好的農村建筑設計公司! |

農村二層中式三合院設計圖,這才是國人該建的房子
占地:175.58平方米
135平復式別墅房屋設計圖,外觀時尚、漂亮
占地:135平方米
160平米三層別墅設計圖,功能齊全,外觀漂亮,適合和父母同住
占地:160平方米
農村三層兄弟雙拼別墅設計圖及效果圖片,14X12米自建戶型
占地:154平方米
農村自建超漂亮中式四合院別墅設計圖,22X25米
占地:473平方米
新農村自建三層復式結構房屋別墅設計圖紙及效果圖
占地:138平方米
農村五開間大平層設計圖,主體15萬就能建。
占地:182.43平方米
農村自建二層半樓房效果圖,美觀大氣布局合理,很適合農村人自
占地:160.11平方米
實用農村10萬一層小別墅戶型圖及圖紙,全套施工圖
占地:多種面積
最新小別墅設計圖,復式三層,外觀非常漂亮
占地:158平方米
人字坡紅磚一層別墅設計圖,簡約低調超實用,這樣的房子人人能
占地:136.51平方米
舒適大方三層房屋設計圖紙及圖片,占地150平米,布局合理,臥室
占地:150平方米
小戶型三層別墅房屋設計圖紙,占地80多平米,麻雀雖小五臟俱全
占地:80平方米
帶雙車庫的新中式二層四合院別墅設計圖,戶型布局實用
占地:321平方米
240平農村二層自建別墅設計圖紙,帶你體驗家的溫馨
占地:240平方米
帶架空層的三層農村別墅設計火了!雨季不怕返潮
占地:147.15平方米
12x10三層別墅設計圖,農村自建房推薦戶型
占地:120平方米
3款三層農村自建別墅設計圖,氣派十足,準備建房的快快查看
占地:多戶型可選
時尚耐看現代二層農村別墅設計圖,14米×11米,年輕人建房的不二
占地:138.125平方米
小型三層別墅cad建筑圖紙帶效果圖,帶屋頂露臺
占地:101平方米左右
推薦:10套新農村自建房設計圖,2026年最新設計
閱讀次數:4825737次
100套鄉村別墅圖片大全,2026年最新設計
閱讀次數:2492203次
6款農村蓋一層平房的設計圖,10萬元就能建起來
閱讀次數:1852637次
這11個一層農村自建房別墅火爆了朋友圈!我最喜歡戶型十!你呢
閱讀次數:750268次
農村6萬元建一層小別墅圖,你敢相信嗎
閱讀次數:567686次
農村5萬塊就能自建房,6套普通房子設計圖分享,你沒看錯!
閱讀次數:419410次
8套農村漂亮三間平房圖片,非常適合在農村修建!
閱讀次數:411197次
農村自建房化糞池怎么做?附方案及施工過程
閱讀次數:391783次
農村一層三間平房設計圖,告別土氣養老房,讓人忍不住點贊
閱讀次數:350581次
新農村二層樓房圖片造價12萬,挑一套回家建房吧!
閱讀次數:349126次
