
|
俊秀清雅,飄逸靈氣的徽派建筑一直為世人所喜愛,那經典的素雅配色,大氣利落的建筑形態,歷經歲月依然傲然于世間;相信再也沒有什么建筑風格,能跟徽派設計這般,意蘊深厚。 今天的這套別墅面寬8.4米,進深13.7米,占地面積105平方米,建筑面積245平方米,總高度12.5米,共設有6室 2廳 3衛 1廚 1書房 1衣帽間 1陽臺 2露臺 1活動區。 立體圖:
別墅外觀上仍是傳統典雅的建筑造型,筆調清雅,自然清秀。寄寓生生不息之吉意的大屋脊吻,高聳雪白的馬墻頭,古樸淡雅的青瓦,集山川風景之靈氣,融中國風俗文化之精華,溫婉而詩意。
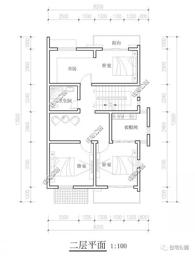
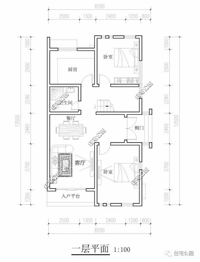
平面布局圖: 首層設計雙入戶門,方便進出,雙臥室的配備設計從一定程度上緩解了現在農村生活擁擠的情況。
二層無獨立起居空間,多臥室設計,主臥居北帶獨立衣帽間設計,兩次臥居南相連方便日常生活。
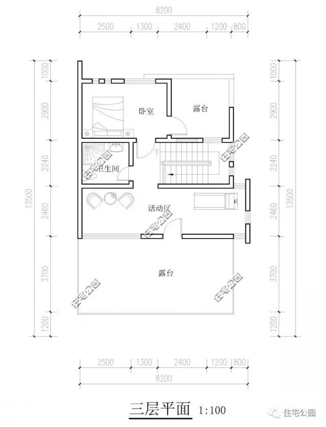
陽臺和露臺的綜合運用,在滿足住戶日常晾曬需求的同時,更注重于周遭環境的互動性,更加隨性自由。
圖紙之家-專注農村別墅/自建房設計18年,集合國內200余位經驗豐富的設計師,被評為口碑最好的農村建筑設計公司! |

150平二層別墅房屋設計圖,現代風格,造型精致
占地:150平方米
200平方二層小別墅設計圖紙,含效果圖,歐式風格帶車庫
占地:197.6平方米
農村二層中式三合院設計圖,這才是國人該建的房子
占地:175.58平方米
新農村兩層樓房設計圖,占地110平米,戶型簡單實用
占地:110平方米
130平左右三層樓房設計圖,新農村住宅自建推薦
占地:128平方米
豪華二層別墅設計圖紙及效果圖,帶車庫,歐式別墅方案
占地:170平方米
最美農村一層合院設計圖紙,自建一棟火遍十里八鄉
占地:190平方米左右
農村二層住宅設計圖,大窗戶客廳,一起享受大面積采光的溫暖
占地:220平方米
20萬農村一層半小洋樓圖,自建別墅設計方案推薦
占地:155平方米
復式挑空現代簡約風三層別墅設計圖,簡單時尚最受年輕人最愛
占地:149.7平方米
農村小別墅一層設計圖紙,全套施工圖兩款戶型可選
占地:多種戶型可選
農村簡單雙拼小戶型,總面積190平方米,合理的利用了每一個空間
占地:190平方米
巴洛克風格別墅設計圖紙及效果圖,農村建一棟想低調都難
占地:256平方米左右
2026年最新款四間二層別墅設計圖,15米乘13米
占地:171.01平方米
農村二層半別墅設計圖,簡單實用,造價低
占地:140平方米
農村兩層新中式自建房屋設計圖,受歡迎的帶小配房戶型
占地:多戶型可選
12米面寬一層農村別墅設計圖,實用又舒適
占地:110.41平方米
農村一層獨棟別墅設計圖,帶閣樓,設計感十足
占地:250平方米
占地70平方米的三層獨棟別墅設計圖,小戶型自建房屋效果圖
占地:70平方米左右
二層復式小洋樓設計圖,外觀精致,戶型合理
占地:115平方米
推薦:10套新農村自建房設計圖,2026年最新設計
閱讀次數:4825737次
100套鄉村別墅圖片大全,2026年最新設計
閱讀次數:2492203次
6款農村蓋一層平房的設計圖,10萬元就能建起來
閱讀次數:1852637次
這11個一層農村自建房別墅火爆了朋友圈!我最喜歡戶型十!你呢
閱讀次數:750268次
農村6萬元建一層小別墅圖,你敢相信嗎
閱讀次數:567686次
農村5萬塊就能自建房,6套普通房子設計圖分享,你沒看錯!
閱讀次數:419410次
8套農村漂亮三間平房圖片,非常適合在農村修建!
閱讀次數:411197次
農村自建房化糞池怎么做?附方案及施工過程
閱讀次數:391783次
農村一層三間平房設計圖,告別土氣養老房,讓人忍不住點贊
閱讀次數:350581次
新農村二層樓房圖片造價12萬,挑一套回家建房吧!
閱讀次數:349126次
