
|
農村建別墅戶型要美觀實用,造價要低,圖紙要簡單,施工隊看的懂,施工難度低,這樣的戶型才最受歡迎。今天小編給大家推薦一款簡歐式風格的農村小別墅,外觀不僅集浪漫、優雅、高貴、大方于一體,迎合了現在年輕人的喜愛。而且室內非常實用,造價也不高。兩種不一樣的尺寸,不一樣的布局,能夠滿足大部份家庭,外觀漂亮和室內實用,基本所有農村適用。
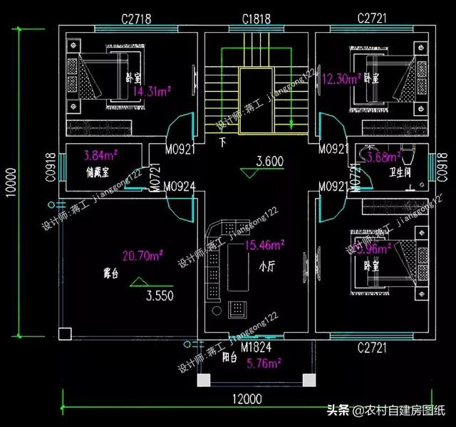
布局一 開間12米 進深10米 占地面積125.34平方米 建筑面積229.98平方米
一層正中間是堂屋,符合農村的生活場景。客廳、餐廳和廚房在一側,呈直線排列,動靜分區。2個臥室的中間為公衛,方便生活起居。
二層設計有3間臥室,客廳、衛生間和儲藏室,儲藏室可以改為私衛,寬敞的屋頂露臺,作個陽光房舒服極了。 布局二 開間11.5米 進深11.3米 占地面積128.6平方米 建筑面積247.31平方米
一層設計有前廳和客廳相連,老人房帶有主臥室,方便家中老人起居。廚房和餐廳相鄰,有后門方便出入。另有一間次臥可以招待客人,樓梯間設計有儲藏室,空間利用合理。
二層設計有4間臥室,2個衛生間,起居室和茶室,露臺齊全,雖然面積小,但是空間利用率超高。 圖紙之家-專注農村別墅/自建房設計18年,集合國內200余位經驗豐富的設計師,被評為口碑最好的農村建筑設計公司! |

兩層20萬農村自建房設計圖,經典農村建房款式,越看越有韻味
占地:160平方米
南方新農村三層房屋設計圖大全,預算30萬內
占地:145平方米
占地160平米的二層簡歐別墅設計圖,外觀圖時尚漂亮
占地:160.28平方米
人字坡紅磚一層別墅設計圖,簡約低調超實用,這樣的房子人人能
占地:136.51平方米
2026年新款一層住宅別墅設計圖紙,中式風格漂亮極了
占地:207平方米
大氣農村三層歐式雙拼別墅全套施工圖紙,帶堂屋設計,外觀圖片
占地:196.056平方米
50萬左右農村豪華二層別墅設計圖 ,大廳中空,外觀精美
占地:210平方米
農村三層帶車庫、帶露臺別墅設計圖,經典自建別墅設計方案
占地:160平方米
簡單現代平屋頂兩層四間自建樓房設計圖紙施工方案,簡潔又實用
占地:192平方米
實用農村10萬一層小別墅戶型圖及圖紙,全套施工圖
占地:多種面積
135平方米新農村三層別墅設計圖紙,外觀效果圖很漂亮
占地:134平方米
200平方米農村二層中式四合院設計圖,含外觀圖片
占地:200平方米
帶電梯農村建房三層小洋樓,樓中樓結構,帶露臺
占地:110平方米
歐式三層農村別墅設計圖,占地130平方米自建房,低調又奢華鄉村
占地:129.8平方米
100-140平多戶型二層經典新農村小別墅設計建筑圖紙
占地:多種戶型
一層帶小院自建房設計,穩重經濟,適合老人自住養老
占地:179.19平方米
現代一層(帶悶頂)別墅住宅設計圖,外觀現代時尚
占地:160平方米
簡單實用農村自建四層小別墅設計圖(三層半),95平米
占地:95平方米
新農村自建二層樓房戶型設計圖,簡單大氣,外觀漂亮精致
占地:多種戶型
農村二層別墅設計圖,帶外觀效果圖,兄弟自建推薦
占地:多種戶型
推薦:10套新農村自建房設計圖,2026年最新設計
閱讀次數:4825737次
100套鄉村別墅圖片大全,2026年最新設計
閱讀次數:2492203次
6款農村蓋一層平房的設計圖,10萬元就能建起來
閱讀次數:1852637次
這11個一層農村自建房別墅火爆了朋友圈!我最喜歡戶型十!你呢
閱讀次數:750268次
農村6萬元建一層小別墅圖,你敢相信嗎
閱讀次數:567686次
農村5萬塊就能自建房,6套普通房子設計圖分享,你沒看錯!
閱讀次數:419410次
8套農村漂亮三間平房圖片,非常適合在農村修建!
閱讀次數:411197次
農村自建房化糞池怎么做?附方案及施工過程
閱讀次數:391783次
農村一層三間平房設計圖,告別土氣養老房,讓人忍不住點贊
閱讀次數:350581次
新農村二層樓房圖片造價12萬,挑一套回家建房吧!
閱讀次數:349126次
