
|
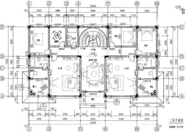
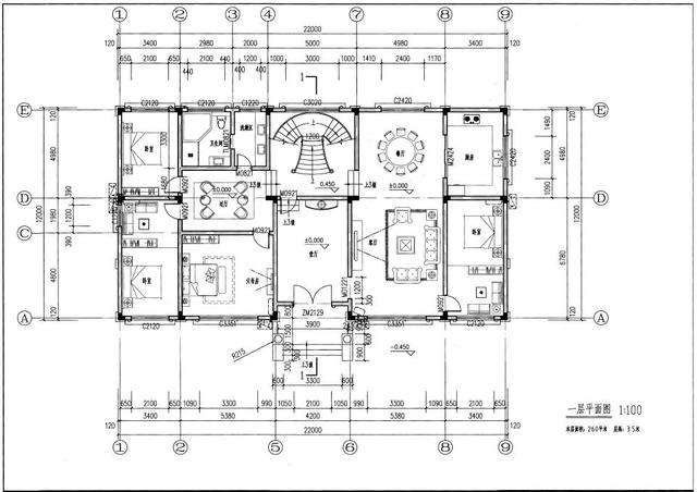
在農村建房子,多半選擇23層別墅,主要的原因是因為一方面能夠滿足人們的虛榮心,因為二三層別墅大多數比較豪華,看上去,氣派一些讓自己有面子。另一方面也是為了方便家人的生活居住條件,提高生活水平。 其實小編認為在農村建房子最主要的是實用性和居住舒適度,外觀裝飾等等都不是很重要,畢竟房子是一輩子的事情,不能草率決定。今天小編給大家帶來一款2019新款2層別墅戶型,這款別墅簡約大氣外觀,時尚年輕,室內布局有9間臥室和兩個客廳,怎么看都讓人滿意,一起來看一下吧。 基本詳情: 別墅的基本詳情面寬:22m,進深:12m主要結構形式采用的是框架結構,高度11.05米。總占地面積260平方米,這么大的面積中,從毛坯到建成主體花費在50萬以上。這款別墅針對土豪朋友們是非常不錯的選擇。
這款別墅外觀端莊典雅文化時,真石漆,紅色琉璃瓦,結合裝飾。這種方案既體現出簡約的外觀,同時又能夠凸顯出別墅的豪華氣派,大門處一里兩根圓形羅馬柱組成小門樓,層次分明,整體來說這款別墅,既耐臟又符合農村的生活習慣,無論是南北方都適合建設。
一層:堂廳,客廳,過廳,臥室*4,餐廳,廚房,衛生間。 建筑室內布局十分寬敞,入戶就是堂屋,既保留了農村人的生活習慣又滿足了人們在精神上的寄托。大家都知道堂屋的設計方便,農村人辦理紅白喜事是必不可少的,往往老一輩的人經常會拿堂屋說事,沒有堂屋的房屋不算是一個完整的家。過廳客廳,面積都很寬敞,餐廳廚房應有盡有,除此之外還設計有4間臥室,每一間臥室室內都設計有多功能設施,比如按摩床,智能電視,智能家居等等。這樣的環境是真正的打造高品質生活。
2層布置,除了基本的起居室和五間臥室以外,還有梳妝臺大露臺和棋牌室。5間臥室完全能夠滿足一家人的生活需求,并且多余的房間可以用于保姆居住,整棟別墅的設計風格和理念就像是國外富豪太太的府邸一樣,非常氣派。平時可以邀約親朋好友,在棋牌室歡度時光。 別墅實景圖:
4周沒有高樓建筑,自己獨棟在這里,事業很寬敞,每天都能感受到早上升起的太陽和落日的余暉。這樣神圣一般的豪宅,路人看了一眼就會記住。
別看別墅與水平面上的土地平齊,它的地基可是十分扎實,外墻使用到的顏色裝飾非常多,但是絲毫不顯得雜亂,反而很美觀。
好了,今天小編就給大家介紹到這里這樣精美的2層結構制定方,是否是你喜歡的呢?既能滿足自己的需求又身居奢侈豪華的住所,打算建房的你,值得考慮。想要查看更多圖紙,還請關注本號,每天為您帶來更多經典戶型! 圖紙之家-專注農村別墅/自建房設計18年,集合國內200余位經驗豐富的設計師,被評為口碑最好的農村建筑設計公司! |

農村大戶型中式二層四合院別墅設計圖含外觀效果圖,戶型經典、
占地:464平方米
二層農村房屋設計圖紙,帶效果圖和全套施工方案圖
占地:多種戶型
2款帶露臺農村別墅設計圖二層精選,造價超值性價比
占地:多戶型可選
四層(三層半)豪華歐式別墅房屋設計圖,外觀高端、大氣
占地:150平方米
鄉村兩層半150平帶閣樓別墅房屋設計圖,客廳大、臥室多
占地:150平方米
豪華三層歐式雙拼別墅設計圖紙,雙拼歐式別墅如何設計看這款
占地:258.294平方米
高端大氣中式四合院二層別墅小樓設計圖,外觀古香古色
占地:213平方米
10X13米新款歐式三層別墅樓房設計圖,外觀清新明亮
占地:140平方米
時尚大方的農村二層自建房屋設計圖紙,占地120平米左右
占地:120平米
客廳中空復式二層別墅設計圖,歐式風格外觀
占地:180平方米
占地180平方米二層農村新款樓房別墅設計圖,外觀漂亮
占地:180平方米
簡約而不簡單的二層新中式鄉墅設計圖,占地150平左右
占地:150.78平方米
大氣的三層鄉村別墅設計方案圖,小面積建出豪宅感
占地:104.9平方米
農村三層自建房子圖紙設計方案,開間11米左右
占地:151.96平方米
農村一層四開間養老別墅設計圖,造型美布局佳
占地:164.27平方米
經濟實惠一層戶型圖,農村養老房舒適至上,簡約而不失溫馨
占地:147.5平方米
新款的農村自建房子中式二層四合院別墅設計圖,占地300平左右
占地:304平方米
農村三層帶露臺、帶車庫房屋設計圖,含外觀圖片
占地:155平方米
農村三層蓋房設計圖大全,最新的設計,最新的戶型
占地:150平方米
帶車庫農村二層雙拼別墅設計圖,外觀現代
占地:235平方米
推薦:10套新農村自建房設計圖,2026年最新設計
閱讀次數:4825737次
100套鄉村別墅圖片大全,2026年最新設計
閱讀次數:2492203次
6款農村蓋一層平房的設計圖,10萬元就能建起來
閱讀次數:1852637次
這11個一層農村自建房別墅火爆了朋友圈!我最喜歡戶型十!你呢
閱讀次數:750268次
農村6萬元建一層小別墅圖,你敢相信嗎
閱讀次數:567686次
農村5萬塊就能自建房,6套普通房子設計圖分享,你沒看錯!
閱讀次數:419410次
8套農村漂亮三間平房圖片,非常適合在農村修建!
閱讀次數:411197次
農村自建房化糞池怎么做?附方案及施工過程
閱讀次數:391783次
農村一層三間平房設計圖,告別土氣養老房,讓人忍不住點贊
閱讀次數:350581次
新農村二層樓房圖片造價12萬,挑一套回家建房吧!
閱讀次數:349126次
