
|
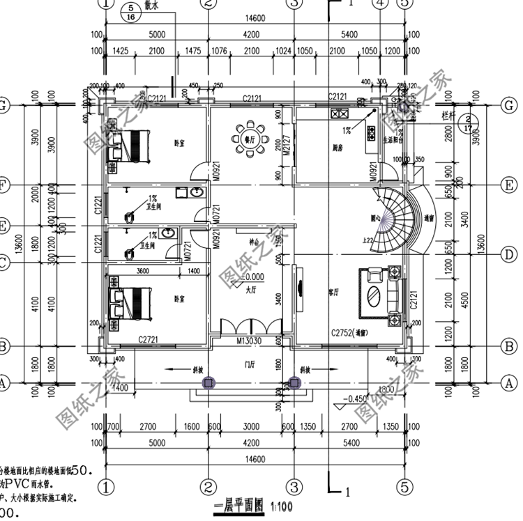
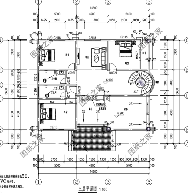
農村建房子的時候,除了考慮到建筑風格款式,還是就是布局,陽臺在建房中 方案一:農村三層別墅設計圖,占地192平米,帶地下室設計圖紙介紹:本戶型占地192平米,復式挑空客廳加超豪華地下室設計,簡歐風格高端大氣,整體大方浪漫,地下室設有多功能活動室;一層氣派的中空客廳非常符合別墅的整體氣質。旋轉樓梯也是非常的氣派;二層設置了3間臥室,設置緊湊,方正合理,開窗采光良好;三層布局與二層一樣,多了一個大露臺,很好 占地面積:16m*13.5m,192平方米左右; 建筑層高:三層; 建筑高度:13.444米(含屋頂); 設計功能: 地下室戶型:健身房、品酒室、棋牌室、儲物間、臺球室、KTV、衛生間; 一層戶型:玄關、客廳、茶室+書房、廚房、餐廳、臥室、衛生間; 二層戶型:客廳上空、起居室、臥室(帶衣帽間、衛生間)、臥室(帶衛生間)、臥室、衛生間、陽臺x2; 三層戶型:臥室(帶衣帽間、衛生間)、臥室(帶衛生間)x2、陽臺、露臺; ![]() ![]() ![]() ![]() ![]() 方案二:農村三層樓房設計圖,占地170平米,外觀好看戶型實用圖紙介紹:本戶型占地170平米,外觀漂亮大氣戶型實用,外墻用面磚和真石漆裝飾,配以一些歐式裝飾構件,講究的是實用性,美觀大氣。 占地面積:14.6m*13.6m,一層占地170平方米左右; 建筑層高:三層; 建筑高度:15.0米(含屋頂); 設計功能: 一 層:客廳、廚房、餐廳、臥室(帶衛生間)、臥室、衛生間; 二 層:客廳上空、客廳、臥室(帶衛生間)、臥室x2、棋牌室、衛生間、陽臺; 三 層:客廳、臥室(帶衛生間)、臥室x2、衛生間、露臺、涼亭; ![]() ![]() ![]() ![]() 方案三:農村三層別墅設計圖,偏徽派風格,古雅簡潔圖紙介紹:本戶型占地101平米,偏徽派風格,南北方都能建,外觀古雅簡潔。外墻采用中國傳統白色乳膠漆,與灰瓦搭配,更具古典風范,很典型的一個徽式民居,加上了現代玻璃欄桿元素,毫無違和感,更有種時尚的感覺。廚房與餐廳相鄰,上菜方便,樓梯口設置了儲藏間,方便主人儲藏物品;二層對于一層來說,依舊以臥室為主,起居室設在中間,十分方便,與陽臺相鄰,采光通風也極好;三層有間大露臺的設計,娛樂性滿分。 占地面積:11.3m*8.76m,101.01平方米左右; 建筑層高:三層; 建筑高度:11.608米(含屋頂); 設計功能: 一層戶型:客廳、儲藏室、餐廳、廚房、臥室、衛生間; 二層戶型:起居室、活動區、臥室x2、臥室(帶衛生間)、衛生間、陽臺; 三層戶型:休閑區、臥室x2、衛生間、露臺; ![]() ![]() ![]() ![]() 不知道這三款戶型大家最喜歡哪一款呢?歡迎下方評論留言。
圖紙之家-專注農村別墅/自建房設計18年,集合國內200余位經驗豐富的設計師,被評為口碑最好的農村建筑設計公司! |

50萬左右農村豪華二層別墅設計圖 ,大廳中空,外觀精美
占地:210平方米
農村4間2層樓房設計圖,戶型方正,四平八穩的二層農村別墅
占地:180平方米
一層農村三合院平房設計圖,可以倆兄弟或和父母兒女一起住
占地:202.79平方米
150平方米二層別墅設計及效果圖展示下載,17X10米
占地:150平方米
兩層15萬農村自建房設計圖,農村蓋房設計大全圖
占地:130平方米
20萬左右農村雙拼別墅住宅設計圖,簡單小戶型設計
占地:120平方米
?13.5x9米這尺寸火了!好多人家照著建這款二層別墅,簡單實用
占地:115.11平方米
歐式小別墅設計圖紙帶效果圖,二層歐式小別墅設計方案展示
占地:166平方米
農村二層中式小三合院別墅全套設計圖,民族特色風格
占地:122平方米
農村二層住宅別墅設計圖,貼心實用,12.8米乘14.5米
占地:156.16平方米
三層雙拼別墅效果圖及戶型設計圖,占地150平米
占地:154.8平方米
15×10米農村二層四合院自建房戶型圖,小型四合院設計圖
占地:150平方米
農村中式二層雙拼四合院別墅設計圖,兄弟父母三戶典雅大氣
占地:360平方米
10×12米三層別墅戶型,挑空大客廳設計,圈粉無數的爆款方案
占地:120平方米
自建帶電梯的三層豪華別墅設計圖,建好有面子,面寬16米
占地:194平方米左右
140平方米新農村四層房屋設計圖紙,農村自建推薦
占地:140平方米
共用中堂雙拼兄弟三層別墅設計圖,簡歐式風格
占地:230平方米
230平方農村雙拼別墅設計圖,26x11米自建房屋戶型
占地:230平方米
180平米農村二層小別墅設計圖,外觀漂亮,帶露臺
占地:180平方米
帶架空層的農村一層小別墅設計圖,大氣穩重又很實用
占地:123.5平方米
推薦:10套新農村自建房設計圖,2026年最新設計
閱讀次數:4825737次
100套鄉村別墅圖片大全,2026年最新設計
閱讀次數:2492203次
6款農村蓋一層平房的設計圖,10萬元就能建起來
閱讀次數:1852637次
這11個一層農村自建房別墅火爆了朋友圈!我最喜歡戶型十!你呢
閱讀次數:750268次
農村6萬元建一層小別墅圖,你敢相信嗎
閱讀次數:567686次
農村5萬塊就能自建房,6套普通房子設計圖分享,你沒看錯!
閱讀次數:419410次
8套農村漂亮三間平房圖片,非常適合在農村修建!
閱讀次數:411197次
農村自建房化糞池怎么做?附方案及施工過程
閱讀次數:391783次
農村一層三間平房設計圖,告別土氣養老房,讓人忍不住點贊
閱讀次數:350581次
新農村二層樓房圖片造價12萬,挑一套回家建房吧!
閱讀次數:349126次
