
|
好看的套房千篇一律,有趣的別墅萬里挑一。大概擁有一套別墅,是所有人的夢想吧,要是別墅能自帶一個庭院,那更是讓人趨之若鶩了。 時至今日,如出一轍的高層套房,已經無法滿足國人日益趨于高級的審美情調了。在家里的宅基地里,自建一套別墅,成為了越來越多人的選擇,那么自建一套別墅需要花費多少錢呢?
小編告訴您,這套位于湖北黃岡的新中式宅院別墅,宅基地面積146㎡,建筑面積146㎡,建造預算上以磚混結構,不包含室內裝修,整套別墅自建下來,只需要23萬,不少網友不由感嘆,這要是有了宅基地,未來人手一套別墅,沒問題!
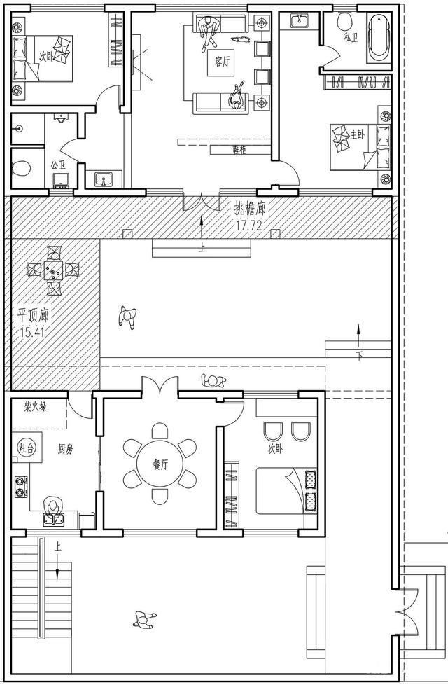
△自建別墅 總平面示意圖 本案自建宅院別墅,基底情況較為復雜,西南兩側相鄰鄰居住宅,北側是窄巷,而東側亦有鄰居住宅和道路。這對自建別墅,造成了很大的困擾,最終根據業主喜好以及造型布局設計后,本案設計確定為東西朝向的新中式一層宅院別墅。
△自建別墅 平面布局設計圖 本案項目為宅院式的別墅,共設置了南北兩棟建筑。其中北側主要平面布局功能為:日常居住,南側次房則作為待客和餐廚空間使用。 北側住房通過客廳劃分了東西布局,并采用了三開間的形式,東西兩側分別布置了兩間臥室以及一間公衛。南側則布置了客房和廚房餐廳,并且南側次房屋頂設置了室外露臺,可以通過庭院里的樓梯進入。
△鳥瞰圖
△自建別墅 鳥瞰圖 本案宅院別墅設計,整體上采用新中式風格,整體立面設計上,以白墻灰瓦的格調,來弘揚中式建筑的經典風韻,營造出古色生香的別墅風格。
△自建別墅 鳥瞰圖
△自建別墅 鳥瞰圖 宅院整體設計造型,和平面布局相互呼應。考慮到業主需要在各樓層設置一個儲物間。所以設計通過平屋頂設計,設置了一處露臺,提升了宅院別墅的豐富功能性,營造出古樸靜謐的居住體驗。
△自建別墅 庭院效果圖
△自建別墅 庭院效果圖 考慮到業主家里的老人使用,庭院之中的樓梯高度控制在160一下,并且以兩段式樓梯設計,方便老人父母上下活動,細致入微處,亦做到了面面俱到。
△自建別墅 東立面圖
△自建別墅 西立面圖
△自建別墅 南立面圖
△自建別墅 北立面圖 圖紙之家-專注農村別墅/自建房設計18年,集合國內200余位經驗豐富的設計師,被評為口碑最好的農村建筑設計公司! |

普通農村二層房子設計圖 ,復式結構,帶車庫,占地160平米左右
占地:160平方米
農村三層樓房設計圖及圖片,客廳挑空,優化室內采光
占地:140平方米
帶地下室三層復式別墅設計方案,全套設計圖+效果圖
占地:168平方米
農村一層平房別墅設計圖,18米乘9米,實實在在的好戶型
占地:162平方米
農村一層平房別墅設計圖紙,130平米左右,主體十幾萬
占地:130平方米左右
農村三層帶地下室住宅設計圖及圖片,房內設計了兩個套間
占地:210平方米
高端大氣的三層新中式合院別墅設計圖紙及外觀效果圖
占地:203.4平方米
農村五開間大平層設計圖,主體15萬就能建。
占地:182.43平方米
二開間小戶型設計三層農村自建房方案,經濟型適合小宅基地建房
占地:107.02平方米
二層半新中式別墅設計圖,農村自建24萬,帶庭院規劃設計
占地:140.68平方米
“L”字形二層別墅設計圖,獨立餐廚加連體露臺,太美了
占地:多戶型可選
帶車庫二層165平別墅房屋設計圖,含效果圖
占地:165平方米
自建一層三合院別墅圖,雅致鄉村居造價經濟,南北通透更宜居!
占地:176.36平方米
精致典雅的90平和100平方米二層樓房圖紙,藏不住的經典
占地:多種戶型
好評不斷二層簡歐房屋設計圖,占地150平,農村建房就選它
占地:150平方米左右
三層帶車庫樓中樓建房別墅圖紙,占地130平米左右,戶型室內布局
占地:130平方米
新農村帶陽臺三層樓房圖紙,占地180平米左右,豪華大氣
占地:180平方米
帶框架層的四層別墅設計圖,框架層功能布局很多,很實用
占地:169.09平方米
七字型一層平房別墅設計圖紙,15X16米
占地:177.9平方米
120平方米新農村四層別墅設計圖紙12X10米50萬以內
占地:120平方米
推薦:10套新農村自建房設計圖,2026年最新設計
閱讀次數:4825737次
100套鄉村別墅圖片大全,2026年最新設計
閱讀次數:2492203次
6款農村蓋一層平房的設計圖,10萬元就能建起來
閱讀次數:1852637次
這11個一層農村自建房別墅火爆了朋友圈!我最喜歡戶型十!你呢
閱讀次數:750268次
農村6萬元建一層小別墅圖,你敢相信嗎
閱讀次數:567686次
農村5萬塊就能自建房,6套普通房子設計圖分享,你沒看錯!
閱讀次數:419410次
8套農村漂亮三間平房圖片,非常適合在農村修建!
閱讀次數:411197次
農村自建房化糞池怎么做?附方案及施工過程
閱讀次數:391783次
農村一層三間平房設計圖,告別土氣養老房,讓人忍不住點贊
閱讀次數:350581次
新農村二層樓房圖片造價12萬,挑一套回家建房吧!
閱讀次數:349126次
