
|
什么樣的設計才是大家都喜歡的? 這個問題我們思索依舊,每個人喜好不同,但是在農村,帶小院的房子一定是大家喜歡的。不過今天介紹的4套別墅可就挺難挑了。 前兩套有人說太傳統,后兩套又說設計太超前…… 咋就這么難選?不信一起來看看。 占地15X12 新中式風格磚混建筑
尺 寸:面寬15.6米 進深12.5米 建筑面積:303㎡ 土建造價:50萬元
平面采用L形布局,入戶門正對面積開闊的客廳,讓空間視覺上更加大氣。樓梯間上方天窗為室內帶來更多采光,配合景觀形成極好的貫通空間。
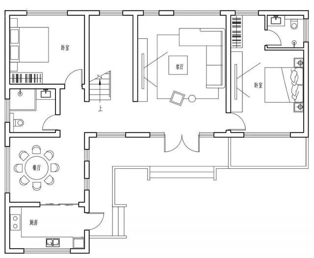
一層西側布置為餐廳、廚房、客房,廚房開設側門連接庭院;東側主臥帶有陽光房和獨立衛生間,相對齊全的配置讓日常生活起居更加方便。
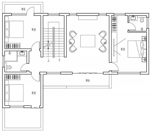
二層與一層布局基本一致,餐廳和廚房位置改為了臥室,西側兩間臥室的過道空間利用起來作為衣帽間使用。整個平面流線清晰,功能分區較為明確。
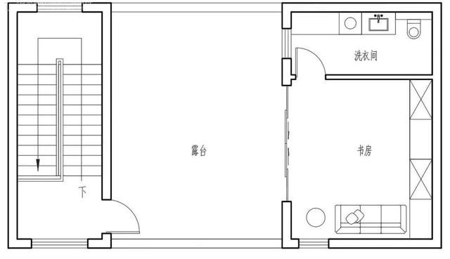
三層部分設計了書房和洗衣房套間,鄰靠大面積露臺,大大增加了建筑的休閑活動空間。通過樓梯間直接上至頂樓的設計也十分便于日常的使用。 占地14X14 歐式風格磚混結構建筑
尺 寸:面寬13.7米 進深14.5米 建筑面積:330.0㎡ 土建造價:50萬元
一層客廳和餐廳連通,大氣的入戶空間使得視野十分開闊。西南側和東南側布置有兩間臥室,西北角棋牌室作為節假日接待親朋使用十分實用。 客廳采用挑空設計,室內大氣的風格與建筑風格保持一致。
二層共有四間臥室,西南角為主臥,帶有獨立衛生間。家庭廳空間較大,作為交通紐帶將四間臥室連成一個整體。 建筑整體配色上比較濃重,以紅色面磚打造立面,配合棕色屋頂形成建筑的厚重感。大量面磚將建筑質感提升,配合厚重的主體,渲染出大氣豪華感。 占地6X14 現代風格建筑
尺 寸:面寬6.0米 進深14.0米 建筑面積:355.0㎡ 土建造價:53萬元
建筑占地面積有限,因此平面規劃為四層以此滿足業主的使用需求。一層 作為店面層高設計為5.4米,較高的高度讓店面空間更加大氣。
建筑整體為現代風格,考慮到建筑一層將作為店面使用,立面采用簡約處 理手法,以白色渲染干凈,以利落線條展現時尚。后續室內可選擇北歐風 格,與建筑外觀十分匹配。
建筑輪廓分明,墻面沒有裝飾,以空間變化體現層次,從而達到以少勝多 的視覺效果。南部陽臺位置設計有花架,幾盆鮮花、幾抹綠植就能點亮整 個立面。 占地15X14 現代風格建筑
尺 寸:面寬15.2米 進深14.4米 建筑面積:308㎡ 土建造價:55萬元
設計前期和業主溝通時,業主表示他理想中的住宅要足夠獨特。業主一家也能接受前衛的設計風格。在嘗試過多種可能性后,平面設計主要采用流線型的外立面分隔庭院和室內空間。
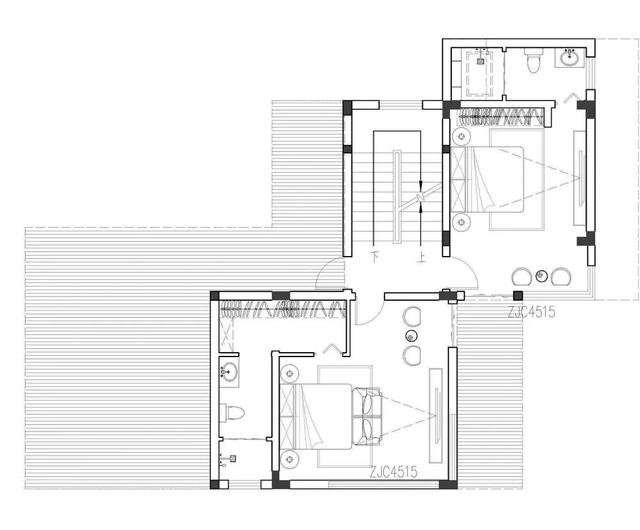
一層東側偏南的承重柱,在空間上能夠分隔開起居室和餐廳。 主臥和次臥通過不同樓梯與一層相連。使用空間的分離將個人使用舒適度提升。 二層的室外陽臺不僅僅是視覺上的聯系,也提供了空間使用上的一個延續路徑,讓業主一家能夠不受阻礙地從一個空間走向另一個空間。
圖紙之家-專注農村別墅/自建房設計18年,集合國內200余位經驗豐富的設計師,被評為口碑最好的農村建筑設計公司! |

新農村帶陽臺三層樓房圖紙,占地180平米左右,豪華大氣
占地:180平方米
新農村三層小別墅設計圖紙,占地160平左右,好看不貴
占地:160平方米
巴洛克風格別墅設計圖紙及效果圖,農村建一棟想低調都難
占地:256平方米左右
二層自建房屋設計圖,帶小院,帶地下室,外觀現代、時尚,內部
占地:200平米
時尚大方的農村二層自建房屋設計圖紙,占地120平米左右
占地:120平米
180平方農村二層別墅施工設計圖紙,15.8x11.7米
占地:180平方米
120平米三層小別墅設計方案和效果圖,端莊大氣很經典
占地:120平方米
性價比超高一層農村自建別墅設計圖,戶型耐看不用爬樓
占地:158.6平方米
農村小戶型三層復式樓房設計圖,100平左右
占地:100平方米
經典小戶型二層新農村房屋設計圖紙,客廳中空,造價20萬
占地:94平方米
3層20萬農村自建房設計圖,占地110平米
占地:110平方米
農村10萬元一層小別墅設計圖,農村一層自建房屋設計圖
占地:多種戶型
四層別墅豪宅外觀效果圖及全套施工圖,高端歐式風格
占地:176.97平方米
面寬13米帶堂屋三層農村別墅圖,新中式大氣風格
占地:151.58平方米
150平米簡單大方的三層農村自建房設計圖,坡層頂,色彩鮮明,布
占地:150平方米
復式200平米三層樓房設計圖紙,大露臺還有健身房和書房
占地:200平方米
農村三層帶露臺、帶車庫房屋設計圖,含外觀圖片
占地:155平方米
經典中式三合院設計,一層空間實用大氣,輕松實現理想家園!
占地:160.53平方米
平頂三層別墅設計方案,簡潔舒適大氣通透,12乘9米,打造理想住
占地:98.21平方米
110平方米新農村三層房屋設計圖紙,含效果圖,帶車庫
占地:113平方米
推薦:10套新農村自建房設計圖,2026年最新設計
閱讀次數:4825737次
100套鄉村別墅圖片大全,2026年最新設計
閱讀次數:2492203次
6款農村蓋一層平房的設計圖,10萬元就能建起來
閱讀次數:1852637次
這11個一層農村自建房別墅火爆了朋友圈!我最喜歡戶型十!你呢
閱讀次數:750268次
農村6萬元建一層小別墅圖,你敢相信嗎
閱讀次數:567686次
農村5萬塊就能自建房,6套普通房子設計圖分享,你沒看錯!
閱讀次數:419410次
8套農村漂亮三間平房圖片,非常適合在農村修建!
閱讀次數:411197次
農村自建房化糞池怎么做?附方案及施工過程
閱讀次數:391783次
農村一層三間平房設計圖,告別土氣養老房,讓人忍不住點贊
閱讀次數:350581次
新農村二層樓房圖片造價12萬,挑一套回家建房吧!
閱讀次數:349126次
