
|
看透了大城市的喧鬧,終究要回到農村養老。回到鄉下蓋一棟一層的別墅房安享晚年是一件多么的美好幸福的事情。但是一層別墅看似簡單,但是從設計到建造一棟美觀大方的一層別墅并不是一件簡單的事情,專業性的建筑設計圖紙肯定免不了,下邊小編帶來了幾款簡單大氣的普通一層別墅圖紙,一起來看一看吧! 戶型一:鄉下自建平房設計圖紙房屋基本信息說明:15.2m*9.5m,占地150平方米左右,造價15萬左右,磚混結構;
布局說明:客廳、餐廳、廚房、主臥(帶衛生間)、臥室×2、衛生間、書房; 戶型二:100平左右農村一層平房小洋樓設計圖紙房屋基本信息說明:14m*8m,占地面積98平方米左右,造價10萬左右,磚混結構;
布局說明:客廳、廚房、餐廳、臥室(帶衛生間)×2; 戶型三:農村一層平房設計效果圖,美式和田園風格相結合房屋基本信息說明:19.80m*13.80m,占地面積270平方米左右,造價21萬左右,磚混結構;
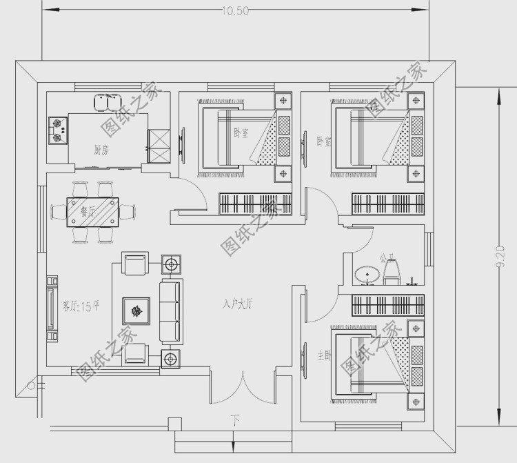
布局說明:客廳、餐廳、廚房、書房、衛生間、臥室(帶衛生間)、臥室(帶衣帽間)、臥室×2、活動房、儲藏間、車庫; 戶型四:90平米小戶型三間平房設計圖,裝飾簡潔,美觀大方房屋基本信息說明:10.5m*9.2m,占地面積91.036平方米,造價8萬左右,磚混結構;
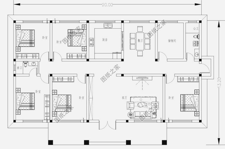
布局說明:入戶大廳,客廳,臥室×3,廚房,餐廳; 戶型五:一層歐式平房小洋樓建筑設計圖紙,歐式風格,簡約方正房屋基本信息說明:20m*13.2m,占地面積216平方米,造價17萬左右,磚混結構;
布局說明:客廳、儲物間、廚房、餐廳、臥室(衛生間)、臥室×4、衛生間; 戶型六:農村房子設計圖,外觀現代漂亮,戶型房間多房屋基本信息說明:20.0m*10.0米,占地面積200平方米,造價12萬左右,磚混結構;
布局說明:正堂、客廳、餐廳、廚房、臥室×4(其中2個帶衛生間)、棋牌室、衣帽間、鍋爐房(可做儲藏間)、衛生間; 戶型七:農村4間平房設計圖,外觀設計時尚大方房屋基本信息說明:14.90m*10.10m,占地面積150平方米左右,造價14萬左右,磚混結構;
布局說明:玄關、客廳、餐廳、廚房、衛生間、主臥(帶衛生間)、臥室×3(其中一個臥室可以當廚房); 戶型八:帶閣樓鄉村別墅設計圖,外觀中式兼現代風格房屋基本信息說明:16.0m*12.0m,占地面積190平方米,造價20萬以內,磚混結構;
布局說明 一層:餐廳、廚房、臥室×4(2個臥室帶衛生間)、衛生間、儲藏間; 閣樓:臥室×4、衛生間; 戶型九:一層自建房設計圖,外觀大氣簡約房屋基本信息說明:13.24m*12.24m,占地面積160平方米左右,造價12萬以內,磚混結構;
布局說明:客廳、餐廳、廚房、主臥(帶衛生間)、臥室×3、衛生間; 戶型十:一層鄉村房屋設計圖紙房屋基本信息說明:11.5m*10.8m,占地面積120平方米,造價15萬以內,磚混結構;
布局說明:餐廳,廚房,主臥室,儲藏間,2間臥室,客廳,玄關,衛生間; 看了這么多圖紙,相信你的心里已經有了自己中意的了吧,趕緊給自己老家的房子安排起來吧!
圖紙之家-專注農村別墅/自建房設計18年,集合國內200余位經驗豐富的設計師,被評為口碑最好的農村建筑設計公司! |

平屋頂四間一層農村自建房設計圖紙,經濟時尚
占地:144平方米
一層農村自建房設計圖,造型美觀大氣,占地150平
占地:153.415平方米
高端大氣的農村四層樓房別墅設計圖,戶型真不錯,占地130多平
占地:135.31平方米
新款農村四層復式別墅設計圖紙及效果圖,外立面清新別致
占地:207平方米
帶陽光房的二層簡歐別墅圖紙,戶型經典實用
占地:147.2平方米
帶車庫的新中式風格一層別墅設計圖,鳥語花香回家建房
占地:184平方米
簡約大氣農村自建三層別墅設計圖,布局合理,很適合農村人自建
占地:139.471平方米
農村實用三層樓房外觀圖片+全套施工設計圖
占地:106平方米
農村17萬元一層自建別墅設計圖,外觀簡潔,戶型方正
占地:163平方米
130平新農村二層住宅設計圖,外觀精致、漂亮
占地:130平方米
2026帶車庫三層雙拼別墅房屋設計圖,配色淡雅低調
占地:224平方米
110平方米農村兩層別墅設計效果圖及圖紙,12X12米
占地:110平方米
大戶型三層別墅設計圖,高貴大氣,占地面積將近300平
占地:273.33平方米
四層農村別墅設計圖,一二層都有廚房和餐廳的戶型方案
占地:128.52平方米
帶院子的一層農村別墅設計圖,造價不高,養老房首選!
占地:144.819平方米
一層中式四合院別墅設計方案圖,含外觀效果圖
占地:360平方米含院子
大開間小進深的一層別墅設計圖,進深僅8.7米,獨立餐廚照樣美觀
占地:130.32平方米
新中式三層別墅設計圖紙(含效果圖),110平農村自建房施工圖推
占地:110平方米
三層現代平頂別墅設計圖,簡約時尚百看不厭,外觀令人驚艷!
占地:125.142平方米
兄弟雙拼四間三層別墅設計圖,農村自建推薦戶型方案
占地:260平方米
推薦:10套新農村自建房設計圖,2026年最新設計
閱讀次數:4825737次
100套鄉村別墅圖片大全,2026年最新設計
閱讀次數:2492203次
6款農村蓋一層平房的設計圖,10萬元就能建起來
閱讀次數:1852637次
這11個一層農村自建房別墅火爆了朋友圈!我最喜歡戶型十!你呢
閱讀次數:750268次
農村6萬元建一層小別墅圖,你敢相信嗎
閱讀次數:567686次
農村5萬塊就能自建房,6套普通房子設計圖分享,你沒看錯!
閱讀次數:419410次
8套農村漂亮三間平房圖片,非常適合在農村修建!
閱讀次數:411197次
農村自建房化糞池怎么做?附方案及施工過程
閱讀次數:391783次
農村一層三間平房設計圖,告別土氣養老房,讓人忍不住點贊
閱讀次數:350581次
新農村二層樓房圖片造價12萬,挑一套回家建房吧!
閱讀次數:349126次
