圖紙介紹:本戶型為農村實用三層樓房設計圖,含外觀效果圖,戶型功能分區明確,外觀錯落有致,二、三層都有露臺。
占地面積:8.9m*12.0m,106平方米左右;
建筑層高:三層;
建筑高度:12.00米(含屋頂);
設計功能:
一層:客廳、餐廳、廚房、儲藏間、衛生間;
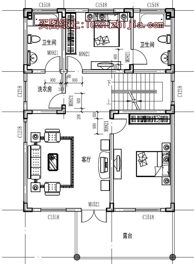
二層:客廳、主臥(帶衛生間)、臥室、衛生間、露臺;
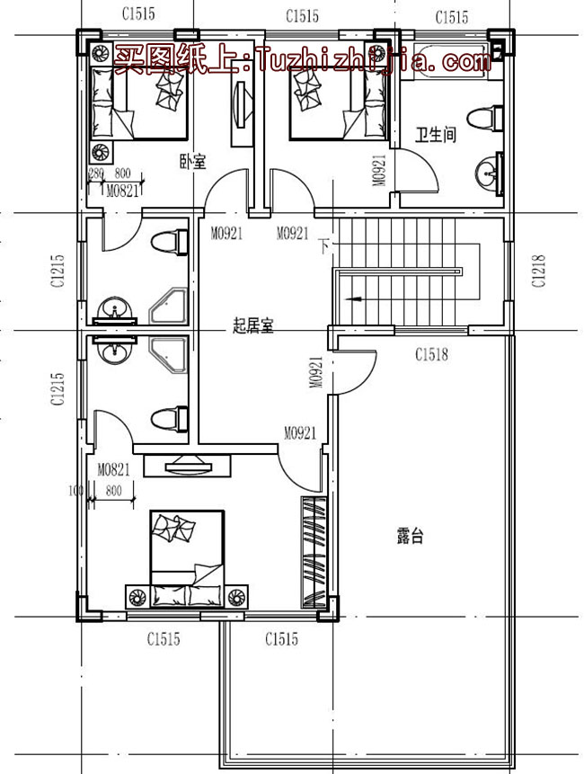
三層:起居室、臥室x3(帶衛生間)、大露臺;
圖紙目錄:
建筑圖:圖紙目錄、建筑設計說明、平面圖x4、立面圖x4、剖面圖、節點大樣圖、門窗表等;
結構圖:圖紙目錄、結構設計說明、基礎配筋圖、基礎大樣圖、梁結構配筋圖、板結構配筋圖、屋面結構配筋圖、樓梯結構配筋圖等;
給排水圖:圖紙目錄、給排水設計說明、給排水平面圖、衛生間排水大樣圖、給水系統圖、排水系統圖;
電氣圖:圖紙目錄、電氣設計說明、強電系統圖、弱電系統圖、照明布置圖、插座布置圖、弱電布置圖、基礎接地布置圖、屋頂防雷布置圖。
本套圖紙為A3圖紙+效果圖,拿到即可施工!

































































































