
|
蓋新房真的是一項非常消耗人力物力財力的一項大工程,但是如果你的房子建的好、裝修的好,那么入住之后,就會覺得一切的付出都是值得的。但是如果你選錯了設計方案、挑選的設計圖不適合自己家的需求,那么就算這個房屋建成了,也會住得不舒服。選擇設計圖紙是建房的第一步,也是最重要的一步,一定要格外謹慎。 下邊小編給大家推薦這5套圖紙可謂是時尚最全的農村一層自建房設計圖大全,大家可以挑選一下,對比哪套最適合。 第一款:鄉下自建房一層設計圖紙,一層住宅戶型圖圖紙介紹:這款戶型藍色的房頂,素色的外墻面,這一切早已完美無缺的顯現出了這兒無與倫比的美麗。有了它,你就是這兒最美的! 占地面積:16.2m*12.2m,200平方米左右; 建筑層高:一層; 建筑高度:5.6米(含屋頂); 設計功能:客廳、餐廳、廚房、臥室(帶衛生間)、臥室×2、書房、衛生間;
第二款:農村別墅設計圖紙,三室兩廳還帶一個書房圖紙介紹:農村一層別墅設計圖紙,3室2廳帶小書房,工程預算20萬左右。別拿一層不當別墅,一層的房屋建造起來節省成本又美觀大方,簡單又好看,還別有一番風味,絲毫不比別墅差! 占地面積:18.0m*12.0m,200平方米左右; 建筑層高:一層; 建筑高度:6.14米(含屋頂); 設計功能: 一層戶型:玄關、客廳、餐廳、廚房、、主臥(帶衛生間,小書房)、臥室×2、衛生間;
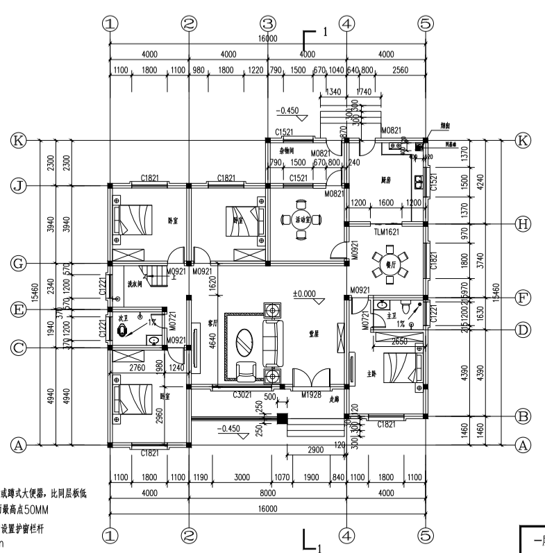
第三款:農村一層自建房戶型圖,養老平房全套圖紙圖紙介紹:農村一層自建養老小平房戶型平面圖及整套圖紙,占地總面積200多平,相對于一些退休的老年人而言,在城里工作了一輩子,希望建個農村房子,既能夠 寂靜當中安度晚年,還能從農村中尋求快樂。 占地總面積:16.0m*15.4m,207平方米左右; 建筑層高:一層; 建筑高度:6.2米(含屋頂); 設計功能:客廳、餐廳、廚房、活動室、主臥(衛生間)、臥室×3、衛生間、洗衣間、雜物間;
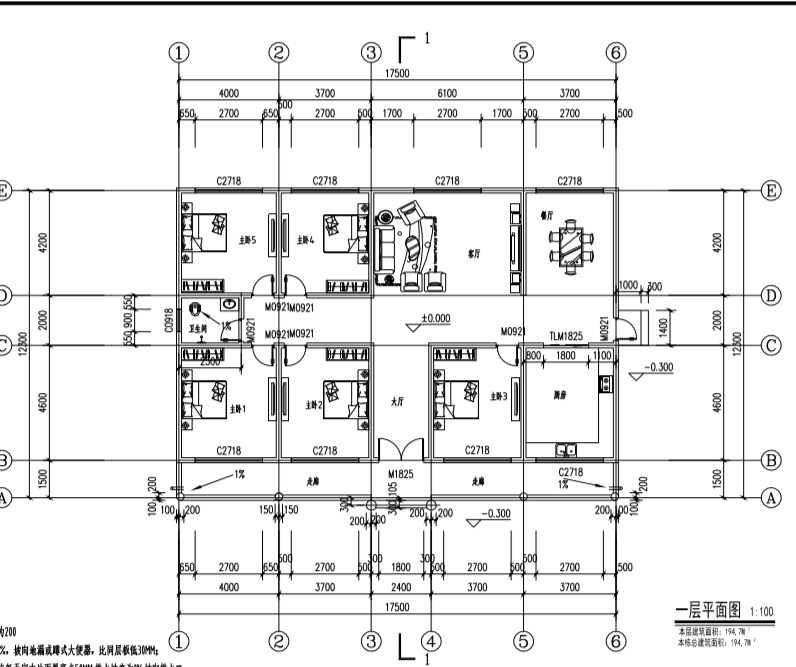
第四款:農村一層平房自建房設計圖,占地面積200平米左右圖紙介紹:一層平房新農村農村自建別墅,工程預算20萬之內,占地面積200平米左右,獨家設計方案,樣式新奇,穩重大氣,與眾不同。在農村建套一層的小平房,不但住著舒適,并且工程預算經濟實惠 占地面積:17.5m*12.3m,194平方米左右; 建筑層高:一層; 建筑高度:6.4米(含屋頂); 設計方案: 一層戶型:過廳、客廳、餐廳、廚房、臥室×5、衛生間;
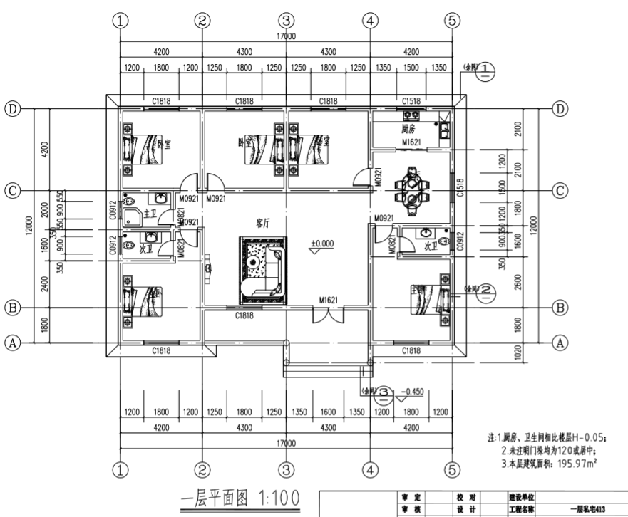
第五款:農村自建房一層圖紙推薦圖紙介紹:本戶型結構為農村一層建房設計圖,強烈推薦農村自建一層房屋的客戶挑選,此方案外觀別具一格,戶型結構實用性強,村里建一棟這樣的房屋既能達到面子,又能達到實用性強的居住需求。 占地面積:17.00m*12.00m,200平方米左右; 建筑層高:一層; 建筑高度:6.40米(含屋頂); 設計功能: 一層:客廳、廚房、餐廳、主臥(帶衛生間)、主臥(帶衛生間)、臥室x3(其中一個可以做書房)
這五款設計圖紙可謂是費盡心思挑選出來的農村一層圖紙,不知道大家有沒有喜歡的款式呢?
圖紙之家-專注農村別墅/自建房設計18年,集合國內200余位經驗豐富的設計師,被評為口碑最好的農村建筑設計公司! |

私人自建三層別墅設計圖紙帶效果圖,歐式風格、外觀大氣
占地:209.44平方米
面寬13米帶堂屋三層農村別墅圖,新中式大氣風格
占地:151.58平方米
農村一層帶小院房屋設計圖,帶院子一層自建房別墅戶型圖
占地:161.16平方米
農村三間兩層樓房設計圖,帶車庫,戶型簡單實用
占地:140平方米
農村四層樓房設計圖及外觀效果圖,造價60萬左右
占地:163.84平方米
90平米三層農村房子設計圖,簡單大氣實用
占地:94.28平方米
140平方米新農村二層自建平屋頂房屋設計圖紙帶外觀效果圖
占地:140平方米左右
一層帶架空層的農村別墅設計圖,防潮、停車、放農具全都滿足
占地:163.78平方米
帶車庫二層別墅設計圖及效果圖,帶車庫的農村二層樓房推薦
占地:123平方米
最新高端四層別墅外觀效果圖及全套設計圖,真土豪就這樣建
占地:174.08平方米
鄉下建房一層戶型圖,一層住宅設計圖紙,誰說一層平房不能叫別
占地:200平方米
最好看大氣的豪華三層樓房設計圖,客廳中空,旋轉樓梯
占地:340平方米
最實用一層小別墅設計方案,造價不高顏值高,家家都喜歡!
占地:143.48平方米
14米×10米農村二層小別墅自建房設計圖,外觀設計時尚美觀
占地:125平方米
農村二層住宅別墅設計圖,貼心實用,12.8米乘14.5米
占地:156.16平方米
鄉村別墅現代風平屋頂四層自建房設計圖,簡約時尚
占地:144.7平方米
二層農村自建四合院設計圖,中式外觀古樸有質感200-300平方米
占地:270平方米左右
35萬左右的農村小別墅設計圖及效果圖,新中式風格
占地:137平方米
小戶型現代新農村三層房屋設計建筑圖及效果圖
占地:108平方米
帶陽光房的二層簡歐別墅圖紙,戶型經典實用
占地:147.2平方米
推薦:10套新農村自建房設計圖,2026年最新設計
閱讀次數:4825737次
100套鄉村別墅圖片大全,2026年最新設計
閱讀次數:2492203次
6款農村蓋一層平房的設計圖,10萬元就能建起來
閱讀次數:1852637次
這11個一層農村自建房別墅火爆了朋友圈!我最喜歡戶型十!你呢
閱讀次數:750268次
農村6萬元建一層小別墅圖,你敢相信嗎
閱讀次數:567686次
農村5萬塊就能自建房,6套普通房子設計圖分享,你沒看錯!
閱讀次數:419410次
8套農村漂亮三間平房圖片,非常適合在農村修建!
閱讀次數:411197次
農村自建房化糞池怎么做?附方案及施工過程
閱讀次數:391783次
農村一層三間平房設計圖,告別土氣養老房,讓人忍不住點贊
閱讀次數:350581次
新農村二層樓房圖片造價12萬,挑一套回家建房吧!
閱讀次數:349126次
