
|
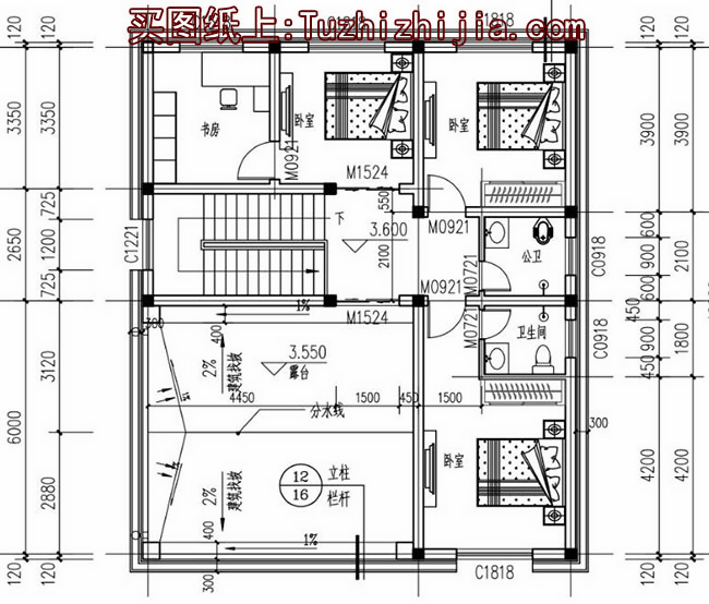
在城市居住時,房子總是潮濕陰暗,有個小陽臺都是不錯的了。現在要回家建房,就想擁有一棟帶大陽臺,窗戶多,采光好的二層樓,滿足在外打拼時的缺憾,辛苦了半輩子,也是要在以后的日子里過得舒適,不用擔心造價太高,今天小編就推薦5款造價20萬的二層帶大陽臺圖片,保證你見了喜歡。 第一款:新中式二層樓房設計圖,簡約漂亮開間:10.8m 進深:8.8m 占地面積:99平方米 建筑高度:9.2米(含屋頂) 設計功能: 一層戶型:廚房,餐廳,公衛,次臥,客廳,主臥,主衛 二層戶型:衣帽間,書房,主衛,主臥,起居室,陽臺
第二款:現代田園式二層別墅圖,溫馨舒服開間:13.0m 進深:10.1m 占地面積:120平方米左右 建筑高度:9.8米(含屋頂) 設計功能: 一層戶型:堂屋、客廳、餐廳、廚房、衛生間、老人房 二層戶型:家庭室、主臥(帶露臺)、臥室x2、書房、衛生間、大露臺
第三款:新中式二層別墅設計圖,端莊典雅開間:11.7m 進深:10.0m 占地面積:110平方米左右 建筑高度:9.27米(含屋頂) 設計功能: 一層戶型:堂屋、客廳、餐廳、廚房、衛生間、老人房、儲藏間 二層戶型:家庭廳、臥室x3、書房、衛生間、大露臺
第四款:現代二層別墅設計圖,戶型方正開間:11.3m 進深:10m 占地面積:110平方米左右 建筑高度:9.9米(含屋頂) 設計功能: 一層戶型:客廳、餐廳 、廚房、臥室、儲藏室、衛生間 二層戶型:家庭室、臥室x4、書房、衛生間、陽臺
第五款:簡歐式二層別墅效果圖,經濟實用占地面積:12.0m*10.0m,120平方米左右 建筑層高:二層 建筑高度:9.50米(含屋頂) 設計功能: 一層別墅戶型:堂房、客廳、臥室x2、廚房、餐廳、衛生間 二層別墅戶型:小客廳、臥室x3、儲藏間(更衣室)、衛生間、露臺
以上就是小編推薦的5款農村20萬就能建的二樓帶大陽臺設計圖和戶型圖,有想要更多圖紙的可以搜索圖紙之家進行查看。 圖紙之家-專注農村別墅/自建房設計18年,集合國內200余位經驗豐富的設計師,被評為口碑最好的農村建筑設計公司! |

面寬13米簡簡單單一層農村自建別墅設計圖,方正大氣經濟宜居
占地:126.1平方米
四層自建別墅設計圖,有車庫帶露臺,時尚大氣給你一個五星級的
占地:152.51平方米
大戶型高端三層別墅設計圖紙,外觀效果圖+CAD建筑圖
占地:227平方米
新農村三層豪華歐式別墅,復式高端自建房設計圖紙及效果圖
占地:多種戶型
二層小別墅外觀圖片,別墅圖紙,外觀時尚,布局簡單實用,挑空
占地:230平方米
超實用超現代兩層自建小樓圖,純粹極簡風格
占地:184平方米左右
左右對稱的歐式高端三層別墅設計圖,外觀氣派、豪華
占地:200平方米
12米寬三間二層農村自建房設計圖,左右對稱布局緊湊看著就舒服
占地:144.94平方米
簡單實用二層自建房子設計圖,主體造價僅17萬
占地:106.387平方米
新農村自建二層小樓圖,時尚大方,外型精美,室內布局也很贊
占地:137平方米
新農村帶陽臺三層樓房圖紙,占地180平米左右,豪華大氣
占地:180平方米
兄弟三層雙拼房屋設計圖,帶效果圖,戶型好
占地:256平方米
新農村四層房屋設計圖紙,高端大氣,占地150平方米
占地:150平方米
農村一層中式三合院戶型設計圖,造型古香古色
占地:215平方米左右
農村25萬元二層小樓圖,經典大氣建成20年不過時
占地:150平方米
漂亮實用三層自建別墅設計圖紙,超高的性價比
占地:160平方米
8萬元二層農村房子圖片及設計圖,簡易二層小樓,占地50平米
占地:50平方米
帶車庫鄉下雙拼別墅設計圖,三層造型漂亮大全
占地:256平方米
二層雙拼別墅外觀效果圖及施工圖,帶露臺,14乘12米
占地:168平方米
230平方農村雙拼別墅設計圖,26x11米自建房屋戶型
占地:230平方米
推薦:10套新農村自建房設計圖,2026年最新設計
閱讀次數:4825737次
100套鄉村別墅圖片大全,2026年最新設計
閱讀次數:2492203次
6款農村蓋一層平房的設計圖,10萬元就能建起來
閱讀次數:1852637次
這11個一層農村自建房別墅火爆了朋友圈!我最喜歡戶型十!你呢
閱讀次數:750268次
農村6萬元建一層小別墅圖,你敢相信嗎
閱讀次數:567686次
農村5萬塊就能自建房,6套普通房子設計圖分享,你沒看錯!
閱讀次數:419410次
8套農村漂亮三間平房圖片,非常適合在農村修建!
閱讀次數:411197次
農村自建房化糞池怎么做?附方案及施工過程
閱讀次數:391783次
農村一層三間平房設計圖,告別土氣養老房,讓人忍不住點贊
閱讀次數:350581次
新農村二層樓房圖片造價12萬,挑一套回家建房吧!
閱讀次數:349126次
