
|
現在農村建房不僅講究布局合理,造型也很受重視,外觀是大家對房子的第一印象,房子設計得大氣好看,主人家也更有面子。所以現在建房人對自家房子的外觀設計要求頗高。今天小編就推薦三款農村三間三層自建房設計圖以及戶型圖,來看看現在農村建房到底到了一個什么程度吧! 第一款: 現代歐式三層自建房效果圖和戶型圖 占地面積:9.8m*12.8m,一層占地124平方米左右 建筑高度:13.6米(含屋頂) 設計功能: 一 層:客廳、廚房、餐廳、老人房(帶衣帽間,衛生間)、棋牌室、衛生間 二 層:客廳上空、起居室、臥室(帶衣帽間、衛生間)、臥室、書房、衛生間、陽臺 三 層:健身區、主臥(帶衣帽間,書房,衛生間)、臥室(帶衣帽間、陽臺)、臥室(帶陽臺)、衛生間、大露臺、陽臺 這款好看的農村三層樓房設計圖,客廳中空,大的眺空玻璃窗,精美的羅馬柱,花瓶護欄,小雕花,處處彰顯精致與大氣。
占地面積:11.02m*9.67m,100平方米左右 建筑高度:8.9米(含屋頂); 設計功能: 一層戶型:玄關、客廳、花池、餐廳、廚房、臥室、衛生間 二層戶型:起居室、書房、臥室x2、衛生間、陽臺 三層戶型:娛樂廳、茶座、露臺 這款現代風別墅,時尚前衛,簡約大氣,住著及其舒適,現代風別墅,前衛拉風,集時尚潮流于一體,外型美觀,關鍵是室內布局還很實用。深受廣大年輕朋友的喜愛,采用平屋頂設計,外型真是極好看,占地不大,造價經濟,建在村里獨一棟,是難得的好戶型。
第三款:經典歐式農村三層別墅設計圖以及戶型圖 占地面積:11.2m*11.3m,119.23平方米左右 建筑高度:13.342米(含屋頂) 設計功能: 一層戶型:玄關、神位、客廳、餐廳、廚房、茶室、父母房(帶衛生間)、衛生間 二層戶型:客廳上空、客廳、臥室x2、臥室(帶衛生間)、臥室x2、衛生間、陽臺 三層戶型:家庭影音、棋牌室、臥室(帶衣帽間、衛生間)、露臺
這款圖紙經典的歐式風格,藍色坡屋頂,采用尖頂設計,線條明朗。旋轉樓梯復式戶型方案圖,造型美感,通透舒服且安逸。
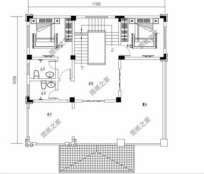
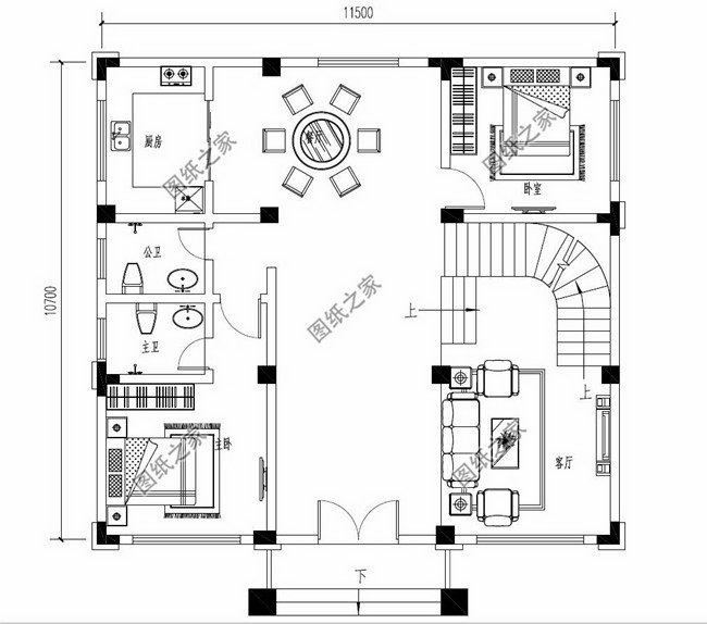
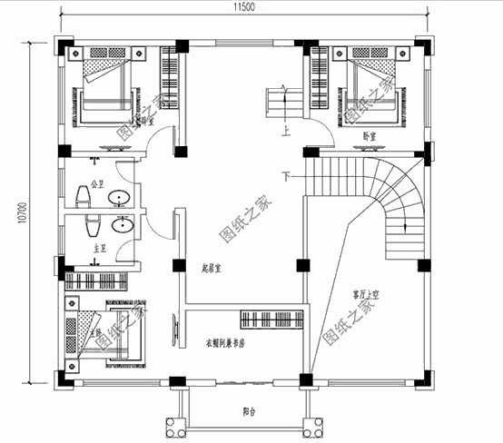
第四款:經典歐式三層樓自建房設計圖
占地面積:11.5m*10.7m,127.528平方米左右 建筑高度:12.543米(含屋頂) 設計功能: 一層戶型:客廳、餐廳、廚房、臥室(帶衛生間)、臥室、衛生間 二層戶型:客廳上空、起居室、臥室(帶衛生間、衣帽間兼書房)、臥室x2、衛生間 三層戶型:茶室、臥室(帶衛生間)、臥室、衛生間、露臺、亭子 這款設計圖是采用旋轉樓梯設計棕色文化石和灰色噴漆的巧妙搭配,溫馨有活力,拱形落地窗寬敞又通透,雙羅馬柱加精致雕花,盡顯大氣之美。
以上就是小編推薦的四款農村三間房就能蓋的三層別墅自建房圖紙,有沒有你喜好的,關注我帶你看不一樣的圖紙。
圖紙之家-專注農村別墅/自建房設計18年,集合國內200余位經驗豐富的設計師,被評為口碑最好的農村建筑設計公司! |

農村二層帶車庫樓房設計圖,帶外觀效果圖片
占地:125平方米
一層農房別墅設計圖紙,140平方米,面寬15米
占地:140平方米
新中式風格二層住宅設計圖,農村自建房不土氣
占地:144.5平方米
簡簡單單一層農村自建別墅方案,布局緊湊又不擁擠
占地:133.55平方米
偏中式徽派的二層房屋農村別墅設計圖,馬頭墻小青瓦
占地:123.36平方米
南方新農村三層樓房設計圖紙,帶房屋效果圖
占地:110平方米
豪華大氣農村三層別墅圖紙,帶車庫、露臺,占地200平方米左右
占地:207平方米
中式二層對稱別墅設計圖,帶地下室設計,整體造價經濟
占地:171.6平方米
11X10米三層別墅農村自建房設計圖,復式挑空客廳
占地:119.08平方米
一二層都帶廚房餐廳的獨棟二層別墅設計圖,帶雙廚房
占地:143.68平方米
農村一層小別墅設計圖,經濟大氣,16米乘9米
占地:124.12平方米
160平方米二層自建別墅設計施工建筑圖紙及效果圖,15x11米
占地:163平方米
歐式獨棟二層小別墅設計圖,客廳中空,占地126平米
占地:120平方米
2026新款新式農村50萬三層別墅圖片,帶地下室,美觀大氣
占地:130平方米左右
建完被夸半年!現代風三層農村別墅,顏值抗打還百看不厭
占地:136.01平方米
歐式三層樓房設計圖,客廳中空,旋轉樓梯,帶土灶房
占地:206平方米
最漂亮的農村二層小樓設計圖紙,簡約又大氣時尚
占地:120平方米
新中式農村兄弟合建三層雙拼別墅全套設計圖紙,3款戶型方案
占地:多種戶型
小戶型三層別墅房屋設計圖紙,占地80多平米,麻雀雖小五臟俱全
占地:80平方米
14米乘10米農村二層別墅新款,外觀對稱設計,經久耐看!
占地:140平方米
推薦:10套新農村自建房設計圖,2026年最新設計
閱讀次數:4825737次
100套鄉村別墅圖片大全,2026年最新設計
閱讀次數:2492203次
6款農村蓋一層平房的設計圖,10萬元就能建起來
閱讀次數:1852637次
這11個一層農村自建房別墅火爆了朋友圈!我最喜歡戶型十!你呢
閱讀次數:750268次
農村6萬元建一層小別墅圖,你敢相信嗎
閱讀次數:567686次
農村5萬塊就能自建房,6套普通房子設計圖分享,你沒看錯!
閱讀次數:419410次
8套農村漂亮三間平房圖片,非常適合在農村修建!
閱讀次數:411197次
農村自建房化糞池怎么做?附方案及施工過程
閱讀次數:391783次
農村一層三間平房設計圖,告別土氣養老房,讓人忍不住點贊
閱讀次數:350581次
新農村二層樓房圖片造價12萬,挑一套回家建房吧!
閱讀次數:349126次
