
別墅圖紙一:新中式帶露臺農村三層別墅,客廳中空
![]() 別墅實景圖
圖紙介紹:新中式帶露臺農村三層別墅,客廳中空外觀高低錯落有致,建筑色彩鮮艷豐富,富有層次感的坡屋頂,它象征著富足美好的鄉村田園生活。 占地面積:12.5m*11.0m,一層占地110平方米左右; 建筑層高:三層; 建筑高度:12.48米(含屋頂); 設計功能: 一 層:客廳、廚房、餐廳、臥室(帶衛生間)、洗衣間、衛生間; 二 層:客廳上空、家庭室、臥室(帶衣帽間、衛生間、露臺)、臥室(帶衛生間)、露臺; 三 層:臥室(帶衣帽間、衛生間)、臥室(帶衛生間、衣帽間、書房、露臺)、露臺; ![]() ![]() ![]() 別墅戶型圖
別墅圖紙二:農村三層樓房設計圖及效果圖,復式磚混結構![]() 別墅實景圖
圖紙介紹:本戶型為最新設計,外觀時尚、新穎,農村自建有面子,戶型合理、實用。 占地面積:12.00m*12.80m,一層建筑面積148平方米左右; 建筑層高:三層; 建筑高度:12.33米(含屋頂); 設計功能: 一層戶型設計:客廳、餐廳、廚房、衛生間、臥室(帶衛生間)、娛樂室 二層戶型設計:客廳、休閑區、主臥、臥室x2(可做書房)、衛生間、陽臺 三層戶型設計:客廳、主臥、臥室x2(可做書房)、衛生間、露臺 ![]() ![]() ![]() 別墅戶型圖
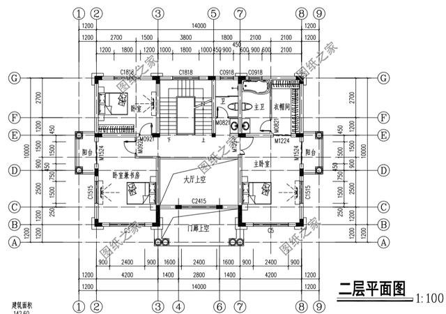
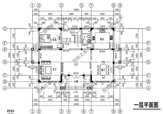
別墅圖紙三:簡歐風格別墅設計圖帶外觀效果圖,三層140平米戶型方案![]() 別墅實景圖
圖紙介紹:本方案為簡歐風格三層別墅設計方案,大廳中空,外墻配色風格偏歐式,給人高端、豪華,陽臺比較多。采光、通風都比較好,兩面都有陽臺。 占地面積:14.00m*10.00m,140平方米左右; 建筑層高:三層; 建筑高度:13.08米(含屋頂); 設計功能: 一層戶型設計:大廳、客廳、餐廳、廚房、衛生間、父母房(臥室) 二層戶型設計:主臥(衛生間+衣帽間)、臥室、書房、衛生間、陽臺x2 三層戶型設計:活動房、露臺、涼亭x2、健身房、書房、臥室x2、衛生間、陽臺x2 ![]() ![]() ![]() 別墅戶型圖
以上就是三層農村自建房實景圖平面圖,喜歡哪款,歡迎下方留言。
圖紙之家-專注農村別墅/自建房設計18年,集合國內200余位經驗豐富的設計師,被評為口碑最好的農村建筑設計公司! |

鄉村自建獨棟三層別墅樓房設計圖,預算30萬內
占地:120平方米
農村18萬元二層小樓圖,占地120平面,戶型緊湊合理
占地:120平方米
農村三層樓房圖造價26萬,客廳中空,占地90平米
占地:90平方米
最漂亮的農村二層小樓設計圖紙,簡約又大氣時尚
占地:120平方米
150平方米自建現代二層別墅施工設計圖帶外觀圖,15x10米
占地:多戶型可選
三層別墅40萬左右氣派的外觀效果圖,含全套施工設計圖
占地:161.46平方米
高端歐式四層別墅房屋施工圖紙及效果圖,圓弧大窗
占地:170平方米
二層農村房子圖片及全套施工圖紙,占地150平面左右
占地:150平方米
新中式三層樓房設計圖,外觀精致布局也是相當的樸實
占地:140平方米
帶車庫,帶露臺的三層復式樓房設計圖,新農村房屋方案推薦
占地:140平方米
三層新農村住宅房屋設計圖,溫馨美觀的戶型
占地:180平方米
三層新農村住宅設計圖及效果圖,三層樓房設計圖展示
占地:140平方米
小L型新款二層別墅設計圖,復式客廳旋轉樓梯,14米乘13米
占地:182平方米
一層中式四合院別墅設計方案圖,含外觀效果圖
占地:360平方米含院子
造價40萬三層大氣自建房設計圖紙,鄉村別墅建造圖
占地:159.609平方
歐式復式型三層別墅施工設計圖紙及效果圖大全
占地:164平方米
帶中式小院的二層仿古別墅設計圖,小戶型自建房設計,外觀美極
占地:82.94
鄉下一層自建養老平房戶型圖及全套圖紙,占地面積200左右
占地:200平方米
10X13米新款歐式三層別墅樓房設計圖,外觀清新明亮
占地:140平方米
四層別墅豪宅外觀效果圖及全套施工圖,高端歐式風格
占地:176.97平方米
推薦:10套新農村自建房設計圖,2026年最新設計
閱讀次數:4825737次
100套鄉村別墅圖片大全,2026年最新設計
閱讀次數:2492203次
6款農村蓋一層平房的設計圖,10萬元就能建起來
閱讀次數:1852637次
這11個一層農村自建房別墅火爆了朋友圈!我最喜歡戶型十!你呢
閱讀次數:750268次
農村6萬元建一層小別墅圖,你敢相信嗎
閱讀次數:567686次
農村5萬塊就能自建房,6套普通房子設計圖分享,你沒看錯!
閱讀次數:419410次
8套農村漂亮三間平房圖片,非常適合在農村修建!
閱讀次數:411197次
農村自建房化糞池怎么做?附方案及施工過程
閱讀次數:391783次
農村一層三間平房設計圖,告別土氣養老房,讓人忍不住點贊
閱讀次數:350581次
新農村二層樓房圖片造價12萬,挑一套回家建房吧!
閱讀次數:349126次
