
|
房子建來就是要住的,所以經濟實用的小別墅戶型最受咱老百姓的歡迎。 不管是在農村還是在城鎮,如果家中宅基地不是很大,又想建個經濟實用的戶型,一層不夠住,一層半就很合適嘍。 一層半建造不僅省錢舒適,建好絕對不會輸給城里商品別墅的。 此款戶型一切以“精、簡”為調性,小巧簡約低調,二層帶大露臺,整棟房間數量剛剛好,完全滿足一般家庭。 造價才10萬左右(10萬不含人工費和宅基地費哦)---跟小編一起來看看吧~~~!!
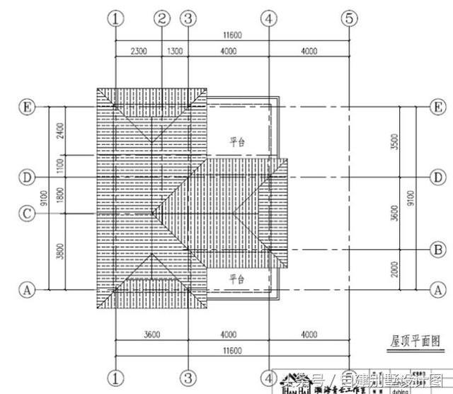
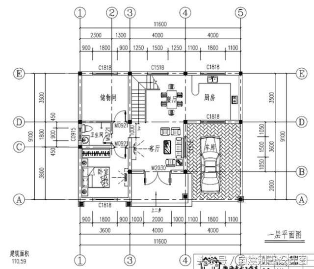
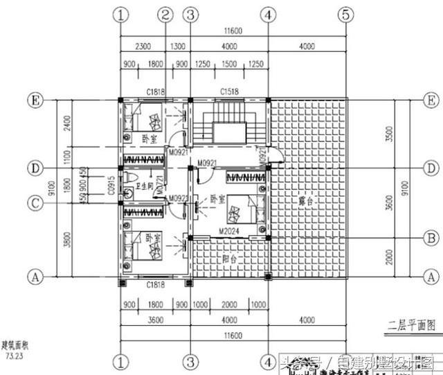
戶型信息介紹: 占地面積:11.6m*9.1m,105平方米左右; 建筑層高:二層;建筑高度:9.31米(含屋頂);
平面設計功能: 一 層:客廳、臥室、廚房、餐廳、衛生間、儲物間; 二 層:臥室x3、衛生間、大露臺、陽臺;
立面圖展示:
PS:不知道大家對小編今天介紹的這款一層半經濟型小別墅方案是否滿意呢?有什么想說的可以在下方留言和或私信小編! 圖紙之家-專注農村別墅/自建房設計18年,集合國內200余位經驗豐富的設計師,被評為口碑最好的農村建筑設計公司! |

農村七字形獨棟一層別墅設計圖,設計感十足
占地:274.51平方米
經典戶型二層農村小別墅設計圖,造價25萬內
占地:140平方米
二層農村房子圖片及全套施工圖紙,占地150平面左右
占地:150平方米
農村120平米兩層樓的房子設計圖,外觀新穎
占地:120平方米
小戶型經濟農村雙拼自建房別墅設計圖紙,二層簡約造價低
占地:138平方米
四開間一層半別墅設計圖,帶閣樓設計的戶型方案
占地:190.7平方米
簡單實用二層雙拼樓房設計圖,造價30萬左右
占地:180平方米
兩層半新農村別墅設計圖紙,CAD設計圖+高清效果圖
占地:90平方米
30萬農村小別墅設計圖片,30萬別墅設計戶型推薦
占地:130平方米
一層合院中式小別院設計圖,白墻灰瓦,愜意十足!
占地:219平方米
125平方米三層新農村房屋建筑施工設計圖帶外觀圖
占地:126平方米
160平方米農村二層四合院別墅設計圖及外觀圖片
占地:158平方米
三層兄弟雙拼別墅設計方案,外觀大氣布局實用,住的舒服
占地:197.67平方米
豪華歐式三層別墅住宅設計圖紙,占地面積150平方米
占地:150平方米
農村二層帶閣樓四間別墅設計圖,外觀美觀,戶型實用
占地:175平方米
150平米經典二層中式別墅設計圖 ,現代中式相結合
占地:154平方米左右
新中式二層農村住宅設計圖,戶型方正,主體造價21萬
占地:135.81平方米
新款240平方米三層雙拼別墅設計圖,歐式兄弟雙拼圖片
占地:240平方米
三層現代簡約農村雙拼小別墅圖,好看精致,開間17米
占地:187平方米
農村自建二層樓房設計圖及效果圖,二層房屋圖推薦
占地:105平方米
推薦:10套新農村自建房設計圖,2026年最新設計
閱讀次數:4825737次
100套鄉村別墅圖片大全,2026年最新設計
閱讀次數:2492203次
6款農村蓋一層平房的設計圖,10萬元就能建起來
閱讀次數:1852637次
這11個一層農村自建房別墅火爆了朋友圈!我最喜歡戶型十!你呢
閱讀次數:750268次
農村6萬元建一層小別墅圖,你敢相信嗎
閱讀次數:567686次
農村5萬塊就能自建房,6套普通房子設計圖分享,你沒看錯!
閱讀次數:419410次
8套農村漂亮三間平房圖片,非常適合在農村修建!
閱讀次數:411197次
農村自建房化糞池怎么做?附方案及施工過程
閱讀次數:391783次
農村一層三間平房設計圖,告別土氣養老房,讓人忍不住點贊
閱讀次數:350581次
新農村二層樓房圖片造價12萬,挑一套回家建房吧!
閱讀次數:349126次
