
|
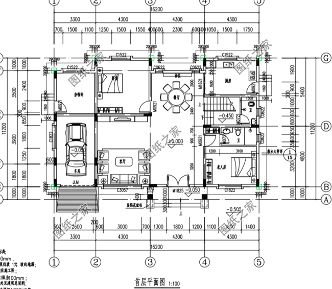
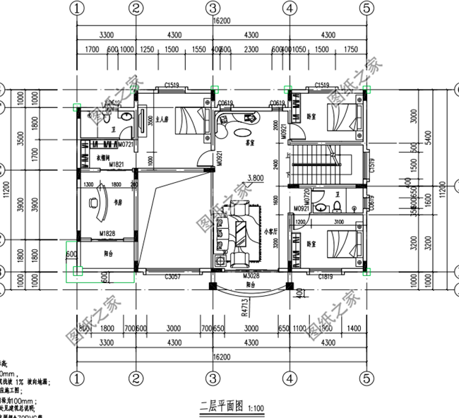
小的時候總是羨慕別人家有大房子,期盼著有一天自己也能蓋一棟那樣的別墅。現如今掙錢了,是時候為爸媽、為妻兒建一棟別墅,當然也是實現小時候的夢想。一輩子就蓋一棟房子,戶型一定要選好,這樣的話房子才蓋得值,如果你也認同小編的觀點,就看看接下來小編給大家帶來的四間三層樓農村樓房圖片吧,戶型是真的好,絕對蓋了不吃虧。 戶型一:農村四間三層樓房設計圖,坡屋頂設計,帶車庫圖紙介紹:本戶型挑空客廳,坡屋頂設計,增強別墅的造型感,顯得大氣利落,帶車庫。
占地面積:16.2m*11.2m,一層占地160平方米左右; 建筑層高:三層; 建筑高度:12.8米(含屋頂); 設計功能: 一 層:客廳、廚房、餐廳、老人房(衛生間)、臥室、雜物間、衛生間、車庫; 二 層:小客廳、主臥(帶衛生間,衣帽間,書房,陽臺)、臥室x2、茶室、衛生間、陽臺; 三 層:臥室×4、娛樂室、衛生間、露臺×2;
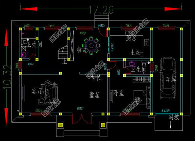
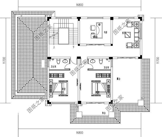
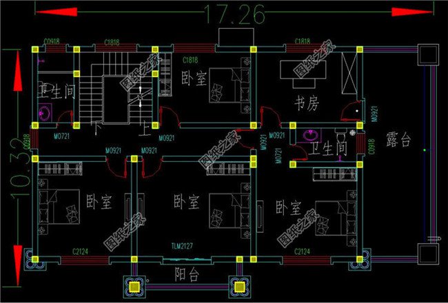
戶型二:農村三層房屋方案設計圖,帶堂屋,帶車庫,含全套圖紙圖紙介紹:本戶型非常上檔次,外觀造型簡約大方,歐式風格;功能分區合理,房間尺度設計適宜,采光通風良好,非常有時代氣息。
占地面積:17.26m*10.32m,163.8平方米左右; 建筑層高:三層; 建筑高度:12.831米(含屋頂); 設計功能: 一層戶型:堂屋、神位、客廳、餐廳、廚房、臥室(帶衛生間)、衛生間、車庫; 二層戶型:書房、臥室x3、臥室(帶衛生間)、衛生間、陽臺、露臺; 三層戶型:健身房、臥室、臥室(帶衛生間)、衛生間、陽臺、露臺x2;
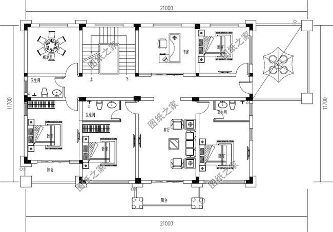
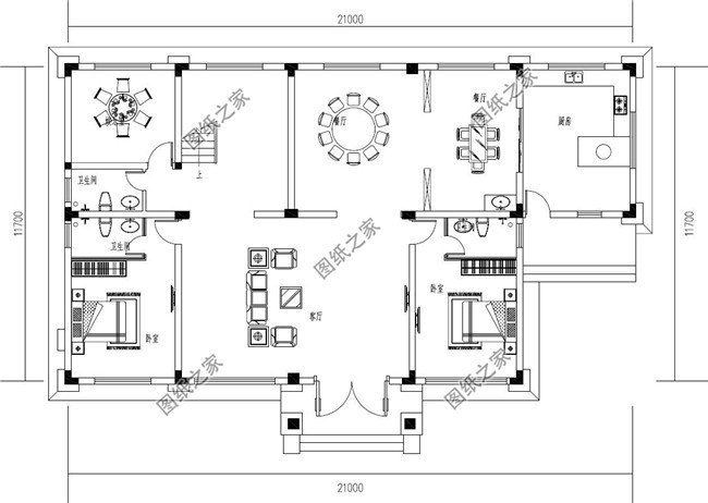
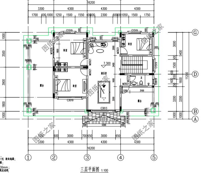
戶型三:高端大戶型三層別墅設計圖,主體造價40萬左右圖紙介紹:本戶型典型的歐式風格,采用框架結構;為了能更好的展現別墅的結構和層次感,別墅有多處凸起和參差不齊的設計,這樣使別墅看上去凹凸有致。
占地面積:21m*11.7m,227平方米左右; 建筑層高:三層; 建筑高度:13.175米(含屋頂); 設計功能: 一層戶型:客廳、餐廳x2、廚房、娛樂室、臥室(帶衛生間)x2、衛生間; 二層戶型:客廳、臥室x2、臥室(帶衛生間)x2、書房、娛樂室、衛生間、露臺; 三層戶型:客廳、臥室(帶衛生間)x2、書房、陽臺、露臺;
看完三套四間三層樓農村樓房圖片,你最喜歡哪一款呢?下方留言告訴小編吧。
圖紙之家-專注農村別墅/自建房設計18年,集合國內200余位經驗豐富的設計師,被評為口碑最好的農村建筑設計公司! |

100平方米實用二層半小別墅設計圖紙(帶閣樓層),住著安逸
占地:100平方米左右
豪華大氣三層農村房屋設計圖,對稱的主體設計大氣恢宏
占地:240平方米
農村二層半兄弟共建房別墅設計圖,復式戶型帶車庫,面寬24米
占地:312平方米左右
180平方米新農村自建二層小別墅設計圖及效果圖,15X13米
占地:183平方米
鄉村高檔四層別墅樓設計圖,二三層復式挑空客廳
占地:148.992平方米
廚房在前,簡約歐式二層農村自建別墅設計圖,戶型個性
占地:143.69平方米
一層半中式合院別墅設計圖,帶配房,有庭有院有品位
占地:135平方米左右
120平方米農村漂亮實用的兩層別墅設計圖紙,含外觀圖片
占地:120平方米
簡歐式三層小別墅設計圖,帶地下室,客廳中空,占地150平米
占地:150平方米
農村自建房設計圖,三層房屋設計圖及效果圖
占地:120平方米
面寬不到10米的小戶型自建房戶型圖,全套設計圖紙可施工
占地:123.2平方米左右
最漂亮的農村二層小樓設計圖紙,簡約又大氣時尚
占地:120平方米
兩層半20萬農村自建房,占地120平米左右
占地:120平方米
對稱一層農村養老別墅設計方案,室內戶型布局合理,14x12米
占地:141.46平方米
農村120平三層樓房設計圖,造型現代,帶屋頂花園
占地:120平方米
200平方米農村二層中式四合院設計圖,含外觀圖片
占地:200平方米
帶車庫農村二層樓房設計圖,外觀漂亮,精致
占地:154平方米
185平方米二層自建別墅設計施工圖紙及外觀效果圖,15x13米
占地:186平方米
網紅款兩層別墅圖紙設計圖,外觀簡單好看,后面不開窗
占地:171平方米左右
2026新款戶型三層新農村別墅房屋設計圖紙,外觀對稱
占地:160平方米
推薦:10套新農村自建房設計圖,2026年最新設計
閱讀次數:4825737次
100套鄉村別墅圖片大全,2026年最新設計
閱讀次數:2492203次
6款農村蓋一層平房的設計圖,10萬元就能建起來
閱讀次數:1852637次
這11個一層農村自建房別墅火爆了朋友圈!我最喜歡戶型十!你呢
閱讀次數:750268次
農村6萬元建一層小別墅圖,你敢相信嗎
閱讀次數:567686次
農村5萬塊就能自建房,6套普通房子設計圖分享,你沒看錯!
閱讀次數:419410次
8套農村漂亮三間平房圖片,非常適合在農村修建!
閱讀次數:411197次
農村自建房化糞池怎么做?附方案及施工過程
閱讀次數:391783次
農村一層三間平房設計圖,告別土氣養老房,讓人忍不住點贊
閱讀次數:350581次
新農村二層樓房圖片造價12萬,挑一套回家建房吧!
閱讀次數:349126次
