
|
近些年農村建房風格越來越多樣化,什么風格都有。不過總的來說,農村平屋頂的房子還是比較多的,畢竟在農村嘛,都希望有地方晾曬衣物或者農作物。看了這么多圖紙,小編還是覺得簡單大氣的三層平頂自建房比較適合農村,一來平頂戶型施工難度不高;二來還可以節省建房成本。整體設計也比較接地氣,符合農村的生活習慣,快看一看小編今天精心挑選的三套三層平頂自建房設計圖吧。
方案一:農村三層現代平頂別墅,簡約時尚,外觀布局非常驚艷![]() 圖紙介紹:本戶型外觀布局非常驚艷,整體看起來簡約時尚,大面積玻璃設計,讓整個別墅看上去十分寬敞;整棟別墅充滿現代氣息,看了就想蓋得沖動。 ![]() ![]() ![]() 占地面積:11.82m*12.62m,125.142平方米左右; 建筑層高:三層; 建筑高度:11.2米(含屋頂); 設計功能: 一層戶型:客廳、餐廳、廚房、臥室(帶衛生間)、臥室、衛生間; 二層戶型:客廳上空、小客廳、臥室(帶衛生間)、臥室x2、衛生間、陽臺; 三層戶型:臥室x2、衛生間、露臺、涼亭(帶頂);
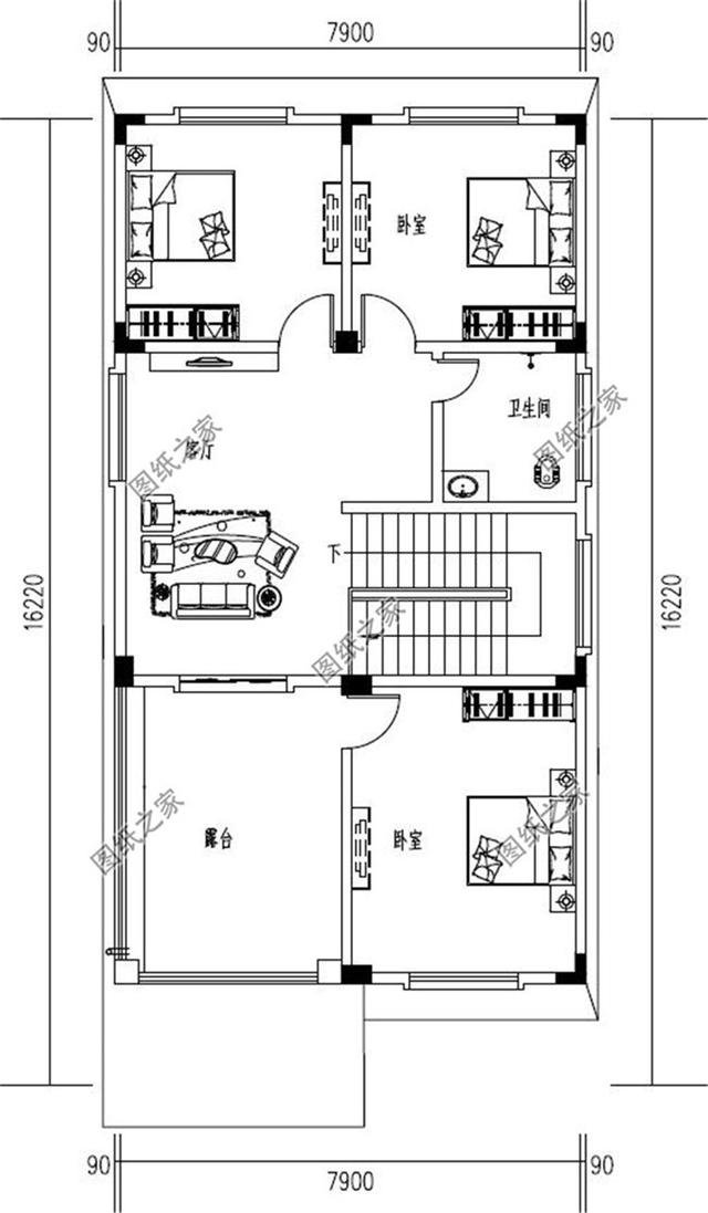
方案二:新農村三層別墅設計圖,占地115平方米![]() ![]() 圖紙介紹:本戶型平屋頂設計非常特別,外觀設計簡單大方,戶型方正;二樓三樓分別有陽臺和露臺,方便晾曬東西。 ![]() ![]() ![]() 占地面積:7.9m*16.22m,115平方米左右; 建筑層高:三層; 建筑高度:12米(含屋頂); 設計功能: 一層戶型:客廳、棋牌室、廚房、餐廳、臥室、衛生間; 二層戶型:客廳上空、客廳、臥室x3、衛生間、陽臺; 三層戶型:客廳、臥室x3、衛生間、露臺;
方案三:三層現代別墅設計圖,占地130平方米,帶電梯和地下室![]() 圖紙介紹:本戶型占地130平方米,帶電梯和地下室,三十幾萬就能建。外觀清新時尚,層次分明,給人印象非常深刻。 ![]() ![]() ![]() ![]() 占地面積:10.64m*9.94m,134.75平方米左右; 建筑層高:三層; 建筑高度:13.15米(含屋頂); 設計功能: 地下室戶型:車庫、儲藏室; 一層戶型:客廳、餐廳、廚房、臥室(帶衣帽間)、衛生間; 二層戶型:書房、娛樂區、臥室(帶衛生間、衣帽間)、臥室(帶衛生間)、陽臺; 三層戶型:臥室(帶衛生間、衣帽間)、臥室(帶衛生間)、露臺; 這三款戶型是多數農村人喜歡的戶型,絕對的讓您滿意。
圖紙之家-專注農村別墅/自建房設計18年,集合國內200余位經驗豐富的設計師,被評為口碑最好的農村建筑設計公司! |

三層平頂現代風格,農村自建房設計圖,可帶電梯,百看不厭
占地:259.55平方米
小型農村二層自建樓房設計圖,面寬10米小占地經濟
占地:78.54平方米
預算30萬左右的新農村三層房屋設計圖推薦,含外觀效果圖
占地:117平方米
15萬左右新中式二層別墅設計圖平面圖,占地110平米左右
占地:110平方米
2026新款戶型三層新農村別墅房屋設計圖紙,外觀對稱
占地:160平方米
面寬13米三層新中式獨棟別墅設計圖,復式自建房戶型方案
占地:201.25平方米
帶中式小院的二層仿古別墅設計圖,小戶型自建房設計,外觀美極
占地:82.94
農村自建超漂亮中式四合院別墅設計圖,22X25米
占地:473平方米
110平農村二層房屋設計圖,戶型特別接地氣,造價經濟還實用
占地:110.05平方米
一層農家雙拼自建房設計圖,左右對稱四平八穩
占地:219.05平方米
高端三層豪宅別墅設計方案圖,帶地下室,過悠然愜意生活
占地:127.06平方米
歐式小別墅設計圖紙帶效果圖,二層歐式小別墅設計方案展示
占地:166平方米
一層中式四合院別墅設計圖,符合國人審美,簡單大氣穩妥沉穩
占地:388平方米
極簡大氣二層別墅設計圖,15米面寬,簡約大氣,年輕人的最愛!
占地:150平方米
最好看的新款農村三層復式別墅設計圖片及設計圖,外觀高端、大
占地:160平方米
140-150平方米新農村別墅設計圖紙,帶外觀效果圖,復式戶型
占地:146平方米
帶開放式車庫二層農村自建別墅設計方案,造價僅15萬
占地:89.412平方米
簡歐二層別墅設計圖紙含效果圖片,寶家鄉墅經典風格
占地:137.34平方米
面寬17米農村實用自建房一層別墅設計圖,簡約大氣經濟時尚
占地:192.94平方米
新款三層農村自建別墅設計圖,中式風復式客廳
占地:158.96平方米
推薦:10套新農村自建房設計圖,2026年最新設計
閱讀次數:4825737次
100套鄉村別墅圖片大全,2026年最新設計
閱讀次數:2492203次
6款農村蓋一層平房的設計圖,10萬元就能建起來
閱讀次數:1852637次
這11個一層農村自建房別墅火爆了朋友圈!我最喜歡戶型十!你呢
閱讀次數:750268次
農村6萬元建一層小別墅圖,你敢相信嗎
閱讀次數:567686次
農村5萬塊就能自建房,6套普通房子設計圖分享,你沒看錯!
閱讀次數:419410次
8套農村漂亮三間平房圖片,非常適合在農村修建!
閱讀次數:411197次
農村自建房化糞池怎么做?附方案及施工過程
閱讀次數:391783次
農村一層三間平房設計圖,告別土氣養老房,讓人忍不住點贊
閱讀次數:350581次
新農村二層樓房圖片造價12萬,挑一套回家建房吧!
閱讀次數:349126次
