
|
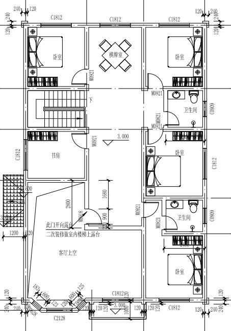
第一款:農村自建二層樓房設計圖及效果圖![]() 圖紙介紹:本戶型為二層帶車庫,帶大露臺別墅設計圖,戶型經典,二層大露臺寬敞,房間數量正可好,完全滿足一般家庭。 占地面積:11.6m*9.1m(墻中線的尺寸),105平方米左右; 建筑層高:二層; 建筑高度:9.31米(含屋頂); 設計功能: 一 層:客廳、臥室、廚房、餐廳、衛生間、儲物間 二 層:臥室x3、衛生間、大露臺、陽臺 ![]() ![]() 第二款:二層美式自建別墅設計圖,有全套施工圖![]() 圖紙介紹:本戶型為二層美式自建別墅設計圖,含全套施工圖+外觀效果圖,外觀美觀,造型精致,室內布局實用、合理。 占地面積:13.4m*11.0m,145平方米左右; 建筑層高:二層; 建筑高度:9.34米(含屋頂); 設計功能: 一層戶型設計:玄關、客廳、餐廳、廚房、臥室x2、衛生間、洗衣間(可改成主衛)、樓梯間; 二層戶型設計:客廳、主臥(帶書房、衛生間、陽臺)、臥室x2、衛生間、大露臺; ![]() ![]() 第三款:小開間大進深的二層別墅設計圖紙![]() 圖紙介紹:小開間大進深的二層別墅設計圖紙,建在農村就是一道風景。暖色系真石漆外墻防臟防潮,美觀又實用,從設計到選材每個細節都能看出十分用心。內部客廳作挑高設計,高大氣派。 占地面積:10.5m*16.1m,177平方米左右; 建筑層高:二層; 建筑高度:6.2米(含屋頂); 設計功能: 一層戶型:客廳、餐廳、廚房、衛生間、主臥(帶衛生間)、臥室×2、棋牌室; 二層戶型:客廳上空、休閑廳、主臥(帶衛生間)、臥室x3、衛生間、書房; ![]() ![]() 以上就是二層樓房設計平面圖,有全套圖紙,全方位回歸自然生活,希望給建房的你一些幫助,喜歡哪款,歡迎下方留言。
圖紙之家-專注農村別墅/自建房設計18年,集合國內200余位經驗豐富的設計師,被評為口碑最好的農村建筑設計公司! |

13x13米簡單二層帶閣樓最新別墅設計圖,精致美觀
占地:158.5平方米
農村10萬元一層小別墅設計圖紙,戶型實用又合理
占地:130平方米
100平左右鄉下三層樓房設計圖,戶型方正,小面積宅基地的福音
占地:100平方米
農村20萬元二層小樓房設計圖,經典新農村自建房戶型
占地:120平方米
農村現代三層建房子設計圖及圖片,平屋頂的設計
占地:150平方米
150平米左右歐式三層鄉村別墅設計圖,客廳中空
占地:150平方米
占地180平豪華三層農村別墅自建房設計圖,歐式與現代相融合
占地:183.706平方米
最實用一層小別墅設計方案,造價不高顏值高,家家都喜歡!
占地:143.48平方米
一層農村房子設計圖,含外觀效果圖,自建推薦戶型
占地:200平方米
240平方米新農村四合院兩層樓房施工設計圖紙帶外觀圖
占地:234平方米
120平帶車庫二層農村別墅施工圖,簡約時尚的外觀
占地:119.13平方米
豪華大氣農村三層別墅圖紙,帶車庫、露臺,占地200平方米左右
占地:207平方米
面寬17米農村一層平房設計圖,簡約空間敞亮
占地:169.393平方米
150平方米自建現代二層別墅施工設計圖帶外觀圖,15x10米
占地:多戶型可選
簡單實用新農村三層住宅房屋設計圖,時尚大氣,低調
占地:140平方米
155平方米新三層全套別墅設計資料,15x10米
占地:158平方米
農村三層半自建房子效果圖及設計圖,戶型占地90平方米左右
占地:92.17平方米
漂亮實用的新農村二層小樓圖,造價20萬左右,超大景觀露臺
占地:130平方米
簡約偏現代三層別墅設計圖紙及效果圖,鄉村蓋房推薦方案
占地:130平方米左右
2026新款二層別墅房屋設計圖,帶外觀圖片
占地:138平方米
推薦:10套新農村自建房設計圖,2026年最新設計
閱讀次數:4825737次
100套鄉村別墅圖片大全,2026年最新設計
閱讀次數:2492203次
6款農村蓋一層平房的設計圖,10萬元就能建起來
閱讀次數:1852637次
這11個一層農村自建房別墅火爆了朋友圈!我最喜歡戶型十!你呢
閱讀次數:750268次
農村6萬元建一層小別墅圖,你敢相信嗎
閱讀次數:567686次
農村5萬塊就能自建房,6套普通房子設計圖分享,你沒看錯!
閱讀次數:419410次
8套農村漂亮三間平房圖片,非常適合在農村修建!
閱讀次數:411197次
農村自建房化糞池怎么做?附方案及施工過程
閱讀次數:391783次
農村一層三間平房設計圖,告別土氣養老房,讓人忍不住點贊
閱讀次數:350581次
新農村二層樓房圖片造價12萬,挑一套回家建房吧!
閱讀次數:349126次
