
|
戶型一:農村一層房屋設計圖,自建一層房子圖紙![]() 圖紙介紹:本戶型為農村一層房屋設計圖,推薦農村自建一層房子的客戶選擇,此方案外觀別致,戶型實用,村里建一棟這樣的房子既能滿足面子,又能滿足實用的居住需求。 占地面積:17.00m*12.00m,200平方米左右; 建筑層高:一層; 建筑高度:6.40米(含屋頂); 設計功能: 一層:客廳、廚房、餐廳、主臥(帶衛生間)、主臥(帶衛生間)、臥室x3 ![]() 戶型二:農村三室二廳一層小平房設計圖,簡單實用型![]() 圖紙介紹:農村三室兩廳一層小別墅平房設計圖,外觀簡約,戶型方案實用,室內布局很簡單,作為養老房是最合適不過的了,冬天的時候可以自己安裝暖氣,這樣的話家里的老人再也不用擔心老寒腿的問題!簡單的設計歷久彌新,這樣的房子才最適合我們農村人自建生活! 占地面積:11.76m*11.01m,113.4平方米; 建筑層高:一層; 建筑高度:6.583米(含屋頂); 設計功能: 一層戶型:客廳、廚房、餐廳、臥室x3、衛生間; ![]() 戶型三:農村三間平房設計圖,3間一層小別墅設計方案![]() 圖紙介紹:本戶型為農村三間平房設計圖,帶外觀效果圖,戶型南北通透,采光好,此方案建造簡單,外觀和戶型都是相當不錯的。 占地面積:16.00m*9.50m,150平方米左右; 建筑層高:一層; 建筑高度:6.60米(含屋頂); 設計功能: 一層戶型設計:客廳、廚房、儲藏室(建造時可以去掉儲藏室,這樣餐廳比較大)、衛生間、主臥(帶衛生間)、次臥x3 ![]() 戶型四:鄉下建房一層平房設計圖紙及戶型圖,占地150平米左右 ![]() 圖紙介紹:鄉下建房一層平房設計圖紙及戶型圖,占地150平米左右,一層房子在農村也是非常流行的,它結構比較簡單,時尚又實惠。 占地面積:15.2m*9.5m,150平方米左右; 建筑層高:一層; 建筑高度:7.5米(含屋頂); 設計功能:客廳、餐廳、廚房、、主臥(帶衛生間)、臥室×2、衛生間、書房; ![]() 以上就是農村自建一層平房設計圖,在農村建一個一層別墅是最合適的,住的舒適,有院子的還可以種種菜,喜歡哪款,歡迎下方留言。
圖紙之家-專注農村別墅/自建房設計18年,集合國內200余位經驗豐富的設計師,被評為口碑最好的農村建筑設計公司! |

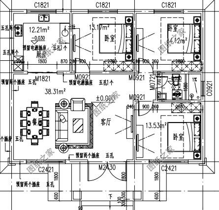
140平方米農村三層復式房屋設計施工圖,開放式廚房
占地:143平方米
新中式二層雙拼樓房設計圖,單戶面積100平米左右,實用美觀
占地:200平方米
歐式風格三層自建房設計圖,外觀高端大氣,彰顯業主的高貴品質
占地:180平方米
預算10萬左右新農村自建房屋設計圖紙,帶效果圖
占地:82平方米
新款現代一層小別墅設計圖,農村自建平房推薦戶型
占地:多戶型可選
簡歐式三層半(4層)農村自建房別墅設計圖效果圖,帶車庫戶型
占地:127平方米
140平方米兩層別墅CAD設計圖紙及效果圖,13x11米
占地:138平方米
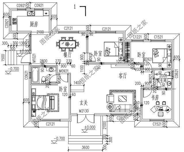
徽派自建房一層設計圖,七字型設計,獨立餐廚便捷實用
占地:171.65平方米
三層平頂現代別墅設計圖,實用不花冤枉錢,建好倍有面子
占地:113.02平方米
140平二層帶閣樓別墅設計方案圖,外觀圖片色彩明快
占地:140平方米
農村四層樓房設計圖及外觀效果圖,造價60萬左右
占地:163.84平方米
12.8x10米二層自建房別墅設計圖,大氣美觀實用,建造無憂
占地:128平方米
130平方米復式三層別墅房屋設計圖,含外觀效果圖
占地:130平方米
面寬不到8米的農村二層半別墅建筑圖紙及效果圖
占地:96平方米左右
獨棟歐式三層農村實用樓房設計圖,外觀圖大氣,13×13米
占地:144.75平方米
新中式農村三層房屋效果圖及施工圖,140平方米左右
占地:140平方米
簡單實用農村自建房五間一層別墅設計圖,多款戶型
占地:多戶型可選
農村新款二層中式別墅設計圖效果圖,帶堂屋設計
占地:144平方米
130-140平方米簡歐風格二層別墅設計施工圖紙,簡約大氣
占地:137平方米左右
鄉村最美三層別墅設計圖自建房戶型,外觀圖精致漂亮
占地:134平方米
推薦:10套新農村自建房設計圖,2026年最新設計
閱讀次數:4825737次
100套鄉村別墅圖片大全,2026年最新設計
閱讀次數:2492203次
6款農村蓋一層平房的設計圖,10萬元就能建起來
閱讀次數:1852637次
這11個一層農村自建房別墅火爆了朋友圈!我最喜歡戶型十!你呢
閱讀次數:750268次
農村6萬元建一層小別墅圖,你敢相信嗎
閱讀次數:567686次
農村5萬塊就能自建房,6套普通房子設計圖分享,你沒看錯!
閱讀次數:419410次
8套農村漂亮三間平房圖片,非常適合在農村修建!
閱讀次數:411197次
農村自建房化糞池怎么做?附方案及施工過程
閱讀次數:391783次
農村一層三間平房設計圖,告別土氣養老房,讓人忍不住點贊
閱讀次數:350581次
新農村二層樓房圖片造價12萬,挑一套回家建房吧!
閱讀次數:349126次
