
|
農村建房子就講究一個坐地方正,住在這樣的房子中才叫享受。但是想找一個戶型方正又外觀好看的房子,那是有一點困難的,畢竟并不是任何事情都是完美的。今天就給大家推薦三款占地12×12米農村建房設計圖,三層的小別墅絕對的夠時尚,外觀好看的沒的說,內部布局更是規劃合理,想建房的朋友們一起看看吧。
方案一:農村占地140-150平米三層別墅設計圖,復式戶型
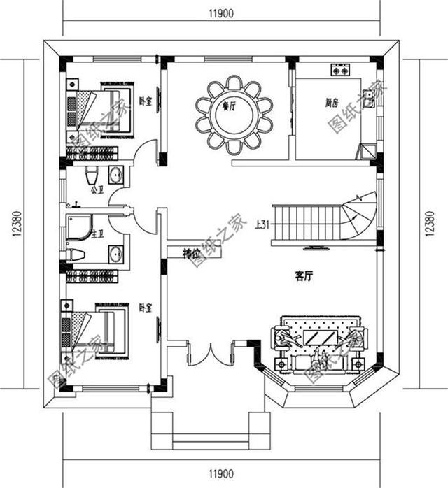
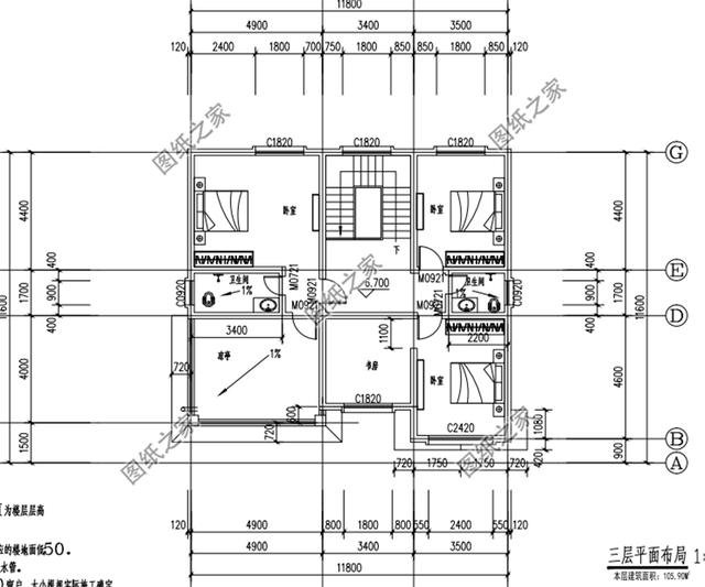
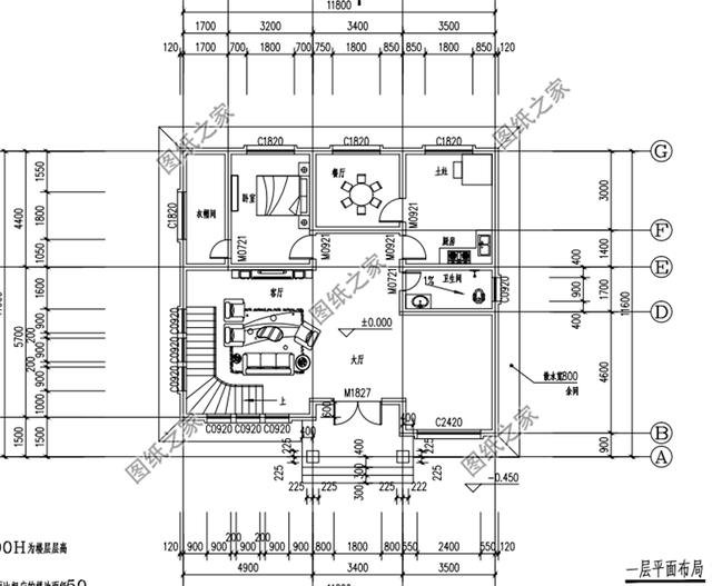
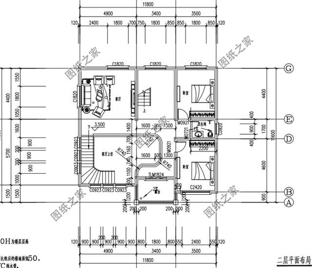
圖紙介紹:本戶型占地145平方米,復式高端戶型,歐式外觀設計,歐式中的經典,復式落地窗,非常有氣勢的羅馬柱,精致的雕花和花盆,典型歐式風格的窗套,立體浮雕山花,屋檐的裝飾線條,都把歐式的大氣華貴體現的淋漓盡致。 占地面積:11.9m*12.38m,146平方米左右; 建筑層高:三層; 建筑高度:14.19米(含屋頂); 設計功能: 一層戶型:客廳、神位、餐廳、廚房、臥室(帶衛生間)、臥室、衛生間; 二層戶型:客廳上空、起居室、臥室(帶衛生間)、臥室(帶書房衣帽間)、臥室、衛生間、陽臺; 三層戶型:起居室、臥室(帶書房衣帽間)、臥室(帶衛生間)、臥室、衛生間、露臺; ![]() ![]() ![]() ![]() 方案二:新農村三層自建樓房設計圖,占地140平方米
圖紙介紹:這款別墅戶型不是很復雜,時尚大氣的簡歐風格設計,設計規整大方,室內格局分化合理,充分利用空間,功能齊全多樣,有書房、休閑區、儲藏室等設計。 占地面積:11.8m*11.8m,140平方米左右; 建筑層高:三層; 建筑高度:12.59米(含屋頂); 設計功能: 一層戶型:客廳、餐廳、廚房、臥室、休閑區、儲藏室、衛生間; 二層戶型:客廳上空、主臥(帶衛生間)、次臥(帶衛生間)x2,、儲藏室; 三層戶型:主臥(帶衛生間)、次臥x2、書房、衛生間、露臺; ![]() ![]() ![]() ![]() 方案三:新式三層別墅設計圖,占地125平米,客廳中空
圖紙介紹:本戶型占地125平米左右,大方洋氣又舒適,造型經典大方,加上各種裝飾線條搭配,非常有氣勢。 占地面積:11.8m*11.6m,一層占地125平方米左右; 建筑層高:三層; 建筑高度:12.57米(含屋頂); 設計功能: 一 層:客廳、廚房、餐廳、臥室(帶衛生間)、衛生間; 二 層:客廳上空、客廳、臥室x2、衛生間、露臺; 三 層:書房、臥室(帶衛生間)、臥室x2、衛生間、大露臺; ![]() ![]() ![]() ![]() 如果有您喜歡的款式就趕快收藏圖紙吧。
圖紙之家-專注農村別墅/自建房設計18年,集合國內200余位經驗豐富的設計師,被評為口碑最好的農村建筑設計公司! |

極簡大氣二層別墅設計圖,15米面寬,簡約大氣,年輕人的最愛!
占地:150平方米
農村簡單雙拼小戶型,簡單適用,客廳中空,總占地210平方米
占地:210平方米
田園風格別墅設計圖及外觀圖片,樓中樓結構
占地:140平方米
110平方米農村兩層別墅設計效果圖及圖紙,12X12米
占地:110平方米
帶露臺陽光房二層建房別墅設計圖,13米乘12米,享受農村悠然慢
占地:143.54平方米
130平方米歐式實用農村二層樓別墅圖紙帶外觀圖12X13米
占地:132平方米
8萬元二層農村房子圖片及設計圖,簡易二層小樓,占地50平米
占地:50平方米
實用型農村120平米二層樓房設計圖,小巧美觀實用
占地:120平方米
鄉村兄弟二層小戶型雙拼房屋別墅設計圖,造價低,面積小
占地:多種戶型
50萬左右農村豪華二層別墅設計圖 ,大廳中空,外觀精美
占地:210平方米
三層樓房設計圖紙含效果圖,外觀造型高低錯落,別致大方
占地:152.4平方米
12x9米自建一層小別墅設計圖,占地不大造價低,簡單舒適人人夸
占地:108.36平方米
150平農村三層歐式別墅設計圖紙,盡顯豪華與精致,讓人羨慕不已
占地:147.62平方米
農村兩層半樓房設計圖,平面功能分區明確,布置合理
占地:180平方米
新農村住宅設計圖集,三層房屋設計圖紙展示
占地:110平方米
一層半小別墅設計圖帶效果圖,農村自建帶閣樓一層半方案
占地:155平方米
實用農村三層房屋設計圖紙,效果圖+全套施工圖
占地:113平方米
160平方米現代新農村四合院兩層別墅施工圖紙及效果圖
占地:157平方米
新農村二層客廳挑高樓房設計圖,外觀歐式風格
占地:178平方米
鄉村一層帶閣樓歐式小別墅,“L”型七字設計戶型
占地:194.218平方米
推薦:10套新農村自建房設計圖,2026年最新設計
閱讀次數:4825737次
100套鄉村別墅圖片大全,2026年最新設計
閱讀次數:2492203次
6款農村蓋一層平房的設計圖,10萬元就能建起來
閱讀次數:1852637次
這11個一層農村自建房別墅火爆了朋友圈!我最喜歡戶型十!你呢
閱讀次數:750268次
農村6萬元建一層小別墅圖,你敢相信嗎
閱讀次數:567686次
農村5萬塊就能自建房,6套普通房子設計圖分享,你沒看錯!
閱讀次數:419410次
8套農村漂亮三間平房圖片,非常適合在農村修建!
閱讀次數:411197次
農村自建房化糞池怎么做?附方案及施工過程
閱讀次數:391783次
農村一層三間平房設計圖,告別土氣養老房,讓人忍不住點贊
閱讀次數:350581次
新農村二層樓房圖片造價12萬,挑一套回家建房吧!
閱讀次數:349126次
