圖紙介紹:四層雙拼復式大戶型豪華別墅設計圖,貴氣浪漫氣場強,是向往的生活田園的夢,別墅通過精巧的設計讓整棟別墅大氣體面,主人可以尊享寬綽的室內空間,輕松擁有比城市更舒適的鄉居體驗,為家中提供了足夠的居住和實用空間。雙開門的別墅更顯出一種大別墅沒有的精致體面,讓人眼前一亮。
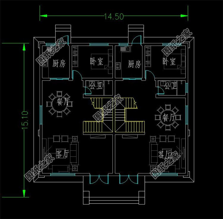
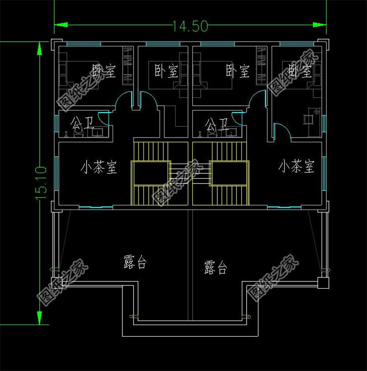
占地面積:14.5m*15.1m,188.5平方米;
建筑層高:四層;
建筑高度:16米(含屋頂);
設計功能:
一層戶型:客廳x2、廚房x2、餐廳x2、臥室x2、衛生間x2;
二層戶型:客廳上空x2、起居室x2、臥室(茶室、衛生間)x2、臥室x2、衛生間x2;
三層戶型:起居室x2、臥室(茶室、衛生間)x2、臥室x4、衛生間x2、陽臺起居室x2、臥室(茶室、衛生間)x2臥室x2、衛生間x2;
四層戶型:臥室x4、小茶室x2、衛生間x2、露臺x2;
圖紙目錄:
建筑圖:建筑設計說明、一層平面圖、二層平面圖、三層平面圖、四層平面圖、屋頂平面圖、正立面圖、背立面圖、左立面圖、右立面圖、1-1剖面圖、樓梯大樣圖、門斗大樣圖、節點大樣圖、門窗表等;
結 構 圖:結構設計說明、基礎平面布置圖、一層頂梁結構平面圖、一層頂板結構平面圖、二層頂梁結構平面圖、二層頂板結構平面圖、三層頂梁結構平面圖、三層頂板結構平面圖、坡屋頂梁結構平面圖、坡屋頂板結構平面圖、樓梯配筋大樣圖、節點大樣圖等;
給排水圖:給排水設計說明、一層給排水平面圖、二層給排水平面圖、三層給排水平面圖、四層給排水平面圖、屋頂給排水平面圖、衛生間大樣圖、給排水系統圖等;
電 氣 圖:電氣設計說明、配電系統圖、弱電系統圖、一層照明平面圖、二層照明平面圖、三層照明平面圖、四層照明平面圖、一層插座平面圖、二層插座平面圖、三層插座平面圖、四層插座平面圖、一層弱電平面圖、二層弱電平面圖、三層弱電平面圖、四層弱電平面圖、基礎接地平面圖、屋頂防雷平面圖等;
本套圖紙含全套A3施工圖+高清效果圖,拿到即可施工!



























































































