
|
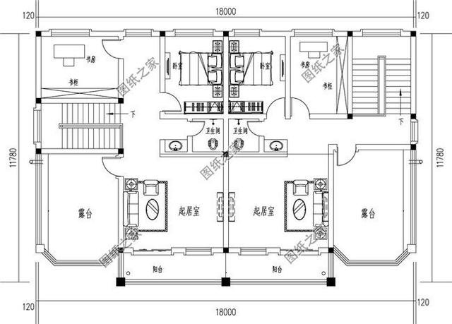
現在兄弟姐妹回農村建房的越來越多了,一家建的比一家漂亮,外人就會做比較,讓自家人不舒服,其實兄弟姊妹建雙拼別墅才是好的選擇,特別是對家庭有老人來說,能天天看到自己的子女在一起,享受兒孫繞膝的天倫之樂,是非常幸福的一件事。雖然只隔一墻,但對老人來說就是一家,何樂而不為呢! 今天小編就介紹三款漂亮的農村自建雙拼別墅效果圖以及戶型圖,看看你有沒有喜歡的。 第一款:中式風格農村二層三拼別墅設計圖以及戶型圖![]() 這款三拼別墅效果圖,新外觀風格,很適合三兄弟需求!這款別墅傳承了中華文化的韻味,在社交上非常簡約,采用灰白兩種色調搭配,干凈整潔的外立面,透露出更多的是穩重感,尤其是虎門窗的設計,一看就是高雅、有文化之人的家舍,滿滿的書生氣息,與著大好鄉村美景融合,猶如一幅山水畫。門廳左右兩邊的落地窗,寬敞通透,開闊視野空間,窗外美妙風光盡收眼底。 占地面積:34m*14.82m,452.87平方米左右,單戶150.96平方米左右; 建筑層高:二層 建筑高度:9.871米 功能: 一層房屋戶型:客廳、廚房、餐廳、茶室、衛生間、臥室; 二層房屋戶型:客廳上空、書房、臥室x3、衛生間、陽臺 ![]() ![]() 第二款:簡歐式三層雙拼別墅設計圖以及戶型圖![]() ![]() ![]() 漂亮清新大窗戶三層設計圖,無論是外形還是內部都有其獨特的韻味,外觀不再是貌合神離,里面也不再是花里胡哨。為經濟造價而生的雙拼別墅實用性也是不容小覷的。外墻面用不同色系的文化石和石漆,伸出式門檐和陽臺不僅增加了利用空間而且使房子凹凸有致,看起來大氣又舒適,大門處用方形裝飾,橙紅色琉璃瓦的覆蓋,體現出整棟別墅的喜慶感 占地面積:18m*11.78m,186平方米左右,單戶93平左右; 建筑層高:三層; 建筑高度:12.57米(含屋頂); 設計功能: 一層:門廳x2、茶室、起居室x2、神位、八仙桌、餐廳x2、廚房x2、臥室、衛生間x2、儲藏間; 二層:起居室、臥室(帶衛生間)、臥室x6、衛生間x2、陽臺; 三層:起居室x2、臥室x2、書房x2、衛生間x2、陽臺、露臺x2 ![]() ![]() ![]() 第三款:農村五開間帶堂屋的設計圖![]() 這款農村五開間帶堂屋的設計圖,共用堂屋,適合兄弟二人一起合建!別墅整體給人的感覺是溫馨典雅,外立面米黃色外墻漆與淺黃色面磚,加上金色的浮雕點綴,暖暖的色調看著就很溫馨,門廊是由米黃色的方形廊柱支撐,與二樓的陽臺顯得大氣恢弘,磚紅色的屋頂點亮了整棟別墅,鮮活明亮。后立面大面積玻璃窗,采光無憂。共用大堂屋,非常寬敞透亮,每戶一間臥室且近靠公衛,二層每戶設有4個臥室和書房,室外共用小陽臺! 占地面積:23.4m*14m,292.5平方米左右,單戶146.25平方米左右; 建筑層高:二層 建筑高度:10.42米 功能: 一層房屋戶型:堂屋、客廳、棋牌室、廚房、餐廳、臥室(帶衛生間)、臥室、衛生間; 二層房屋戶型:書房、臥室(帶衛生間)、臥室(帶衛生間、衣帽間)、臥室x2、衛生間、陽臺 ![]() ![]() 以上就是小編推薦的農村雙拼別墅設計圖以及戶型圖了,你喜歡哪個?
圖紙之家-專注農村別墅/自建房設計18年,集合國內200余位經驗豐富的設計師,被評為口碑最好的農村建筑設計公司! |

最漂亮的農村二層小樓設計圖紙,簡約又大氣時尚
占地:120平方米
100平客廳挑高三層樓房設計圖,復式結構
占地:100平方米
農村二層樓房設計圖紙,含全套設計方案(施工圖+效果圖)
占地:98平方米
80-90平米二層經典小別墅房屋設計圖,左右對稱外觀
占地:88.46平方米
100平內的三層豪華歐式別墅房屋設計圖紙 ,簡歐風格
占地:94平方米左右
復式、旋轉樓梯三層別墅設計方案圖,戶型合理、實用
占地:138平方米
開間13米左右新農村2層自建房別墅戶型設計圖,簡潔實用
占地:170平方米
150平米經典二層中式別墅設計圖 ,現代中式相結合
占地:154平方米左右
14x11米一層平房戶型設計圖,帶前后門設計,好看不貴還實用!
占地:143.59平方米
農村一層平房設計圖,人字坡戶型簡單大方,養老自住都不錯
占地:139.2平方米
歐式二層別墅設計圖,漂亮實用性價比還高,13米乘10米
占地:130平方米
230平(單戶115平)雙拼別墅房屋設計圖及效果圖大全
占地:230平方米
農村兄弟合建一層雙拼房別墅圖,對稱設計,工整大方!
占地:170平方米
在農村30萬可以建造的三層別墅款式,帶別墅外觀圖片
占地:138平方米
豪華歐式三層別墅住宅設計圖紙,占地面積150平方米
占地:150平方米
13米開間的獨棟經濟型二層小別墅房屋設計圖,現代簡約
占地:150.39平方米
新農村二層住宅設計圖紙,簡單別墅設計圖(含效果圖)
占地:77.6平方米
鄉村仿古一層別墅圖片及設計圖,經典實用,占地170平
占地:170平方米
開間4米多的農村三層別墅設計圖,一開間三層自建房
占地:66.65平方米
100平新農村三層復式房屋別墅設計圖紙,造價30萬左右
占地:106平方米
推薦:10套新農村自建房設計圖,2026年最新設計
閱讀次數:4825737次
100套鄉村別墅圖片大全,2026年最新設計
閱讀次數:2492203次
6款農村蓋一層平房的設計圖,10萬元就能建起來
閱讀次數:1852637次
這11個一層農村自建房別墅火爆了朋友圈!我最喜歡戶型十!你呢
閱讀次數:750268次
農村6萬元建一層小別墅圖,你敢相信嗎
閱讀次數:567686次
農村5萬塊就能自建房,6套普通房子設計圖分享,你沒看錯!
閱讀次數:419410次
8套農村漂亮三間平房圖片,非常適合在農村修建!
閱讀次數:411197次
農村自建房化糞池怎么做?附方案及施工過程
閱讀次數:391783次
農村一層三間平房設計圖,告別土氣養老房,讓人忍不住點贊
閱讀次數:350581次
新農村二層樓房圖片造價12萬,挑一套回家建房吧!
閱讀次數:349126次
