
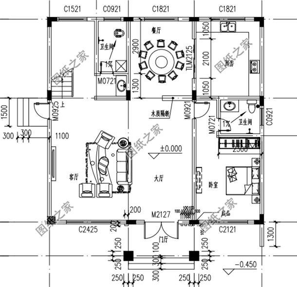
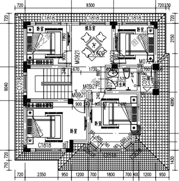
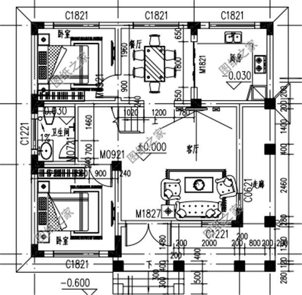
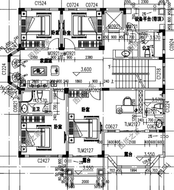
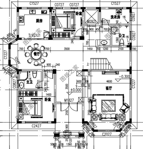
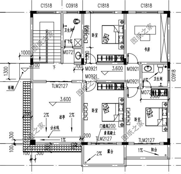
別墅效果圖一:130平方米現代簡約農村兩層樓房圖紙介紹:130平方米現代簡約農村兩層樓房施工設計圖紙帶外觀圖,簡約時尚的現代風格,大開間的窗戶,與二樓的玻璃扶欄相互呼映,映襯出農村的田園山水,美好風光。 ![]() 占地面積:11.5m*12.6m,126平方米左右; 建筑層高:二層; 建筑高度:9.36米(含屋頂); 設計功能: 一層戶型:大廳、客廳、廚房、餐廳、臥室(帶衛生間)、衛生間; 二層戶型:臥室(帶衛生間)、臥室x2、書房、衛生間、露臺、陽臺、涼亭; ![]() ![]() 別墅效果圖二:150平方米農村二層房屋設計圖圖紙介紹:150平方米農村二層房屋設施工計圖紙及外觀圖片,棕灰色外墻磚作別墅一層的外部材料,穩重古樸;白色大理石真石漆鋪設二層外墻,做成仿磚結構,使得立面更顯干凈規整,溫馨又雅致;整體配色較為淡雅,外觀上看清新自然,符合現代人的審美要求。 ![]() 占地面積:13.0m*13.75m,153平方米左右; 建筑層高:二層; 建筑高度:10.96米(含屋頂); 設計功能: 一層戶型:客廳、廚房、餐廳、臥室(帶衛生間)、臥室、洗衣房、衛生間; 二層戶型:家庭室、臥室(帶衛生間)、臥室(帶書房衛生間)、臥室x2、衛生間、露臺; ![]() ![]() 別墅效果圖三:農村70-80平米自建二層別墅設計圖圖紙介紹:農村70-80平方米小戶型自建房二層別墅設計圖,一層的走廊設計巧妙,戶型簡單,造價經濟,室內共設有兩廳六室,適合小戶家庭建筑。不同形狀的窗戶設計,增添別墅外觀的美感。功能劃分明確,風水布局良好,適合農村自建。 ![]() 占地面積:9.3m*9.44m,75平方米左右; 建筑層高:二層; 建筑高度:9.57米(含屋頂); 設計功能: 一層戶型:客廳、廚房、餐廳、臥室x2、衛生間、走廊; 二層戶型:臥室x4、衛生間、娛樂室、陽臺; ![]() ![]() 以上就是農村簡單二層別墅圖,外觀漂亮、布局功能齊全,是農村建房首選,基本適用于所有的農村建房地基。
圖紙之家-專注農村別墅/自建房設計18年,集合國內200余位經驗豐富的設計師,被評為口碑最好的農村建筑設計公司! |

占地180平方米二層鄉村小洋樓設計戶型圖及圖紙,外觀華麗
占地:180平方米
簡單實用農村自建小樓二層別墅設計圖,戶型造型簡約好看
占地:146平方米
帶堂屋新農村三層房屋別墅設計圖紙,帶外觀效果圖
占地:214平方米
農村120平方房子設計圖,三層房屋設計圖精選
占地:120平方米
165平方米三層雙拼農村房屋設計圖大全14x12
占地:168平方米
新農村二層住宅設計圖紙,簡單別墅設計圖(含效果圖)
占地:77.6平方米
14x12.5米二層農村別墅設計圖,布局完美獨立,顏值高又實用
占地:153.95平方米
帶地下室的一層別墅設計圖,農村自建很實用
占地:192平方米
二層農村自建小別墅設計圖,歐式風格,占地160平方米
占地:160平方米
農村兩層半樓房設計圖,平面功能分區明確,布置合理
占地:180平方米
20萬農村一層半小洋樓圖,自建別墅設計方案推薦
占地:155平方米
農村自建三層別墅設計圖,開間17米進深13米,外觀對稱設計
占地:187.6平方米
小青瓦一層中式小院三合院設計施工圖,白墻青瓦古色古香
占地:155.3平方米
一層時尚農村自建別墅方案,低至10萬的造價,適合住家養老
占地:131.04平方米
帶小院新農村房屋設計圖紙,三層別墅推薦
占地:115平方米
2026新款二層別墅房屋設計圖,帶外觀圖片
占地:138平方米
農村建房兄弟雙拼三層,經典的歐式風格,大氣的外觀
占地:250平方米
新農村現代簡約別墅建筑設計圖紙(含外觀效果圖),28萬左右
占地:107平方米
面寬10米左右的三層農村別墅設計案例,低調又奢華
占地:120平方米
農村中式一層三合院自建房設計圖,古典大氣白墻黛瓦
占地:177.62平方米
推薦:10套新農村自建房設計圖,2026年最新設計
閱讀次數:4825737次
100套鄉村別墅圖片大全,2026年最新設計
閱讀次數:2492203次
6款農村蓋一層平房的設計圖,10萬元就能建起來
閱讀次數:1852637次
這11個一層農村自建房別墅火爆了朋友圈!我最喜歡戶型十!你呢
閱讀次數:750268次
農村6萬元建一層小別墅圖,你敢相信嗎
閱讀次數:567686次
農村5萬塊就能自建房,6套普通房子設計圖分享,你沒看錯!
閱讀次數:419410次
8套農村漂亮三間平房圖片,非常適合在農村修建!
閱讀次數:411197次
農村自建房化糞池怎么做?附方案及施工過程
閱讀次數:391783次
農村一層三間平房設計圖,告別土氣養老房,讓人忍不住點贊
閱讀次數:350581次
新農村二層樓房圖片造價12萬,挑一套回家建房吧!
閱讀次數:349126次
