
|
在城里掙了錢,回農村老家蓋一棟小樓房,一家人住在一起,還不用還房貸,這是一件多么幸福的事情。而且在村里肯定有很多雜七雜八的物件,放在屋里顯得很亂,這時候可以建一個地下室,把雜物放在地下室不會顯得很亂,沒有雜物的還可以作為其他娛樂場所。今天小編給大家分享三款農村簡單普通三層樓房設計圖,美觀氣派,帶地下室,保證你看了就喜歡。
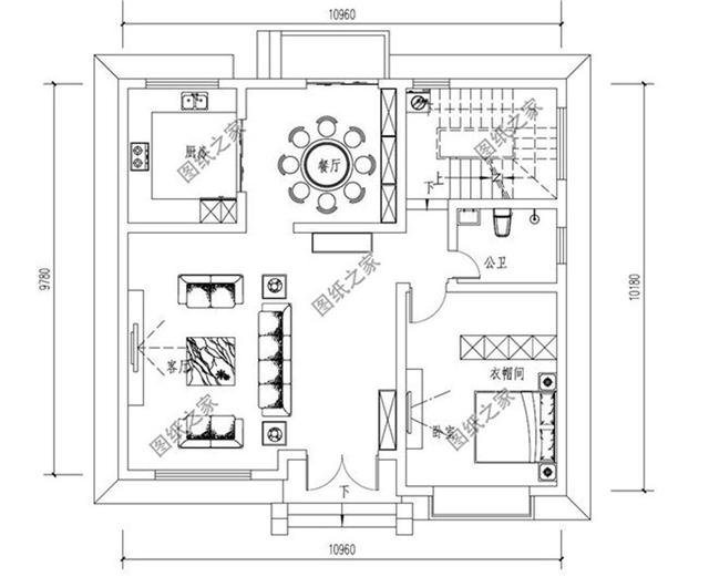
戶型一:農村三層自建房設計圖,占地112平米左右
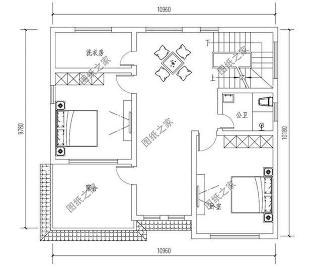
![]() 圖紙介紹:這款別墅外觀大氣實用,多窗戶的設計非常充分考慮到了別墅的采光和通風性。二樓還有書房,滿足工作需求;三樓有娛樂區,可以在工作之余休閑娛樂。 占地面積:10.96m*10.18m,112.56平方米左右; 建筑層高:三層; 建筑高度:12.392米(含屋頂); 設計功能: 一層戶型:客廳、餐廳、廚房、臥室(帶衣帽間)、衛生間; 二層戶型:書房、茶室、臥室x3、衛生間X2、陽臺; 三層戶型:娛樂區、臥室x2、書房、衛生間、洗衣房、露臺; ![]() ![]() ![]() 戶型二:農村歐式三層復式別墅設計圖,帶旋轉樓梯設計
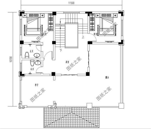
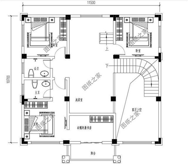
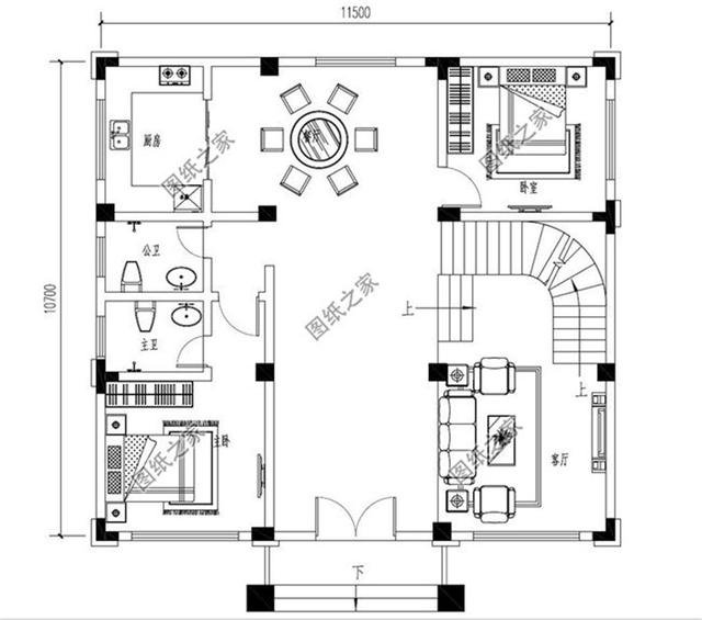
![]() 圖紙介紹:本戶型帶旋轉樓梯設計,占地130平左右,主體造價45萬,外觀大氣,內部布局合理,拱形落地窗讓整體顯得寬敞又通透。 占地面積:11.5m*10.7m,127.528平方米左右; 建筑層高:三層; 建筑高度:12.543米(含屋頂); 設計功能: 一層戶型:客廳、餐廳、廚房、臥室(帶衛生間)、臥室、衛生間; 二層戶型:客廳上空、起居室、臥室(帶衛生間、衣帽間兼書房)、臥室x2、衛生間; 三層戶型:茶室、臥室(帶衛生間)、臥室、衛生間、露臺、亭子; ![]() ![]() ![]() 戶型三:農村三層別墅設計圖,外觀精致漂亮
![]() 圖紙介紹:本戶型外觀精致漂亮,歐式風格,十分大氣的復式客廳,把歐式風格展現的淋漓盡致;內部布局功能布局合理,一層的儲藏間可以自由安排。 占地面積:12m*13.2m,134平方米左右; 建筑層高:三層; 建筑高度:11.955米(含屋頂); 設計功能: 一層戶型:客廳、餐廳、廚房、臥室X2、衛生間、儲藏間(可自由安排); 二層戶型:客廳上空、小客廳、臥室(帶衛生)、臥室x2、衛生間、露臺; 三層戶型:臥室x2、衛生間、露臺; 134 ![]() ![]() ![]() 怎么樣,這三棟樓房是不是美觀大氣呢,喜歡趕快收藏吧。
圖紙之家-專注農村別墅/自建房設計18年,集合國內200余位經驗豐富的設計師,被評為口碑最好的農村建筑設計公司! |

一層農村自建房設計,背面不開窗,15乘10米,內部布局實用
占地:多戶型可選
實用農村10萬一層小別墅戶型圖及圖紙,全套施工圖
占地:多種面積
現代新中式四層復式別墅房屋設計圖,旋轉樓梯,含效果圖
占地:150平方米
歐式兩層別墅樓房設計圖紙施工方案,高端豪華外觀圖片
占地:138平方米
農村三層復式自建樓房設計圖,外觀圖大氣
占地:130平方米
170平方米新農村現代樓中樓三層別墅設計施工圖紙及效果圖
占地:170平方米
旋轉樓梯挑空獨棟二層簡歐小別墅設計圖,大氣時尚
占地:189.26平方米
一層中式仿古三合院設計圖,實用又大氣,百年不過時
占地:366.67平方米
130平四間二層小洋樓設計圖,含外觀圖片
占地:130平方米
鄉村兩層半別墅設計圖,一層160平,主體30萬左右
占地:168平方米左右
農村一層大別墅施工圖,18米乘12米,讓生活充滿儀式感
占地:216平方米
二開間二層別墅設計圖,面寬9米,不可多得的好選擇!
占地:93.24平方米
徽派自建房一層設計圖,七字型設計,獨立餐廚便捷實用
占地:171.65平方米
四層豪華歐式別墅自建樓房設計圖紙,帶效果圖和全套施工圖
占地:300平方米
農村二層帶閣樓四間別墅設計圖,外觀美觀,戶型實用
占地:175平方米
左右對稱的歐式高端三層別墅設計圖,外觀氣派、豪華
占地:200平方米
帶地下室三層復式別墅設計方案,全套設計圖+效果圖
占地:168平方米
中國最美建筑四合院設計圖紙及效果圖,顏值爆棚
占地:152平方米左右
農村二層半別墅圖片大全,二層半別墅設計圖推薦
占地:160平方米
復式客廳挑空三層別墅設計圖,帶外觀效果圖片,推薦
占地:150平方米
推薦:10套新農村自建房設計圖,2026年最新設計
閱讀次數:4825737次
100套鄉村別墅圖片大全,2026年最新設計
閱讀次數:2492203次
6款農村蓋一層平房的設計圖,10萬元就能建起來
閱讀次數:1852637次
這11個一層農村自建房別墅火爆了朋友圈!我最喜歡戶型十!你呢
閱讀次數:750268次
農村6萬元建一層小別墅圖,你敢相信嗎
閱讀次數:567686次
農村5萬塊就能自建房,6套普通房子設計圖分享,你沒看錯!
閱讀次數:419410次
8套農村漂亮三間平房圖片,非常適合在農村修建!
閱讀次數:411197次
農村自建房化糞池怎么做?附方案及施工過程
閱讀次數:391783次
農村一層三間平房設計圖,告別土氣養老房,讓人忍不住點贊
閱讀次數:350581次
新農村二層樓房圖片造價12萬,挑一套回家建房吧!
閱讀次數:349126次
