
|
現在農村人越來越有錢了,小洋樓也是蓋的越來越高,讓人羨慕的不行。雖然有的人家占地不大,但是可以往高處蓋。今天推薦的這三款農村三間三層半新款別墅設計圖,外觀設計簡潔大氣,室內功能齊全,帶有車庫、落地窗、書房、臥室套房和多個陽臺燈功能,可以說是豪宅了。
款式一:農村三層半別墅設計圖,占地185平米左右
圖紙介紹:這款別墅占地面積不大不小,外觀時尚好看,別墅背面有多個窗戶,加強了室內采光和通風效果,而且窗戶使用了浮雕設計還能加強美觀性。室內布局合理,多陽臺設計,三樓還有涼亭,夏天絕對是一大好處。 占地面積:13m*15.8m,185.04平方米左右; 建筑層高:四層; 建筑高度:16.144米(含屋頂); 設計功能: 一層戶型:玄關、客廳、廚房、餐廳、茶室(棋牌室)、臥室(帶衣帽間)、衛生間; 二層戶型:客廳、書房、臥室(帶衛生間)、臥室x3、衛生間、陽臺; 三層戶型:客廳、書房、臥室(帶衛生間)、臥室x3、衛生間、陽臺; 四層戶型:書房、臥室x2、衛生間、露臺、涼亭; ![]() ![]() ![]() ![]() ![]() 款式二:農村自建房三層半效果圖,戶型占地僅90平米左右
圖紙介紹:本戶型占地面積小,僅90平方米左右,造價低。一層客廳寬敞,可供家人放松休息。二層設有3間臥室,大小合理;陽臺和客廳相連,光線充足;三層臥室設置充裕;四層大露臺寬敞,可以打造成空中花園、露臺燒烤等。 占地面積:9.35m*10.62m,92.17平方米左右; 建筑層高:四層; 建筑高度:15.836米(含屋頂); 設計功能: 一層戶型:客廳、廚房、餐廳、茶室、臥室、衛生間; 二層戶型:客廳、臥室(帶衛生間)、臥室x2、衛生間、陽臺; 三層戶型:臥室(帶衛生間)、臥室x3、衛生間、陽臺; 四層戶型:健身房、多功能區、衛生間、露臺、陽臺; ![]() ![]() ![]() ![]() ![]() 款式三:農村歐式三層半別墅設計圖,帶車庫設計
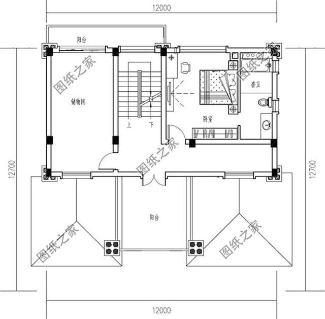
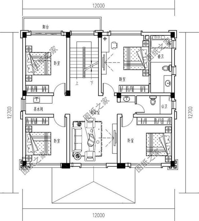
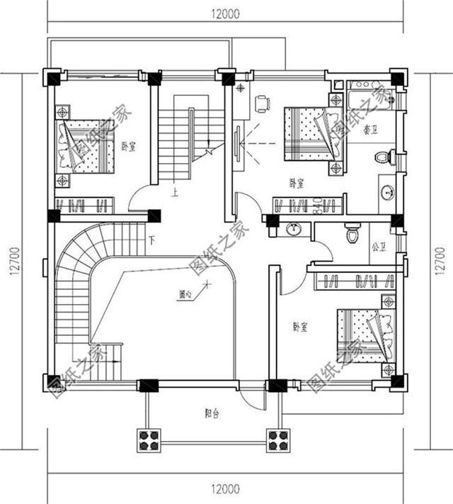
圖紙介紹:這款簡歐風格三層半別墅設計圖,帶車庫設計,戶型方正大氣,外觀和布局設計都是萬里挑一,非常時尚。而且多窗戶的設計保證了室內采光和通透效果。 占地面積:12m*12.7m,127平方米左右; 建筑層高:四層; 建筑高度:15.66米(含屋頂); 設計功能: 一層戶型:客廳、廚房、餐廳、臥室、衛生間、車庫; 二層戶型:客廳上空、臥室(帶衛生間)、臥室x2、衛生間、陽臺; 三層戶型:起居室、臥室(帶衛生間)、臥室x3、茶水間、衛生間; 四層戶型:臥室(帶衛生間)、儲物間、陽臺; ![]() ![]() ![]() ![]() ![]() 這樣的豪宅難道還有人不喜歡嗎?中意哪一款趕快收藏吧。
圖紙之家-專注農村別墅/自建房設計18年,集合國內200余位經驗豐富的設計師,被評為口碑最好的農村建筑設計公司! |

200多平方米新農村雙拼別墅設計圖紙,堂屋和樓梯共用
占地:207平方米左右
歐式風格三層自建房設計圖,外觀高端大氣,彰顯業主的高貴品質
占地:180平方米
開間8米的小戶型二層別墅設計圖,2開間占地不到60平
占地:56平方米左右
二層兄弟雙拼農村別墅圖新中式,兄弟這樣建房,大氣省錢
占地:143.412平方米
簡單實用農村自建小樓二層別墅設計圖,戶型造型簡約好看
占地:146平方米
小戶型兄弟雙拼別墅房屋設計圖,帶外觀效果圖
占地:150平方米
120平方三層房子設計圖,漂亮實用農村自建小別墅設計圖
占地:120平方米
鄉村一層平房設計圖,面寬13米平面圖及造型圖
占地:170平方米
農村三層樓房圖造價26萬,客廳中空,占地90平米
占地:90平方米
二開間小戶型設計三層農村自建房方案,經濟型適合小宅基地建房
占地:107.02平方米
帶車庫三層自建別墅設計圖紙,客廳中空,外觀洋氣時尚,這款戶
占地:170平方米
90平方米農村二層房屋設計圖紙(施工圖+效果圖)
占地:90平方米
新農村自建20萬二層小樓外觀圖及戶型圖,簡單大方,漂亮接地氣
占地:130平方米
高端歐式四層別墅房屋施工圖紙及效果圖,圓弧大窗
占地:170平方米
15萬左右新中式二層別墅設計圖平面圖,占地110平米左右
占地:110平方米
可以傳家的新中式二層別墅,經典耐看,再過幾十年也不過時
占地:146.81平方米
165平方米農村帶陽光房的二層小別墅設計圖紙帶外觀圖18.16米*9.
占地:166平方米
兩層半新農村別墅設計圖紙,CAD設計圖+高清效果圖
占地:90平方米
26萬二層平頂別墅樓設計圖,客廳中空,占地120平米
占地:120平方米
三層奢華歐式別墅圖片及全套設計圖,帶地下室和車庫
占地:208平方米左右
推薦:10套新農村自建房設計圖,2026年最新設計
閱讀次數:4825737次
100套鄉村別墅圖片大全,2026年最新設計
閱讀次數:2492203次
6款農村蓋一層平房的設計圖,10萬元就能建起來
閱讀次數:1852637次
這11個一層農村自建房別墅火爆了朋友圈!我最喜歡戶型十!你呢
閱讀次數:750268次
農村6萬元建一層小別墅圖,你敢相信嗎
閱讀次數:567686次
農村5萬塊就能自建房,6套普通房子設計圖分享,你沒看錯!
閱讀次數:419410次
8套農村漂亮三間平房圖片,非常適合在農村修建!
閱讀次數:411197次
農村自建房化糞池怎么做?附方案及施工過程
閱讀次數:391783次
農村一層三間平房設計圖,告別土氣養老房,讓人忍不住點贊
閱讀次數:350581次
新農村二層樓房圖片造價12萬,挑一套回家建房吧!
閱讀次數:349126次
