
|
在農村建房子不僅要美觀大方,還注重經濟實用,這樣的房子才是農村人喜歡的房子。但是有的房子雖然很氣派好看,但是卻不實用,打理起來也麻煩。今天推薦的這三款農村二層樓房設計平面圖,每一款都是經典,時尚又好看,關鍵是非常的實用,光是外觀就讓人看了喜歡,更別提室內有多合理了,趕快看看吧。
款式一:農村二層自建樓房設計圖,占地90平方米
圖紙介紹:本戶型占地90平米左右,別墅配色沉穩大方,又打破了沉悶和老氣,紅色氣派的大門,象征生活紅紅火火。 占地面積:11.2m*8.4m,90平方米左右; 建筑層高:二層; 建筑高度:8.0米(含屋頂); 設計功能: 一層戶型:客廳、餐廳、廚房、臥室、衛生間; 二層戶型:休息區、主臥(帶書房)、臥室x2、衛生間、陽臺; ![]() ![]() ![]() ![]() 款式二:占地200平米二層別墅設計圖,外觀配色清新
圖紙介紹:本戶型占地200平米左右,別墅的配色清新淡雅,濃濃的田園鄉村氣息,充分的體現農村富足的生活。室內布局合理,二樓還有大露臺。 占地面積:16.2m*11.7m,205平方米左右; 建筑層高:二層; 建筑高度:10.2米(含屋頂); 設計功能: 一層戶型:客廳、餐廳、廚房、衛生間、主臥(帶衛生間)、臥室×3、儲藏間; 二層戶型:客廳、臥室x4、書房、衛生間、陽臺、大露臺; ![]() ![]() ![]() ![]() 款式三:農村二層自建房設計圖,外觀漂亮,客廳中空
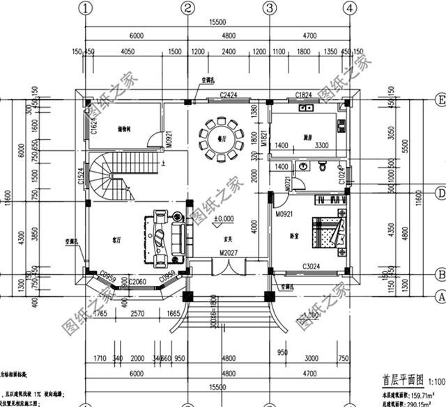
圖紙介紹:本戶型占地160平米左右,客廳中空,外觀精致小巧,布局很大氣,客廳挑空采光很好,還有幾個臥室設計,衛生間的配備也很充分,觀景陽臺也不缺少。 占地面積:15.5m*11.6m,160平方米左右; 建筑層高:三層 建筑高度:11.0米(含屋頂); 設計功能: 一層戶型:客廳、餐廳、廚房、衛生間、主臥、衛生間; 二層戶型:客廳上空、小客廳、臥室x4、衛生間、陽臺; ![]() ![]() ![]() ![]() 你們喜歡哪一款呢?可以先收藏圖紙,等著建房的時候用。
圖紙之家-專注農村別墅/自建房設計18年,集合國內200余位經驗豐富的設計師,被評為口碑最好的農村建筑設計公司! |

105平一層簡單農村別墅設計圖,造價8萬左右
占地:105平方米
200平方農村三層別墅房屋設計圖及效果圖,大戶型精選
占地:200平方米
新中式三層別墅,旋轉樓梯+挑空客廳,高級感拉滿
占地:125平方米
二層小型簡單四合院設計圖,戶型方正,左右對稱,傳統文化的傳
占地:470平方米
2026兩層半20多萬農村自建房圖,簡歐風格,美觀大氣
占地:120平方米
二層樓房圖片及施工圖紙,占地160平米左右,帶車庫
占地:160平方米
農村蓋平房設計大全圖,鄉下建房一層戶型圖及效果圖
占地:160平方米
簡單漂亮實用的三層自建房設計圖,帶露臺,占地170平方米
占地:170平方米
鄉村自建獨棟三層別墅樓房設計圖,預算30萬內
占地:120平方米
南方北方新農村房屋設計圖紙(含效果圖),三層住宅設計圖紙
占地:164平方米
100平米左右簡單實用的二層樓房設計圖,施工簡單造價低
占地:95平方米
130平方米別墅設計圖紙(含外觀效果圖,)三層別墅設計方案
占地:135平方米
140平方米新農村四層房屋設計圖紙,農村自建推薦
占地:140平方米
120平方房子設計圖帶效果圖,農村自建房戶型推薦
占地:120平方米
農村一層中式三合院太香了!白墻黛瓦,有院有景超宜居
占地:364.72平方米
130平氣派美觀的二層別墅房屋設計圖,含效果圖
占地:130平方米
80平方米鄉村一層半帶閣樓自建別墅設計圖,帶車庫
占地:80平方米
新中式風格二層住宅設計圖,農村自建房不土氣
占地:144.5平方米
二層小別墅設計方案圖,平頂設計帶cad施工圖和外觀效果圖
占地:147平方米
帶堂屋設計一層三合院設計圖,白墻黛瓦古韻悠悠,比高層舒服接
占地:179.37平方米
推薦:10套新農村自建房設計圖,2026年最新設計
閱讀次數:4825737次
100套鄉村別墅圖片大全,2026年最新設計
閱讀次數:2492203次
6款農村蓋一層平房的設計圖,10萬元就能建起來
閱讀次數:1852637次
這11個一層農村自建房別墅火爆了朋友圈!我最喜歡戶型十!你呢
閱讀次數:750268次
農村6萬元建一層小別墅圖,你敢相信嗎
閱讀次數:567686次
農村5萬塊就能自建房,6套普通房子設計圖分享,你沒看錯!
閱讀次數:419410次
8套農村漂亮三間平房圖片,非常適合在農村修建!
閱讀次數:411197次
農村自建房化糞池怎么做?附方案及施工過程
閱讀次數:391783次
農村一層三間平房設計圖,告別土氣養老房,讓人忍不住點贊
閱讀次數:350581次
新農村二層樓房圖片造價12萬,挑一套回家建房吧!
閱讀次數:349126次
