
|
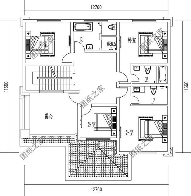
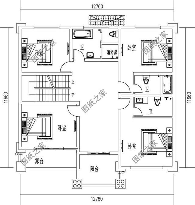
年底了,你是不是還被城里商品房高昂的房貸壓迫著。看著回鄉建房的親戚朋友們,心里不羨慕那是假的。老家有地,山好水好,還是自己長大成人的地方。在農村建房,其實費用并沒有想象中那么高昂。相比于在城里買房,回鄉自己建房其實要更為實惠,好的設計更能給您省錢。不信您瞧,下面小編要給您介紹三款農村別墅設計150平四層圖,外觀設計和內部布局都是精心之作,一起來看看吧。 第一款:高檔四層豪華別墅設計圖以及戶型圖,經典歐式設計![]() ![]() ![]() 鄉村高檔四層豪華別墅,一層不帶餐廳廚房,餐廳廚房設計到了三層,更適合四層布局,氣派豪華。由于占地面積不大,只能加層高,才能滿足家庭所有成員的需求。落地窗和多個窗戶設計,優化室內的采光和通風,不會讓室內顯得陰暗擁擠。除了必要的生活功能空間外,該戶型還設有了健身房、娛樂室、KTV室等休閑娛樂功能,生活之余增加休閑活動。 占地面積:11.8m*14.1m,147平方米左右; 建筑層高:四層; 建筑高度:16.05米(含屋頂); 設計功能: 一層戶型:大廳、客廳、臥室(帶衛生間)、KTV(帶衛生間)、過道、衛生間、娛樂室; 二層戶型:客廳上空、客廳、臥室(帶衛生間)x3、衣帽間、陽臺; 三層戶型:客廳、餐廳、廚房、臥室(帶衛生間衣帽間)、臥室(帶衣帽間)、臥室、衛生間、露臺; 四層戶型:客廳、娛樂室、健身房、衛生間、露臺; ![]() ![]() ![]() ![]() 第二款:農村自建四層別墅設計圖以及戶型圖,復式挑空設計![]() 鄉村高端四層別墅樓,二三層挑空戶型,布局合理舒適,造型經典大氣!建筑為歐式別墅,大門處配兩根方形的,外墻面裝飾材料很簡單,白色真石漆,還有一些構件,配大窗加強采光性和氣派性。屋面用藍色瓦片裝飾。面和側面各配一扇大窗,客廳挑空設計配弧形樓梯,挑空的客廳處更加大氣且采光好! 占地面積:11.26m*14.76m,148.992平方米左右; 建筑層高:四層; 建筑高度:163.975米(含屋頂); 功能: 一層戶型:土灶房、臥室、衛生間、車庫; 二層戶型:客廳、廚房、餐廳、臥室(帶衛生間)、臥室、衛生間、陽臺; 三層戶型:客廳上空、客廳、臥室(帶衛生間)、臥室x2、衛生間、陽臺; 四層戶型:客廳、娛樂區、臥室(帶衛生間)、臥室x2、衛生間、露臺; ![]() ![]() ![]() ![]() 第三款:新農村四層房屋設計圖以及戶型圖,氣派時尚![]() ![]() ![]() 適合農村自建,外觀高端大氣,外觀的歐式配件裝飾的華麗,彰顯出主人的身份和品味。一層為生活區,二三層為休息區,四層為休閑娛樂區。這樣的房子往村里面一建,肯定就是全村最豪華、最漂亮的,主體造價40多萬,較之于城里面住宅的價格,這個造價真的不算高 占地面積:12.76m*11.66m,150平方米左右; 建筑層高:四層; 建筑高度:15.53米(含屋頂); 設計功能: 一層戶型:堂屋、客廳、廚房、餐廳、臥室(帶衛生間)、衛生間; 二層戶型:臥室(帶衛生間)x2、臥室x2、淋浴房、衛生間、陽臺、露臺; 三層戶型:臥室(帶衛生間)x2、臥室x2、淋浴房、衛生間、露臺; 四層戶型:棋牌室、健身區、衛生間、茶室、露臺; ![]() ![]() ![]() ![]() 今天小編推薦的農村自建150平四層自建房就到這里了,有喜歡的就分享給家人看看吧!
圖紙之家-專注農村別墅/自建房設計18年,集合國內200余位經驗豐富的設計師,被評為口碑最好的農村建筑設計公司! |

新中式三層別墅設計圖紙(含效果圖),110平農村自建房施工圖推
占地:110平方米
歐式獨棟二層小別墅設計圖,客廳中空,占地126平米
占地:120平方米
120平方米農村一層平房別墅設計圖紙,含外觀效果圖
占地:125平方米
簡潔大氣140平方三層房子設計圖,帶車庫戶型極佳
占地:140平方米
鄉村三層別墅施工圖紙帶效果圖,田園別墅設計圖紙推薦
占地:178平方米
150平二層別墅房屋設計圖,現代風格,造型精致
占地:150平方米
經典20萬左右二層別墅設計圖紙,造型頗具設計感的小別墅
占地:多戶型可選
農村五間房子設計圖,大戶型別墅設計圖推薦
占地:240平方米
最新款二層鄉下別墅設計圖,新中式風格,24萬建好主體
占地:150.94平方米
帶柴火房農村一層自建房設計圖,戶型布局接地氣
占地:126.29平方米
經濟實用二層農村自建房設計圖,新中式風格12x11米
占地:114平方米
新中式徽派帶露臺別墅設計圖,構思精巧,自然得體
占地:124.82平方米
面寬14.5米三層獨棟別墅設計圖,經典設計,大氣之作
占地:123.85平方米
農村25萬別墅款式二層自建房設計圖,外觀簡約大氣
占地:多種戶型
四層別墅豪宅外觀效果圖及全套施工圖,高端歐式風格
占地:176.97平方米
新農村田園風格兩層半別墅設計圖,外觀造型非常漂亮
占地:147.8平方米
二層歐式別墅設計圖,挑空客廳+柴火灶,12.5米乘12米
占地:131.25平方米
170平米自建三層房屋別墅設計圖紙及效果圖
占地:170平米
320平方米高端農村帶車庫四合院別墅設計圖,徽派韻味十足
占地:320.89平方米
最美中式農村別墅二層三間的房子圖,帶土灶房,娛樂室,大露臺
占地:180平方米
推薦:10套新農村自建房設計圖,2026年最新設計
閱讀次數:4825737次
100套鄉村別墅圖片大全,2026年最新設計
閱讀次數:2492203次
6款農村蓋一層平房的設計圖,10萬元就能建起來
閱讀次數:1852637次
這11個一層農村自建房別墅火爆了朋友圈!我最喜歡戶型十!你呢
閱讀次數:750268次
農村6萬元建一層小別墅圖,你敢相信嗎
閱讀次數:567686次
農村5萬塊就能自建房,6套普通房子設計圖分享,你沒看錯!
閱讀次數:419410次
8套農村漂亮三間平房圖片,非常適合在農村修建!
閱讀次數:411197次
農村自建房化糞池怎么做?附方案及施工過程
閱讀次數:391783次
農村一層三間平房設計圖,告別土氣養老房,讓人忍不住點贊
閱讀次數:350581次
新農村二層樓房圖片造價12萬,挑一套回家建房吧!
閱讀次數:349126次
