
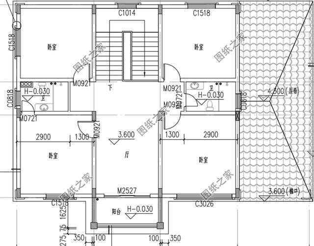
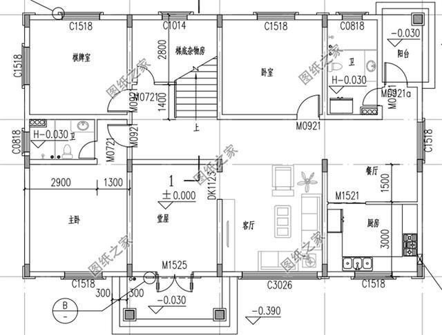
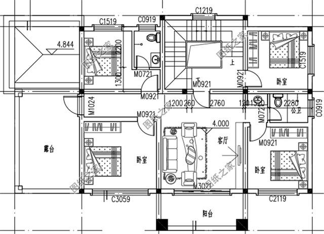
第一款:農村三間兩層樓房設計圖本方案為農村三間兩層 ![]() 占地面積:12.54m*11.04m,138平方米左右; 建筑層高:二層; 建筑高度:9.77米(含屋頂); ![]() ![]() 設計功能: 一層設計:門廳、客廳、餐廳、廚房、衛生間、洗衣間、臥室x2 二層設計:客廳(起居室)、臥室x3、書房、衛生間、露臺 第二款:農村二層樓簡單大氣的樓房設計圖紙農村二層樓簡單大氣的樓房設計圖紙,帶車庫和露臺,它結構比較簡單,時尚又實惠。外觀上屋頂采用藍色瓦,主墻外面采用黃色面磚搭配米白色欄桿,色彩明亮,簡單大氣。 ![]() 占地面積:16.0m*11.6m,占地面積156平方米左右; 建筑層高:二層; 建筑高度:9.8米(含屋頂); ![]() ![]() 設計功能: 一層戶型:客廳、餐廳、廚房、衛生間、臥室、車庫、伙房、雜物間; 二層戶型:客廳、臥室(帶衛生間)、臥室x3、衛生間、陽臺、大露臺; 第三款:農村兩層自建房設計圖農村兩層自建房設計圖,本戶型為中式鄉村別墅風格,灰色的屋頂和咖色墻體呼應對比,外觀干凈優美,房子的大小剛剛好,結構緊湊實用,采光效果良好。 ![]() 占地面積:15.2m*11.0m,160平方米左右; 建筑層高:二層; 建筑高度:9.8米(含屋頂); ![]() ![]() 設計功能: 一層戶型:客廳、餐廳、廚房、衛生間、主臥(帶衛生間)、臥室、棋牌室; 二層戶型:休閑廳、主臥(帶衛生間)、臥室x3、衛生間、陽臺; 看完了進深11米左右農村房屋戶型圖,哪款更適合你們的宅基地呢?
圖紙之家-專注農村別墅/自建房設計18年,集合國內200余位經驗豐富的設計師,被評為口碑最好的農村建筑設計公司! |

100平二層精致小別墅房屋設計圖,外觀精致、漂亮
占地:100平方米
新農村兩層樓房設計圖,占地110平米,戶型簡單實用
占地:110平方米
兩層半雙拼別墅設計方案,超大露臺+歐式風格,好設計別錯過!
占地:175.8平方米
農村40萬房子圖片外觀設計效果圖,帶地下室,外觀時尚大氣
占地:110平方米
造價65萬左右的三層歐式別墅房屋設計施工CAD圖紙及效果圖
占地:178平方米
農村15萬元二層小樓設計圖,外觀簡潔、樸素,造價低
占地:138平方米
經典四合院別墅設計圖,復式挑空客廳讓四合院更高端
占地:175平方米左右
新農村四層房屋設計圖紙,高端大氣,占地150平方米
占地:150平方米
豪華農村帶露臺三層樓房別墅設計圖紙,占地200平方米左右
占地:200平方米
農村二層住宅樓圖紙及效果圖,帶地下室,戶型好
占地:220平方米
兩層樓房設計圖,兩層新農村樓房圖紙,外觀典雅古樸
占地:140平方米
農村二層帶車庫四合院別墅設計圖,新中式外觀圖片,戶型實用方
占地:247平方米
地中海風格二層別墅房屋設計圖,帶外觀效果圖
占地:150平方米
農村10萬元一層小別墅平房設計圖大全,含效果圖
占地:120平方米
可以傳家的新中式二層別墅,經典耐看,再過幾十年也不過時
占地:146.81平方米
100平新農村三層復式房屋別墅設計圖紙,造價30萬左右
占地:106平方米
帶地下室三層豪華大氣新農村房屋設計圖,占地150平米左右
占地:150平方米
新農村小開間三層樓房設計圖,占地100平米左右
占地:多種戶型
農村二層L戶型農村別墅!設計圖簡約時尚又大氣,住著超舒適
占地:170.55平方米
農村18萬元二層小樓圖紙,漂亮實用的農村二層樓房設計圖
占地:140平方米
推薦:10套新農村自建房設計圖,2026年最新設計
閱讀次數:4825737次
100套鄉村別墅圖片大全,2026年最新設計
閱讀次數:2492203次
6款農村蓋一層平房的設計圖,10萬元就能建起來
閱讀次數:1852637次
這11個一層農村自建房別墅火爆了朋友圈!我最喜歡戶型十!你呢
閱讀次數:750268次
農村6萬元建一層小別墅圖,你敢相信嗎
閱讀次數:567686次
農村5萬塊就能自建房,6套普通房子設計圖分享,你沒看錯!
閱讀次數:419410次
8套農村漂亮三間平房圖片,非常適合在農村修建!
閱讀次數:411197次
農村自建房化糞池怎么做?附方案及施工過程
閱讀次數:391783次
農村一層三間平房設計圖,告別土氣養老房,讓人忍不住點贊
閱讀次數:350581次
新農村二層樓房圖片造價12萬,挑一套回家建房吧!
閱讀次數:349126次
