
|
有道是“城里一套房,農村一個院”,有錢了先在城里買一棟房子,再去村里蓋一棟房子,用來生活最舒服了。而且村里空氣清新環境自然,自己動手種菜種瓜果,很省心。 修房子也是為了養老使用,現在家里只有父母在住,老人家腿腳不便,要是一直住在原來的舊房子里,勢必會起居受到困難,若是蓋一棟新房,方便家人的同時住的也舒服。 今天分享兩款農村簡約三層自建別墅設計圖紙 第一套
該戶型外觀簡潔大方,平面布局緊湊,經濟實用,外墻色彩明朗溫馨,空間利用率高,造價適中,施工簡單,并富有新農村時代氣息。三樓上設有三間房間,可以自定義空間。 層數: 三層 結構形式: 框架結構 主體造價:25-30萬 開間:10.8米進深: 12米(帶門柱13.2米) 占地面積:142平方米 總建筑面積:370平方米 平面布局圖:
一層:客廳、臥室、廚房、餐廳、儲藏室、衛生間
二層:起居室、書房、3臥室、陽臺、衛生間
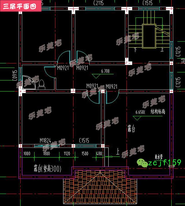
三層:3房間、衛生間、露臺 第二套
設計時尚大氣,融入拱形元素,線條優美,多面體結構設計帶有多扇窗戶,室內采光效果佳,每層主臥都帶內衛,二樓有陽臺,三樓有大露臺,休閑活動空間充足。空間設計上,室內經過合理分區,功能全面,是農村別墅建造的理想設計。 層數: 三層 結構形式: 磚混結構 主體造價: 25-30萬 開間: 11.2米 進深:9.9米(帶門柱11.7米) 占地面積: 112.88平方米 建筑面積:318.6平方米 平面圖展示:
一 層: 門廳、廚房、餐廳、衛生間、客廳、主臥室(衣帽間、衛生間
二 層: 兒童房、客廳、衛生間、陽臺、書房、主臥室(衛生間)、臥室
三 層: 主臥室(衛生間、陽臺)、書房、兒童房、露臺花園、衛生間 圖紙之家-專注農村別墅/自建房設計18年,集合國內200余位經驗豐富的設計師,被評為口碑最好的農村建筑設計公司! |

帶小院七字形一層自建房戶型設計圖,平屋頂圖紙
占地:201.08平方米
農村小別墅一層設計圖紙,外觀漂亮極了,130和160兩個戶型
占地:多種戶型可選
鄉村典型自建房中式二層四合院別墅設計圖,左右對稱設計
占地:430平方米
二層新中式別墅設計施工圖,廚房在配房,占地140平米
占地:141平方米
豪華大氣三層農村自建房設計圖,經典大氣,百看不厭,新中式風
占地:141.75平方米
中式二層對稱別墅設計圖,帶地下室設計,整體造價經濟
占地:171.6平方米
12x13米豪華三層農村別墅設計圖,宅基地上的貴族人生
占地:156平方米
三層別墅設計施工圖紙(含外觀效果圖)帶大露臺
占地:160平方米
二層農村兄弟雙拼別墅設計圖,一墻之隔互不干擾,鄰居看了都喜
占地:164.24平方米
高端豪華三層別墅住宅設計方案圖,歐式外觀風格
占地:170平方米
一層農村三合院平房設計圖,可以倆兄弟或和父母兒女一起住
占地:202.79平方米
農村三層雙拼別墅戶型圖及全套施工圖紙,帶書房,帶衣帽間
占地:260平方米
占地200平米時尚現代三層農村別墅設計圖,簡簡單單百看不厭
占地:202.95平方米
農村自建房三間設計圖,花錢少效果好12米乘9米,經濟適用性價比
占地:108.9平方米
170平方米農村二層小別墅設計圖及效果圖
占地:170平方米
占地180平方米二層鄉村小洋樓設計戶型圖及圖紙,外觀華麗
占地:180平方米
農村三間兩層樓房設計圖,帶車庫,戶型簡單實用
占地:140平方米
一層帶閣樓農村別墅設計圖,多得一層可變空間,太值了!
占地:165.89平方米
造價30萬左右的三層樓房設計圖,占地120平米左右
占地:120平方米
2026新中式農村三層別墅圖,外觀漂亮,看一眼就愛上
占地:240平方米
推薦:10套新農村自建房設計圖,2026年最新設計
閱讀次數:4825737次
100套鄉村別墅圖片大全,2026年最新設計
閱讀次數:2492203次
6款農村蓋一層平房的設計圖,10萬元就能建起來
閱讀次數:1852637次
這11個一層農村自建房別墅火爆了朋友圈!我最喜歡戶型十!你呢
閱讀次數:750268次
農村6萬元建一層小別墅圖,你敢相信嗎
閱讀次數:567686次
農村5萬塊就能自建房,6套普通房子設計圖分享,你沒看錯!
閱讀次數:419410次
8套農村漂亮三間平房圖片,非常適合在農村修建!
閱讀次數:411197次
農村自建房化糞池怎么做?附方案及施工過程
閱讀次數:391783次
農村一層三間平房設計圖,告別土氣養老房,讓人忍不住點贊
閱讀次數:350581次
新農村二層樓房圖片造價12萬,挑一套回家建房吧!
閱讀次數:349126次
