
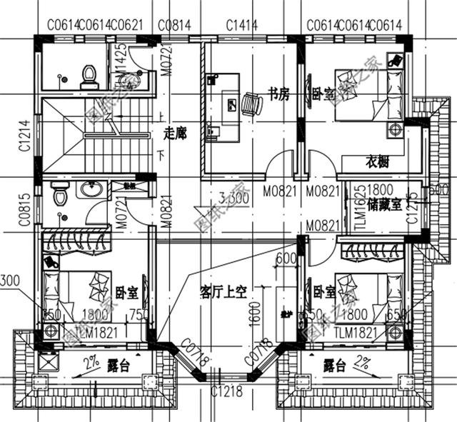
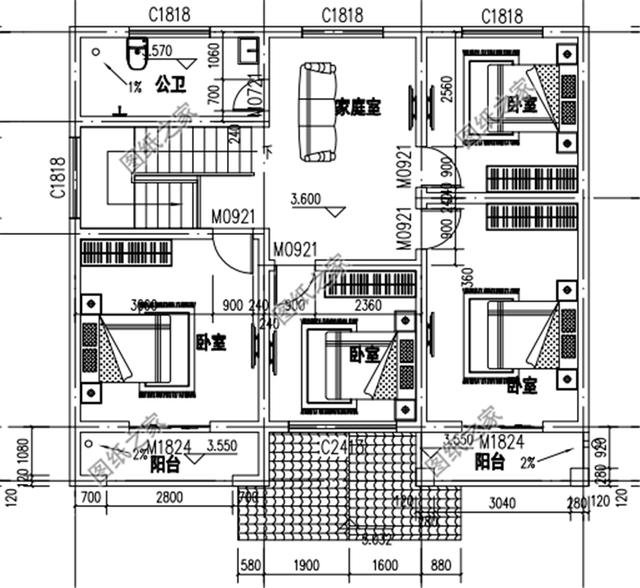
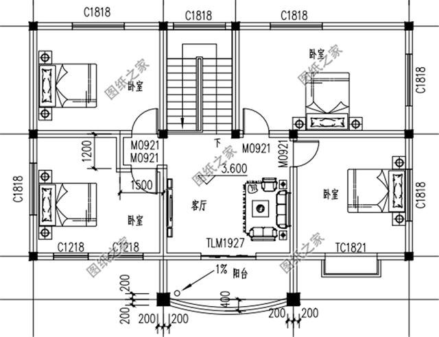
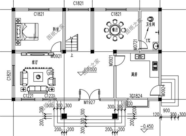
建房圖一:新農村兩層樓房設計圖,占地110平![]() 新農村兩層樓房設計圖,占地110平米,戶型簡單實用。外觀時尚大方,層次分明,大坡度房屋頂!讓整體看起來顯得更加高端。 占地面積:13.0m*9.5m,110平方米左右; 建筑層高:二層; 建筑高度:9.8米(含屋頂); ![]() ![]() 設計功能: 一層戶型:客廳、餐廳、廚房、衛生間、臥室; 二層戶型:客廳、臥室×4、陽臺; 建房圖二:110平左右農村復式二層小樓設計圖![]() 本方案為110平左右農村復式二層小樓設計圖,外觀效果圖非常受歡迎,戶型經典、合理。 占地面積:11.2m*10m,占地112平方米左右; 建筑層高:二層; 建筑高度:8.93米(含屋頂); ![]() ![]() 設計功能: 一層戶型:門廳、客廳、餐廳、廚房、儲藏室、臥室(帶衣帽間)、衛生間; 二層戶型:客廳上空、主臥(帶衛生間)、臥室x2、儲藏間、衛生間、露臺x2; 建房圖三:110平米新農村實用現代二層別墅設計圖紙![]() 110平方米新農村實用現代的二層建筑設計圖紙帶外觀圖,別墅的外觀主要用米黃色和乳白色面磚裝飾,二層陽臺處設計有葫蘆 占地面積:11.3m*10m,110平方米左右; 建筑層高:二層; 建筑高度:9.9米(含屋頂); ![]() ![]() 設計功能: 一層戶型:客廳、餐廳 、廚房、臥室、儲藏室、衛生間; 二層戶型:家庭室、臥室x4、書房、衛生間、陽臺; 以上就是幾款農村110平米的別墅設計圖,
圖紙之家-專注農村別墅/自建房設計18年,集合國內200余位經驗豐富的設計師,被評為口碑最好的農村建筑設計公司! |

漂亮實用的新農村二層小樓圖,造價20萬左右,超大景觀露臺
占地:130平方米
新中式帶露臺30萬左右農村三層別墅,客廳中空
占地:110平方米
120平方米新農村四層房屋設計圖紙和效果圖
占地:120平方米
三層雙拼別墅效果圖及戶型設計圖,占地150平米
占地:154.8平方米
農村三層自建房子圖紙設計方案,開間11米左右
占地:151.96平方米
外觀造型對稱的二層別墅設計圖,老虎窗+挑空客廳
占地:175.2平方米
二層簡歐別墅設計圖挑空客廳+旋轉樓梯,看過的人都說氣派
占地:154.699平方米
經濟、不張揚!簡單二層別墅設計圖,農村建房直接抄作業
占地:198.58平方米
不帶廚房餐廳的二層別墅設計圖,農村建房很多人都這樣做
占地:124平方米左右
最新設計的三層農村別墅圖紙,帶車庫,帶露臺,占地150平米左右
占地:150平方米
帶電梯高端四層別墅房屋設計圖,外觀圖大氣、上檔次
占地:220平方米
新中式別墅一層自建房設計,戶型實用緊湊
占地:170.54平方米
獨棟別墅設計戶型圖帶外觀效果圖,雙向樓梯設計
占地:155平方米
面寬15米大氣的農村二層復式戶型別墅設計圖紙及外觀圖片
占地:173.28平方米
新農村私人別墅建筑設計施工圖,全套別墅設計圖紙
占地:多種戶型
二層自建房子最新款設計圖,平屋頂簡約經濟,美觀不失大方。
占地:115.64平方米
農村自建四層百萬豪宅別墅設計圖,客廳中空
占地:170平方米
一層農村自建房別墅設計圖,簡潔時尚的設計,給父母建養老房
占地:144平方米
農村三間三層半別墅設計圖,舒適寬敞時尚經濟,居住生活方便舒
占地:168.29平方米
最漂亮五間一層自建別墅設計圖,布局實用顏值高!
占地:多戶型可選
推薦:10套新農村自建房設計圖,2026年最新設計
閱讀次數:4825737次
100套鄉村別墅圖片大全,2026年最新設計
閱讀次數:2492203次
6款農村蓋一層平房的設計圖,10萬元就能建起來
閱讀次數:1852637次
這11個一層農村自建房別墅火爆了朋友圈!我最喜歡戶型十!你呢
閱讀次數:750268次
農村6萬元建一層小別墅圖,你敢相信嗎
閱讀次數:567686次
農村5萬塊就能自建房,6套普通房子設計圖分享,你沒看錯!
閱讀次數:419410次
8套農村漂亮三間平房圖片,非常適合在農村修建!
閱讀次數:411197次
農村自建房化糞池怎么做?附方案及施工過程
閱讀次數:391783次
農村一層三間平房設計圖,告別土氣養老房,讓人忍不住點贊
閱讀次數:350581次
新農村二層樓房圖片造價12萬,挑一套回家建房吧!
閱讀次數:349126次
