
|
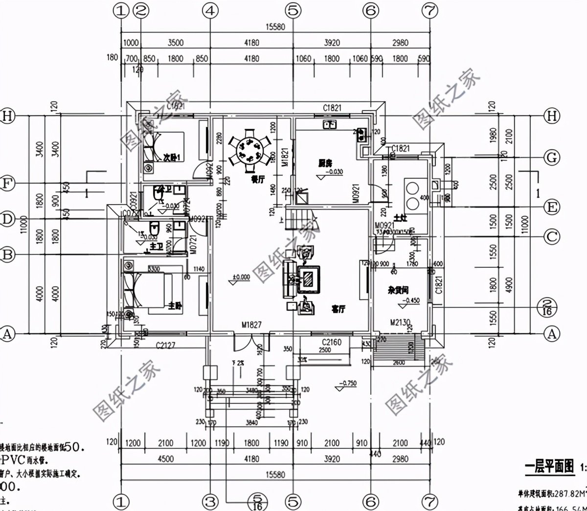
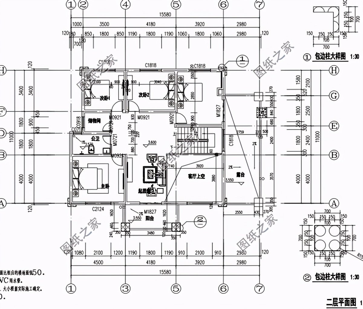
在農村建房子是大事,但是在老一輩子眼里比較喜歡歐式風格的,但是年輕人不一樣,大多數都是喜歡時尚簡約風格的,所以今天小編為了滿足廣大朋友的需求,分享的這三款最新款二層別墅設計圖,有歐式風格也有簡約現代風格,外觀大氣,內部布局當然也不遜色,非常合理,功能齊全,要建房的朋友們可以參考。 款式一:農村歐式二層別墅設計圖,占地100平米左右,造價20來萬圖紙介紹:這款歐式二層小別墅占地100平米左右,外觀大氣,多窗多陽臺的設計,保證了室內的采光和通風;室內布局功能齊全,二樓帶棋牌室,共有四間臥室,足夠一家人居住。 占地面積:11.1m*10.5m,100平方米左右; 建筑層高:二層; 建筑高度:9.76米(含屋頂); 設計功能: 一層戶型:客廳、餐廳、廚房、衛生間、主臥(帶衛生間); 二層戶型:主臥(帶衛生間)、臥室x2、棋牌室、衛生間、陽臺; ![]() ![]() ![]() ![]() 款式二:農村現代二層別墅設計圖,占地110平米圖紙介紹:本戶型占地面積110平米,戶型方正不大不小,外觀的設計讓人一眼就能感受到別墅的豪華程度,二層陽臺處設計有葫蘆蹲,可以起到很好的防護作用,同時也美觀。 占地面積:11.3m*10m,110平方米左右; 建筑層高:二層; 建筑高度:9.9米(含屋頂); 設計功能: 一層戶型:客廳、餐廳 、廚房、臥室、儲藏室、衛生間; 二層戶型:家庭室、臥室x4、書房、衛生間、陽臺; ![]() ![]() ![]() ![]() 款式三:歐式二層別墅設計圖,占地166平米,帶車庫設計圖紙介紹:本戶型占地166平米左右,帶車庫設計,超大的落地窗設計增強了室內采光;如果不需要車庫,可以當做雜貨間;一樓世寬大的中空客廳,二層帶大露臺和陽臺設計,可以滿足不同的需要。 占地面積:15.6m*11m,166平方米; 建筑層高:二層; 建筑高度:10.4米(含屋頂); 設計功能: 一層戶型:次臥,公衛,主臥(帶衛生間),客廳,廚房,餐廳,土灶,雜貨間(或車庫); 二層戶型: 次臥X3,儲物間,主臥,公衛,起居室,陽臺,客廳上空,露臺; ![]() ![]() ![]() ![]() 這三款別墅兩種風格都有,喜歡哪一種風格就趕快收藏哪一款吧。
圖紙之家-專注農村別墅/自建房設計18年,集合國內200余位經驗豐富的設計師,被評為口碑最好的農村建筑設計公司! |

農村一層中式別墅設計圖,經典大氣,布局舒適,面寬20米
占地:192.92平方米
農村新款二層中式別墅設計圖效果圖,帶堂屋設計
占地:144平方米
帶架空層車庫/地下室自建一層別墅設計圖,隔潮又能儲物
占地:91.32平方米
戶型獨特的、二層臥室挑高的別墅房屋設計圖,外觀簡歐風格
占地:250平方米
120平面三層鄉村樓房設計圖及效果圖,歐式風格
占地:120平方米
一層新中式三合院設計,建好城里大平層都不香了
占地:294.12平方米
四間兩層別墅房屋設計圖,外觀效果圖好看
占地:235平方米
農村一層平房別墅設計圖,18米乘9米,實實在在的好戶型
占地:162平方米
占地百平農村三層戶型方案,簡約實用,獨具特色,理想新居等你
占地:105.61平方米
農村四層樓房設計圖及外觀效果圖,造價60萬左右
占地:163.84平方米
三間三層樓房設計圖紙,復試的設計,漂亮的一塌糊涂
占地:175平方米
200平方米穩重大氣三層雙拼別墅建筑設計圖紙,含效果圖19.04米
占地:200平方米
250平方米農村三層別墅設計圖紙及效果圖大全,18.3x15米
占地:247平方米
一層中式仿古三合院設計圖,實用又大氣,百年不過時
占地:366.67平方米
辦公居住共用的一層別墅設計圖,簡約優雅,精致生活新體驗
占地:265.3平方米
80平方米新農村三層房屋設計圖,新農村住宅圖紙精選
占地:80平方米
16米乘11米接地氣農村二層自建房圖,帶配房設計
占地:149.8平方米
2款現代風格農村兩層別墅設計圖,時尚漂亮
占地:多戶型可選
時尚創意型二層小別墅設計圖,占地面積110平方米,外觀清新典雅
占地:110平方米
140平中式徽派一層別墅設計圖,一層照樣建這樣漂亮
占地:140平方米
推薦:10套新農村自建房設計圖,2026年最新設計
閱讀次數:4825737次
100套鄉村別墅圖片大全,2026年最新設計
閱讀次數:2492203次
6款農村蓋一層平房的設計圖,10萬元就能建起來
閱讀次數:1852637次
這11個一層農村自建房別墅火爆了朋友圈!我最喜歡戶型十!你呢
閱讀次數:750268次
農村6萬元建一層小別墅圖,你敢相信嗎
閱讀次數:567686次
農村5萬塊就能自建房,6套普通房子設計圖分享,你沒看錯!
閱讀次數:419410次
8套農村漂亮三間平房圖片,非常適合在農村修建!
閱讀次數:411197次
農村自建房化糞池怎么做?附方案及施工過程
閱讀次數:391783次
農村一層三間平房設計圖,告別土氣養老房,讓人忍不住點贊
閱讀次數:350581次
新農村二層樓房圖片造價12萬,挑一套回家建房吧!
閱讀次數:349126次
