
|
小戶型怎么蓋別墅好看?很多農村人覺得自己家宅基地小,占地面積小,不知道怎么建造別墅好看,在網上找的圖紙挑來挑去也挑不出自己喜歡的款式,別擔心,小編今天就給大家帶來了五款小宅基地二層小別墅設計圖,占地雖然只有90平米,但是這樣的房子蓋出來,放眼望去也是村里的一道亮麗的風景線。 戶型1:農村15萬元二層樓房設計圖紙,造價低,簡潔好看這個戶型共有4間臥室,最實用的小房子,雖然戶型面積不大,但是空間利用率很高,造價也低,外觀看上去簡潔大方,非常好看。 占地面積:10.5m*8.0m,88平方米左右; 建筑層高:二層; 建筑高度:9.6米(含屋頂); 設計功能: 一層戶型:客廳、餐廳、廚房、衛生間、臥室、儲藏間; 二層戶型:臥室×3、衛生間、書房、陽臺;
戶型2:新農村二層別墅設計圖紙,精致小巧,占地90平米左右這款戶型占地90平米,造價15萬左右,簡約大方,經濟實用;對于大多數農村人來說,經濟實用型的別墅比起歐式風格的豪華更耐看。 占地面積:9.8m*9.3m,90平方米左右; 建筑層高:二層; 建筑高度:10.8米; 設計功能: 一層戶型:客廳、餐廳、廚房、臥室、衛生間、儲藏間; 二層戶型:客廳、臥室x2、衛生間、書房、陽臺;
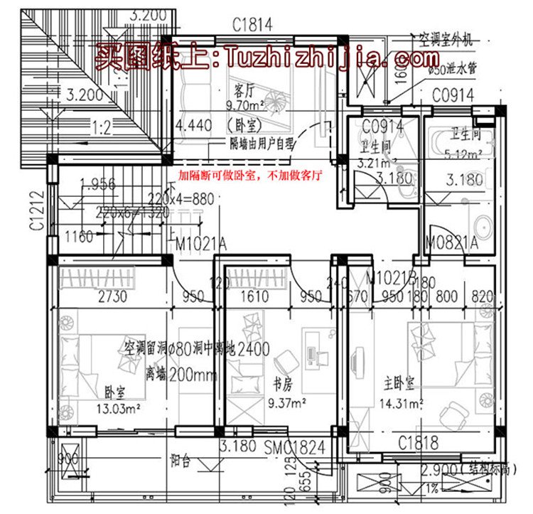
戶型3:新農村二層自建房設計圖,含全套施工圖紙本戶型簡約大方,遠遠望去非常的干凈亮眼,造價低,施工簡單,非常符合農村人審美。 建筑層數:二層; 建筑占地面積:10.4m*9.1m=90平方米; 建筑面積:175平方米 造價預算:12萬; 建筑高度:8米(含屋頂)坡屋頂; 設計功能: 一層:客廳、餐廳、廚房、主臥(帶衛生間)、儲藏間、衛生間、雜物室(樓梯下); 二層:客廳(如圖所示,加隔斷可做臥室)、主臥(帶衛生間)、臥室、書房、衛生間、陽臺;
戶型4:農村二層平屋頂小洋樓這款戶型平屋頂,戶型設計也非常合理,屋頂還有大露臺,休閑活動空間非常充足,露臺還可以用來晾東西,非常實用。 占地面積:8.5m*10.3m,90平方米左右; 建筑層高:二層; 建筑高度:7.5米(含屋頂); 設計功能: 一層戶型:客廳、餐廳、廚房、老人房(帶衛生間)、衛生間; 二層戶型:臥室x3、衛生間、陽臺x2;
戶型5::農村二層房屋設計圖紙,占地90平米左右這款戶型簡約大方,米黃色的墻面給人一種非常溫馨的感覺,搭配深棕色,非常氣派;內部結構設計也非常合理。 建筑層數:二層; 建筑占地面積為:10.7m*7.9m=90平方米; 預算造價:13萬 建筑高度:10.5m(含屋頂);坡屋頂; 設計功能: 一層:門廊、客廳、臥室兩間、衛生間、餐廳; 二層:陽臺、客廳、兒童房/書房、臥室兩間、衛生間、棋牌室;
看了這幾款節簡約大方的90平米2層小別墅設計圖紙,還在擔心宅基地小嗎?
圖紙之家-專注農村別墅/自建房設計18年,集合國內200余位經驗豐富的設計師,被評為口碑最好的農村建筑設計公司! |

3款簡單舒適二層別墅設計圖,低調配色,造型簡單大氣
占地:多戶型可選
210平米新農村自建二層施工圖紙,預留電梯位,美觀大氣舒適實用
占地:208.5平方米
外觀看起來高端、奢華的二層小別墅設計圖,推薦
占地:130平方米
人字坡紅磚一層別墅設計圖,簡約低調超實用,這樣的房子人人能
占地:136.51平方米
爆款農村兄弟雙拼自建房設計圖,占地不大舒適宜居
占地:147.2平方米
中式古風別墅設計圖,一層三合院設計,經濟舒適,時尚與傳統的
占地:275.7平方米
農村二層住宅別墅設計圖,貼心實用,12.8米乘14.5米
占地:156.16平方米
高端三層新中式農村別墅設計圖,仿合院布局,外觀霸氣
占地:133.64平方米
13米開間的獨棟經濟型二層小別墅房屋設計圖,現代簡約
占地:150.39平方米
135平方米新農村三層別墅設計圖紙,外觀效果圖很漂亮
占地:134平方米
帶堂屋設計一層三合院設計圖,白墻黛瓦古韻悠悠,比高層舒服接
占地:179.37平方米
120平米二層別墅樓設計圖,簡約省錢也能建的漂亮
占地:121.74平方米
125平兩層別墅房屋設計圖,帶普通和復式兩個戶型
占地:125平方米
130平方米新農村三層房屋設計圖紙,外觀簡單大方
占地:130平方米
現代風平屋頂一層自建房設計,經濟時尚
占地:147.17平方米
二層簡歐風格自建房別墅戶型設計圖,造價26萬
占地:132.4平方米
180平方別墅房屋設計圖,外觀效果圖美觀
占地:180平方米
新式帶挑空客廳三層鄉村別墅設計圖,占地170平左右
占地:170平方米
農村20萬元二層小樓圖片及全套圖紙,外型美造價低
占地:多種戶型
130平方米別墅設計圖紙(含外觀效果圖,)三層別墅設計方案
占地:135平方米
推薦:10套新農村自建房設計圖,2026年最新設計
100套鄉村別墅圖片大全,2026年最新設計
閱讀次數:2492203次
6款農村蓋一層平房的設計圖,10萬元就能建起來
閱讀次數:1852637次
這11個一層農村自建房別墅火爆了朋友圈!我最喜歡戶型十!你呢
閱讀次數:750268次
農村6萬元建一層小別墅圖,你敢相信嗎
閱讀次數:567686次
農村5萬塊就能自建房,6套普通房子設計圖分享,你沒看錯!
閱讀次數:419410次
8套農村漂亮三間平房圖片,非常適合在農村修建!
閱讀次數:411197次
農村自建房化糞池怎么做?附方案及施工過程
閱讀次數:391783次
農村一層三間平房設計圖,告別土氣養老房,讓人忍不住點贊
閱讀次數:350581次
新農村二層樓房圖片造價12萬,挑一套回家建房吧!
閱讀次數:349126次
