
|
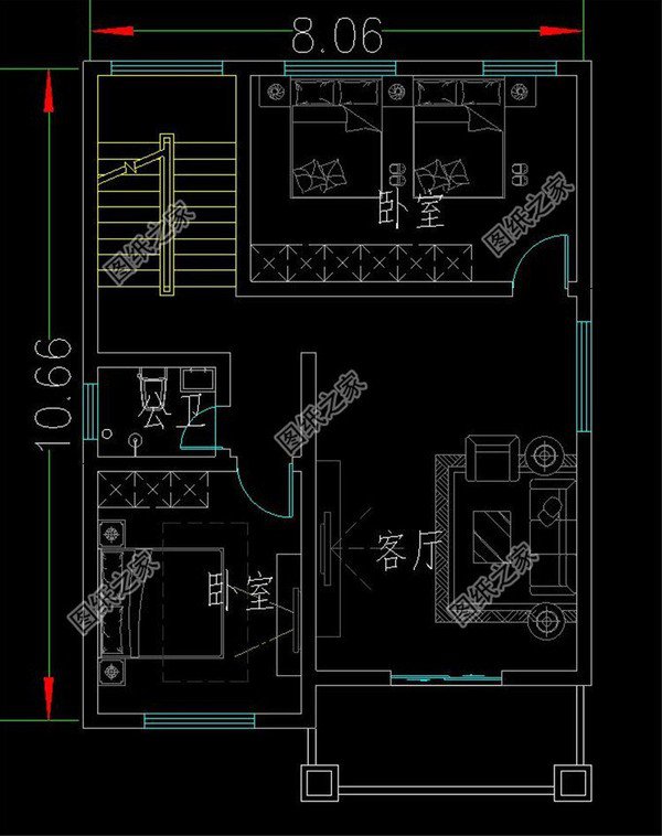
時至今天,選擇回到農村建房的人是越來越多。在外打工賺到錢后,選擇的不是在城里定居下來,而是回到家鄉去,建一棟好房子,陪伴在家人的身邊,這就是我們簡單的小幸福。今天給大家帶來面寬8米的二層和三層自建房設計圖以及戶型圖,不需要多大的地,也能在農村建好房。 第一款:開間8米的小戶型二層別墅設計圖以及戶型圖,帶露臺設計![]() 2開間自建房戶型圖,一層占地不到60平,難得的好戶型,建筑美觀造價經濟!外觀耐看大方,素雅大氣,沒有復雜的線腳裝飾,很適合農村自建,平面布局實用舒適,完全可以滿足四口之家的居住。建一棟自己滿意的別墅不容易,它既要好看,還要戶型實用,住的舒服,更為重要一點就是造價經濟。 占地面積:8.02m*8.21m,56.23平方米左右; 建筑層高:二層; 建筑高度:9.05米(含屋頂); 設計功能: 一層戶型:客廳、廚房、餐廳、臥室、衛生間; 二層戶型:臥室(帶衛生間)x2、陽臺 ![]() ![]() 第二款:農村新中式經濟二層小別墅設計圖以及戶型圖,小戶型的精致![]() 占地90平戶型方案,僅15萬!完美的融入了現代和中式設計,土黃色的外墻搭配著深褐色的窗框、屋檐,整體藝術感十足,讓別墅整體看起來大氣又不失美觀。一層空間寬敞,會客方便得多。隔斷合理,分區明確,各功能空間區域互不干擾;二樓有3間臥室,帶一個陽臺,整體布局功能齊全。 占地面積:7.6m*12.2m,89.3平方米左右; 建筑層高:二層; 建筑高度:9.813米(含屋頂); 設計功能: 一層戶型:客廳、廚房、餐廳、臥室、衛生間; 二層戶型:起居室、臥室x3、衛生間、陽臺 ![]() ![]() 第三款:占地90來平新農村自建房三層設計圖以及戶型圖,簡潔干練![]() 粉色與白色涂料墻體,沒有繁冗的裝飾。房間尺度設計適宜,空間利用率高,采用多窗設計,增加了室內的采光效果,營造出高品質的居住環境。又使用陽臺和柱相搭配,使這棟別墅美觀又吸睛。屋頂、露臺的高低變化勾勒出錯落有致的建筑形態,入戶堂屋,與餐廳之間有墻體隔開,防止開門見山;餐廳廚房相鄰,就餐方便。 占地面積:8.06m*10.66m,87.32平方米左右; 建筑層高:三層; 建筑高度:12.627米(含屋頂); 設計功能: 一層戶型:客廳(堂屋)、神龕、餐廳、廚房、臥室、衛生間; 二層戶型:客廳、臥室x2、衛生間、陽臺; 三層戶型:臥室x2、衛生間、露臺(帶涼亭) ![]() ![]() ![]() 第四款:農村三層兩開間小面寬別墅設計圖以及戶型圖,經典歐式風格![]() 95平方米小戶型自建房戶型圖,別墅外觀為歐式風格,外墻面裝飾用到黃色涂料,底部用到了咖啡色面磚,屋面處用藍色的瓦片鋪裝。迎面是一面隔斷墻,端正的堂屋對傳統農村百姓來說是必不可少的設計,是農村神龕和祖先神位的供放場所,餐廳與客廳之間無隔斷,空間更顯寬敞,超大的客廳社交區,上方做挑高設計。三樓南向的大露臺為室外休閑提供更多可能,放上一組戶外沙發,栽花種草、飼魚喝茶,好不愜意! 占地面積:8.25m*11.47m,94.61平方米左右; 建筑層高:三層; 建筑高度:12.448米(含屋頂); 設計功能: 一層戶型:堂屋、神位、客廳、餐廳、廚房、衛生間; 二層戶型:客廳挑空、小客廳、臥室(帶衛生間)、臥室、衛生間、陽臺; 三層戶型:臥室(帶書房、衣帽間、衛生間)、臥室(帶衛生間)、洗衣房、露臺 ![]() ![]() ![]() 今天小編推薦的面寬8米的二三層別墅設計圖就到這里了,有沒有喜歡的?每一款都有全套施工圖紙哦!
圖紙之家-專注農村別墅/自建房設計18年,集合國內200余位經驗豐富的設計師,被評為口碑最好的農村建筑設計公司! |

二層氣質現代小洋樓設計圖,堪比城市別墅,全村最美沒商量
占地:121.07
新農村二層帶露臺經濟型小別墅設計圖紙,含外觀效果圖
占地:120平方米
110平左右三間兩層農村別墅房屋設計圖,含外觀效果圖
占地:107平方米
開間20米雙拼別墅三層設計圖,兄弟合建省時省力又省心
占地:205.8平方米
倆兄弟蓋房子的雙拼設計圖,小宅基地設計方案
占地:151.91平方米
面寬13米二層新農村別墅自建房設計圖,功能實用,外觀大氣
占地:168.96平方米
農村三層半別墅設計圖及外觀效果圖,三層半樓房設計方案推薦
占地:100平方米
美式田園二層別墅設計方案圖,全套設計圖+效果圖
占地:235平方米
帶電梯的農村歐式雙拼三層豪宅別墅設計圖,樓梯電梯共用
占地:268.448平方米
農家中式小院一層三合院自建房,布局寬敞大氣又舒適
占地:186.07平方米
小面寬的農村簡單四層2建平屋頂別墅設計圖,農村自建房首選
占地:109.29平方米
3款簡單舒適二層別墅設計圖,低調配色,造型簡單大氣
占地:多戶型可選
中式一層仿古自建平房設計圖,灰墻青瓦,外觀古香古色
占地:168.48平方米
150平方米自建現代二層別墅施工設計圖帶外觀圖,15x10米
占地:多戶型可選
兩層半20多萬復式農村自建房設計圖,經典不過時戶型
占地:120平方米
90平方米新農村住宅設計二層小別墅設計圖紙11x9米
占地:90平方米
偏徽派風格民居三層農村住宅設計圖,白墻黛瓦的古雅簡潔
占地:101.01平方米
面寬13米二層鄉村自建別墅戶型圖,帶堂屋和露臺
占地:135.47平方米
農村三間三層半別墅設計圖,舒適寬敞時尚經濟,居住生活方便舒
占地:168.29平方米
預算20萬的農村三層房屋設計圖方案,帶外觀效果圖
占地:115平方米
推薦:10套新農村自建房設計圖,2026年最新設計
閱讀次數:4825737次
100套鄉村別墅圖片大全,2026年最新設計
閱讀次數:2492203次
6款農村蓋一層平房的設計圖,10萬元就能建起來
閱讀次數:1852637次
這11個一層農村自建房別墅火爆了朋友圈!我最喜歡戶型十!你呢
閱讀次數:750268次
農村6萬元建一層小別墅圖,你敢相信嗎
閱讀次數:567686次
農村5萬塊就能自建房,6套普通房子設計圖分享,你沒看錯!
閱讀次數:419410次
8套農村漂亮三間平房圖片,非常適合在農村修建!
閱讀次數:411197次
農村自建房化糞池怎么做?附方案及施工過程
閱讀次數:391783次
農村一層三間平房設計圖,告別土氣養老房,讓人忍不住點贊
閱讀次數:350581次
新農村二層樓房圖片造價12萬,挑一套回家建房吧!
閱讀次數:349126次
