
|
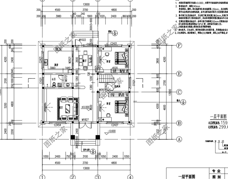
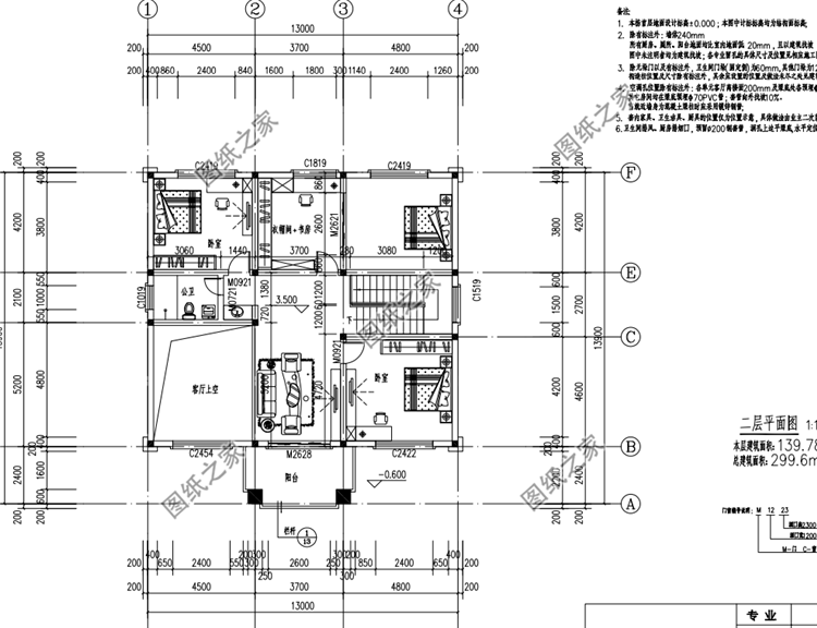
農村自建房越來越多,風格款式也越來越多,奢華大氣的、小巧精致的或者現代舒適的,但是不管什么樣的風格款式,只要一家人住著舒適就行。建房子要符合自己及家人的生活習慣,這樣住起來才不會有矛盾。今天給大家分享三款復式二層別墅設計圖,外觀大氣,布局實用,非常好的戶型。 款式一:農村二層別墅設計圖,占地120平米左右,歐式風格圖紙介紹:本戶型占地120平方米左右,歐式風格非常時尚,藍色坡屋頂的設計,搭配真石漆外墻使得別墅整體造型突出亮眼。占地方正,布局實用合理,多窗的設計,既保證了室內的采光又保證了室內的通風。 占地面積:12.8m*11.36m,123平方米左右; 建筑層高:二層; 建筑高度:9.48米(含屋頂); 建筑結構:磚混結構; 設計功能: 一層戶型:走廊、客廳、香堂、廚房、餐廳、臥室(帶衛生間)、臥室、衛生間; 二層戶型:客廳上空、臥室(帶衛生間書房衣帽間)、兒童房、臥室、衛生間、陽臺; ![]() ![]() ![]() ![]() 款式二:農村二層樓房設計圖,占地160平米,新中式風格設計圖紙介紹:這款二層樓房占地160平米左右,新中式風格外觀大氣,客廳中空設計。配色明亮簡潔非常現代化,整體外觀錯落有致,讓人看了就喜歡。 占地面積:13.0m*13.9m,160平方米左右; 建筑層高:二層; 建筑高度:10.17米(含屋頂); 設計功能: 一層戶型:客廳、餐廳、廚房、衛生間、臥室x2、儲藏間; 二層戶型:客廳上空、客廳、臥室x3、衣帽間、衛生間、陽臺; ![]() ![]() ![]() ![]() 款式三:農村二層樓房設計圖,簡歐風格,帶旋轉樓梯設計圖紙介紹:本戶型占地189平米左右,簡歐風格大氣時尚,帶旋轉樓梯設計。外立面采用黃色噴漆搭配灰色坡屋頂,別墅整體溫馨,看著就給人家的感覺,一層門廊與二樓陽臺有機結合,設計感十足。入戶就是大客廳,接待客人以及自己生活都很方便;二樓布置三間臥室,讓家中的每個成員都有各自的私享空間,;娛樂室是家庭成員共同活動的空間,方便一家人聯絡感情。 占地面積:16.5m*11.6m,189.26平方米左右; 建筑層高:二層; 建筑高度:10.668米(含屋頂); 設計功能: 一層戶型:客廳、廚房、餐廳、土灶房、臥室x3、衛生間; 二層戶型:客廳上空、娛樂區域、臥室x3、衛生間、陽臺、露臺; ![]() ![]() ![]() 如果有喜歡復式戶型的朋友千萬不要錯過這三款戶型哦,歡迎收藏。
圖紙之家-專注農村別墅/自建房設計18年,集合國內200余位經驗豐富的設計師,被評為口碑最好的農村建筑設計公司! |

進深9米的農村自建一層養老房戶型方案,三室二廳兩衛
占地:133.2平方米
回村蓋一層養老房別墅設計圖紙,面寬16米四開間戶型圖
占地:127平方米左右
一層帶地下室雙拼別墅設計圖,理想鄉村生活的標配
占地:416平方米
農村最好看兩層小樓圖及全套CAD施工圖紙,新中式風格,簡潔大氣
占地:150平方米
一層半房屋別墅設計圖,帶閣樓圖、帶露臺,外觀新穎時尚
占地:130平方米
140平方米新農村二層自建平屋頂房屋設計圖紙帶外觀效果圖
占地:140平方米左右
135平方米新農村三層別墅設計圖紙,外觀效果圖很漂亮
占地:134平方米
四層雙拼豪華別墅設計圖及外觀效果圖,貴族氣質爆棚
占地:188.5平方米
占地180平方米二層鄉村小洋樓設計戶型圖及圖紙,外觀華麗
占地:180平方米
經典20萬左右二層別墅設計圖紙,造型頗具設計感的小別墅
占地:多戶型可選
面寬20多米二層新中式雙拼別墅設計圖,外觀漂亮時尚
占地:246.66平方米左
農村小別墅一層設計圖紙,全套施工圖兩款戶型可選
占地:多種戶型可選
農村三間三層豪宅設計圖,自建別墅推薦戶型,帶地下室
占地:170平方米
120平方米農村一層平房別墅設計圖紙,含外觀效果圖
占地:125平方米
2026新款三層小別墅設計圖,占地150平米,帶地下室
占地:150平方米
最新高端四層別墅外觀效果圖及全套設計圖,真土豪就這樣建
占地:174.08平方米
農村蓋房三層自建別墅設計圖紙,11米乘12米戶型方案
占地:132.55平方米
網紅中式一層三合院別墅設計圖,白墻黛瓦古典大氣,讓人心曠神
占地:248.82平方米
現代風格二層別墅設計圖,外觀時尚、大氣
占地:153平方米
帶車庫農村二層樓房設計圖,外觀漂亮,精致
占地:154平方米
推薦:10套新農村自建房設計圖,2026年最新設計
閱讀次數:4825737次
100套鄉村別墅圖片大全,2026年最新設計
閱讀次數:2492203次
6款農村蓋一層平房的設計圖,10萬元就能建起來
閱讀次數:1852637次
這11個一層農村自建房別墅火爆了朋友圈!我最喜歡戶型十!你呢
閱讀次數:750268次
農村6萬元建一層小別墅圖,你敢相信嗎
閱讀次數:567686次
農村5萬塊就能自建房,6套普通房子設計圖分享,你沒看錯!
閱讀次數:419410次
8套農村漂亮三間平房圖片,非常適合在農村修建!
閱讀次數:411197次
農村自建房化糞池怎么做?附方案及施工過程
閱讀次數:391783次
農村一層三間平房設計圖,告別土氣養老房,讓人忍不住點贊
閱讀次數:350581次
新農村二層樓房圖片造價12萬,挑一套回家建房吧!
閱讀次數:349126次
